K1473-离合齿轮加工工艺及铣4个槽口夹具设计
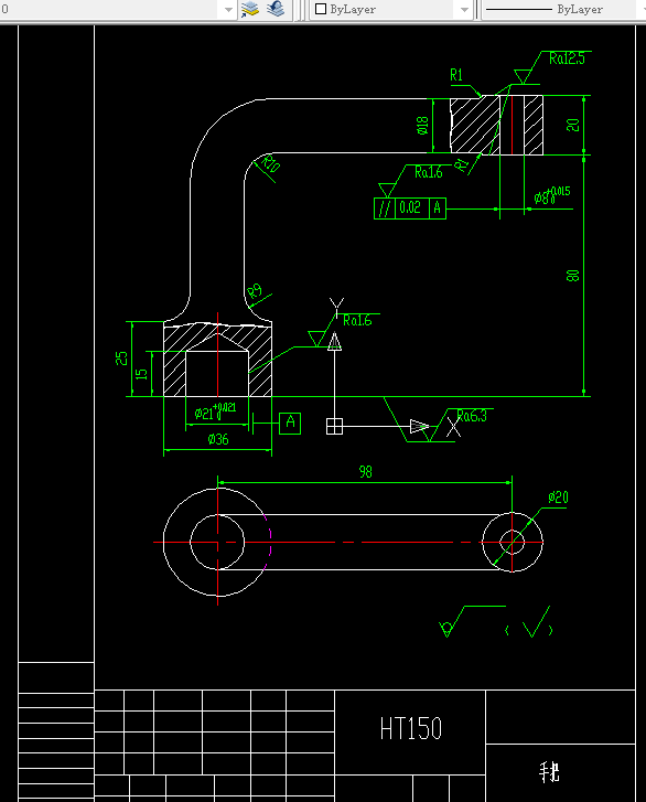
K1472-摇杆零件加工工艺及铣两内侧φ310端面夹具设计
K1471-摇杆零件加工工艺及镗φ230H7孔夹具设计
K1468-箱体加工工艺及车φ42孔系夹具设计[含Catia三维图]
K1467-箱体工艺及锪4xφ14深10沉孔、钻攻F向4xM6螺纹孔夹具设计[含UG三维图]
K1466-箱体加工工艺及镗右侧φ30孔φ35孔夹具设计[含UG三维图]
K1465-杠杆一加工工艺及铣22槽夹具设计[含UG三维图]
K1463-蜗轮蜗杆减速器箱体工艺及钻攻4-M4螺纹孔夹具设计
P567-拉杆加工工艺及钻φ12孔夹具设计
K1462-托架零件加工工艺及铣200×90端面夹具设计
K1461-托架零件加工工艺及镗φ75孔夹具设计
K1460-托架零件加工工艺及钻2-M10螺纹孔夹具设计
P565-钳座加工工艺及铣滑移面夹具设计
P564-钳座加工工艺及钻2-M10螺纹孔夹具设计
P563-手把零件加工工艺及钻φ8孔夹具设计
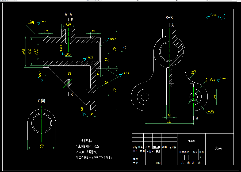
K1459-支架零件加工工艺及钻M13螺纹孔夹具设计[含Creo三维图]
K1458-机油泵传动轴支架加工工艺及钻φ11斜孔夹具设计
P558-角板机械加工工艺及铣前端面夹具设计
P557-角板机械加工工艺及镗φ40孔夹具设计
JJ8391-耳环底座零件的建模与加工工艺规程设计[含SW三维图]