

作品包括:
说明书1份,共37页,约11000字左右
CAD版本图纸,共4张
工序卡一张
过程卡一张

目 录
绪 论 1
第一章 杠杆零件分析及毛坯的确定 2
1.1 杠杆的作用和工艺分析 2
1.2 零件毛坯的确定 3
2.1 工艺过程设计中应考虑的主要问题 5
2.2 基准的选择 7
2.3 杠杆的工艺路线分析与制定 8
2.4铣削用量及基本工时计算 9
2.5钻削用量及基本工时计算 17
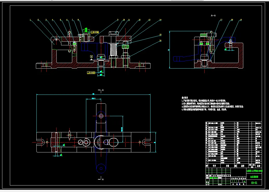
第三章 Φ10H7孔专用夹具设计 30
3.1定位基准、定位元件及夹紧方式选择 30
3.2切削力及夹紧力计算 30
3.3导向装置及钻模板 32
3.4夹具体与机床连接设计 32
3.5定位误差分析与计算 33
3.6 公差及粗糙度的确定 33
3.7 夹具操作的简要说明 34
参考文献 35
致谢 36
温馨提示:
1、题目前面的备注【字母数字编号】为本站整理分类的编号,与课题内容无关,请选题时忽视;
2、若题目上备注三维,则表示文件里包含三维源文件,由于三维组成零件数量较多,为保证预览截图的简洁性,本站将三维文件夹进行了打包。三维及CAD预览截图,均为本站电脑打开软件进行截图的,保证能够打开,下载原件超高清,下载后解压即可;
3、本站所有资源如无特殊说明,都需要本地电脑安装Office2007。图纸软件为AutoCAD,PROE,UG,SolidWorks,CATIA等;
4、本站所有图文资料仅供用户学习参考,不作为任何商用或其他用途;
5、本站不保证下载资源的准确性、安全性和完整性, 不包修改,不支持退换,同时也不承担用户因使用这些下载资源对自己和他人造成任何形式的伤害或损失;
6、 下载文件中如有侵权或不适当内容,请与我们联系,我们立即纠正。