欢迎来到龙图网在线图文分享平台-CAD图纸,设计说明书,工业设计3D模型,三维软件下载! 客服QQ:2363701252
热搜: 工艺夹具 模具设计 数控编程 土木工程 3D模型

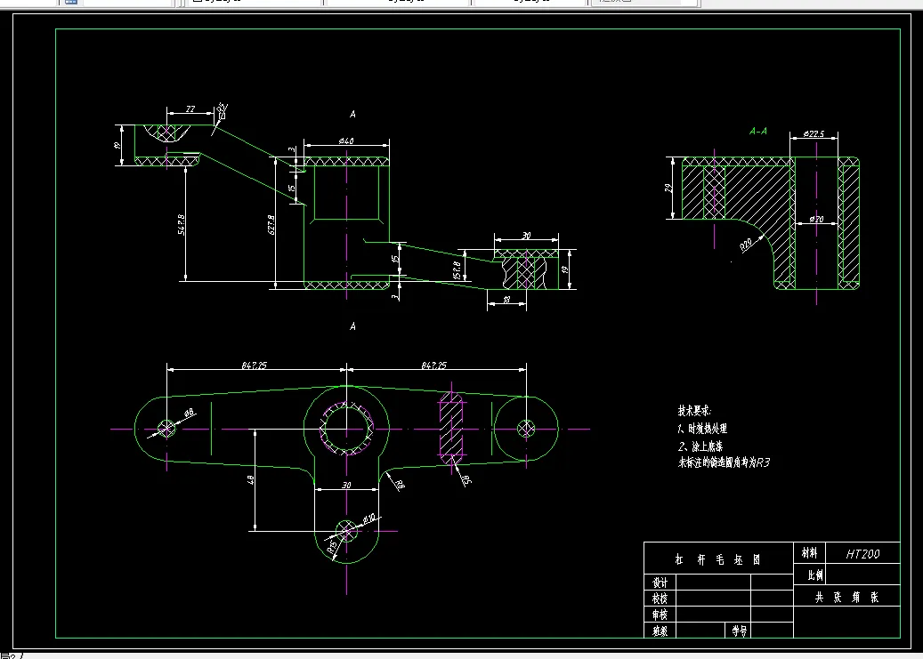
KS602H-等臂杠杆加工工艺及钻2-φ8H7φ10H7三小孔夹具设计 下载积分:20 资料编号: KS602H

1.打开支付宝或者微信扫描二维码。
2.填写金额:20 
3.添加备注,填写资料编号:
资料编号: KS602H
4.支付成功后,请发资料编号到邮箱:jxsj168@qq.com
会有专人在15分钟内把资料发到您邮箱
备注:如果付款忘记填写资料编号,则发邮件时附带您的交易明细截图即可。
请耐心等待,如超过30分钟还没收到,请联系客服QQ:2363701252

作品描述

作品包括:

说明书1份,共18页,约7300字左右

工序卡一份

过程卡一份

CAD版本图纸,共4张

中文摘要


零件的工艺分析是制定加工中心工艺的首要工作。其任务是分析零件技术要求,检查零件图的完整性和正确性;分析零件的结构工艺性;选择加工中心加工内容等。

数控加工工艺是采用数控机床加工零件时所运用各种方法和技术手段的总和,应用于整个数控加工工艺过程。数控加工工艺是伴随着数控机床的产生、发展而逐步完善起来的一种应用技术。它是人们大量数控加工实践总结。

关键词:工序   工步   工位  工艺基准  工序基准  结构工艺性

工序:工序是指一个(或一组)工人,在一台机床(或一固定工作地),对一个(或几个)工件连续完成的那一部分工艺过程。它是机械加工工艺过程的组成。

工位:工位是安装中的一个部分。在一次安装中,工件在夹具或机床中所占据的每一个确定的位置称工位。工步是最小单元。

工艺基准:零件在加工、装配及工艺文件上所采用的基准称为工艺基准。

工序基准: 在工艺文件上标定加工表面正确位置、尺寸、方向时所采用的基准称为工序基准。

结构工艺性:所谓零件的结构工艺性是指在保证使用要求的前提下,是否能以较高的生产率,最低的成本,方便地制造出来的特性。



目   录

1  引言………………………………………………………………………………………4 


2  杠杆加工工艺规程设计………………………………………………………………5


2.1 课题的内容和要求………………………………………………………………… 5 


2.2  零件的分析………………………………………………………………………… 5


2.2.1零件的结构分析…………………………………………………………………  5                    


2.2.2零件的技术要求…………………………………………………………………  5


2.3确定毛坯,画毛坯--零件综合图…………………………………………………6


2.4 工艺规程设计……………………………………………………………………… 7


3 夹具的设计……………………………………………………………………………13


4 设 计 小 结  …………………………………………………………………… 16


5   参考文献…………………………………………………………………………  17

温馨提示:

1、题目前面的备注【字母数字编号】为本站整理分类的编号,与课题内容无关,请选题时忽视;

2、若题目上备注三维,则表示文件里包含三维源文件,由于三维组成零件数量较多,为保证预览截图的简洁性,本站将三维文件夹进行了打包。三维及CAD预览截图,均为本站电脑打开软件进行截图的,保证能够打开,下载原件超高清,下载后解压即可;

3、本站所有资源如无特殊说明,都需要本地电脑安装Office2007。图纸软件为AutoCAD,PROE,UG,SolidWorks,CATIA等;

4、本站所有图文资料仅供用户学习参考,不作为任何商用或其他用途;
5、本站不保证下载资源的准确性、安全性和完整性, 不包修改,不支持退换,同时也不承担用户因使用这些下载资源对自己和他人造成任何形式的伤害或损失;

6、 下载文件中如有侵权或不适当内容,请与我们联系,我们立即纠正。


线

KS602H-等臂杠杆加工工艺及钻2-φ8H7φ10H7三小孔夹具设计 下载积分:20 资料编号:KS602H

作品描述

作品包括:

说明书1份,共18页,约7300字左右

工序卡一份

过程卡一份

CAD版本图纸,共4张

中文摘要


零件的工艺分析是制定加工中心工艺的首要工作。其任务是分析零件技术要求,检查零件图的完整性和正确性;分析零件的结构工艺性;选择加工中心加工内容等。

数控加工工艺是采用数控机床加工零件时所运用各种方法和技术手段的总和,应用于整个数控加工工艺过程。数控加工工艺是伴随着数控机床的产生、发展而逐步完善起来的一种应用技术。它是人们大量数控加工实践总结。

关键词:工序   工步   工位  工艺基准  工序基准  结构工艺性

工序:工序是指一个(或一组)工人,在一台机床(或一固定工作地),对一个(或几个)工件连续完成的那一部分工艺过程。它是机械加工工艺过程的组成。

工位:工位是安装中的一个部分。在一次安装中,工件在夹具或机床中所占据的每一个确定的位置称工位。工步是最小单元。

工艺基准:零件在加工、装配及工艺文件上所采用的基准称为工艺基准。

工序基准: 在工艺文件上标定加工表面正确位置、尺寸、方向时所采用的基准称为工序基准。

结构工艺性:所谓零件的结构工艺性是指在保证使用要求的前提下,是否能以较高的生产率,最低的成本,方便地制造出来的特性。



目   录

1  引言………………………………………………………………………………………4 


2  杠杆加工工艺规程设计………………………………………………………………5


2.1 课题的内容和要求………………………………………………………………… 5 


2.2  零件的分析………………………………………………………………………… 5


2.2.1零件的结构分析…………………………………………………………………  5                    


2.2.2零件的技术要求…………………………………………………………………  5


2.3确定毛坯,画毛坯--零件综合图…………………………………………………6


2.4 工艺规程设计……………………………………………………………………… 7


3 夹具的设计……………………………………………………………………………13


4 设 计 小 结  …………………………………………………………………… 16


5   参考文献…………………………………………………………………………  17

温馨提示:

1、题目前面的备注【字母数字编号】为本站整理分类的编号,与课题内容无关,请选题时忽视;

2、若题目上备注三维,则表示文件里包含三维源文件,由于三维组成零件数量较多,为保证预览截图的简洁性,本站将三维文件夹进行了打包。三维及CAD预览截图,均为本站电脑打开软件进行截图的,保证能够打开,下载原件超高清,下载后解压即可;

3、本站所有资源如无特殊说明,都需要本地电脑安装Office2007。图纸软件为AutoCAD,PROE,UG,SolidWorks,CATIA等;

4、本站所有图文资料仅供用户学习参考,不作为任何商用或其他用途;
5、本站不保证下载资源的准确性、安全性和完整性, 不包修改,不支持退换,同时也不承担用户因使用这些下载资源对自己和他人造成任何形式的伤害或损失;

6、 下载文件中如有侵权或不适当内容,请与我们联系,我们立即纠正。

关于我们 网站申明 友情链接 联系我们

扫一扫,联系微信客服


Copyright @ 龙图网版权所有  网站客服QQ:2363701252  微信客服:a58cad

皖ICP备2021006205号-2