

作品包括:
word版本说明书一份,共39页,约18000字
CAD版本图纸,共11张
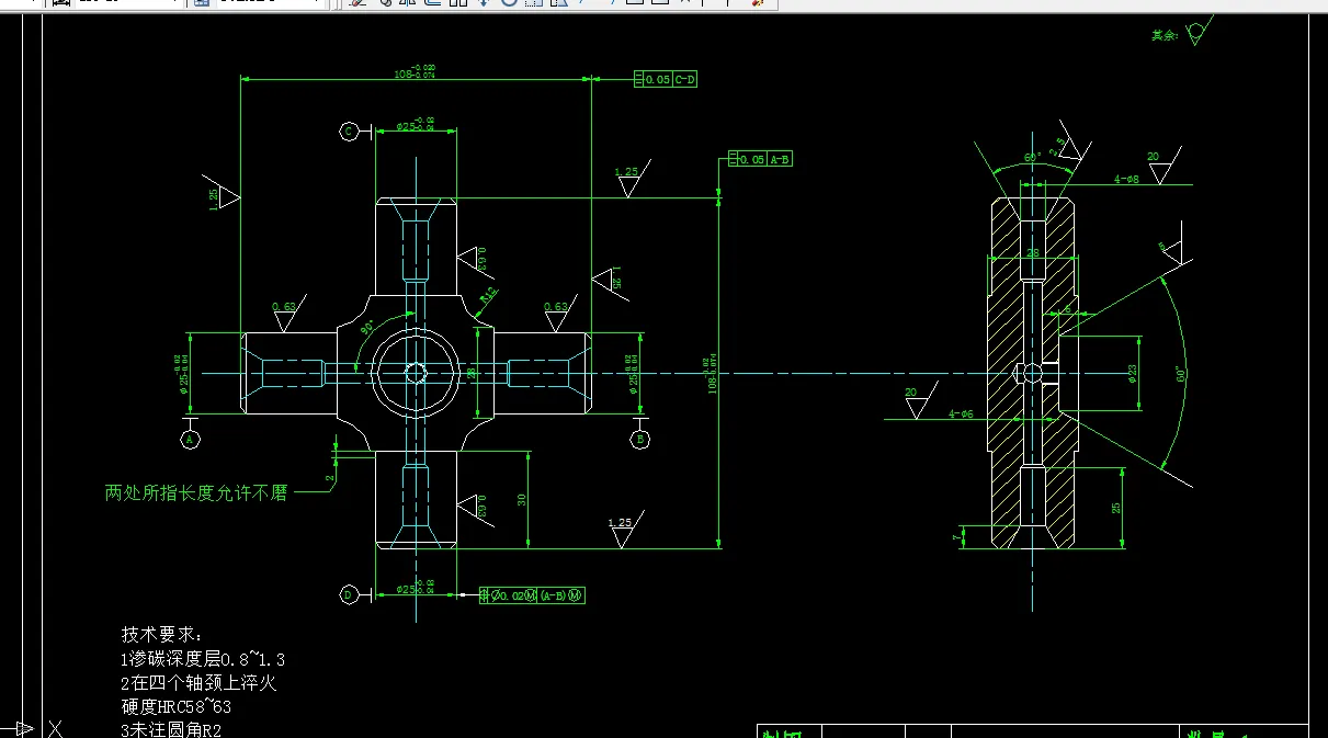
A1-装配图.dwg
A2-夹具体.dwg
A4-T型槽用螺栓.dwg
A4-初定位块1.dwg
A4-带肩螺母.dwg
A4-钩形压板.dwg
A4-菱形定位销.dwg
A4-手柄.dwg
A4-双头螺栓.dwg
A4-提手.dwg
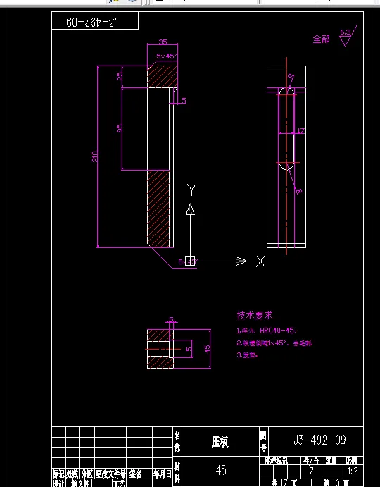
A4-压板.dwg
目 录
1 前言…………………………………..………………..........................1
1.1 课题背景及发展趋势………………………………………………1
1.2 课题的作用与意义…………………………………………………2
1.3 机床夹具的组成……………………………….…………………...3
1.4 铣床夹具的结构特点………………………………………………6
2 工件定位方案的确定…………………………………………………8
2.1 工件定位要则…………………………………………....................8
2.2 工件定位方式的选择…………………………………………........9
2.3 定位件的计算…………………………….……………………….12
2.4 定位误差的分析计算…………………………..............................14
3 夹紧方案的确定…………………..…………………………………15
3.1 工件达到正确夹紧的原则………………………………………..15
3.2 夹紧力三要素的确定……………………………………………..17
3.3 夹紧力大小的计算……………..…................................................17
4 其它装置的确定……………………………………………………..20
4.1 手柄的选择及设计………………..................................................20
4.2 压板的选择及设计………………..................................................21
5 夹具体的设计………………………………………………………..24
总结…………………………………………………………… ……….26
参考资料…………………………………………………… ………….27
致谢…………………………………………………… ……………….28
附录…………………………………………………… ……………….29
内容提要
本次进行的是429发动机曲轴箱铣主轴孔卡瓦槽夹具设计。铣削加工一般切削力较大,且是多刀齿断续切削,其大小和方向瞬时急剧地变化,尤其是刀齿切入和切出的过程中会在工件上产生冲击和振动。所以,设计铣床夹具时应特别考虑工艺系统的刚度,夹具要有足够大的夹紧力。夹具上一般有确定与刀具间相对位置的对刀装置和确定它在车床工作台方向的定位键,这也是铣床夹具结构的主要特征。
本次夹具设计的内容为:
(1)研究原始资料,明确设计要求;
(2)拟定夹具结构方案,绘制夹具结构草图;
①确定定位方案,选择定位元件;
②确定工件的夹紧方案;
③确定夹具其它组成部分的结构形式;
④确定夹具的形式和夹具的总体结构。
(3)绘制夹具的装配草图和装配图;
(4)绘制夹具的零件图。
经过设计和讨论,终于圆满地完成了设计任务。本次设计整个设计过程条理清晰,能让读者明白整个过程。力求结构合理,计算准确,经济可靠。本设计的创新之处在于简化了铣床夹具的结构设计,使其结构更简便,同时也能满足设计要求,可以用于实际生产中。
关键词:定位;夹紧
温馨提示:
1、题目前面的备注【字母数字编号】为本站整理分类的编号,与课题内容无关,请选题时忽视;
2、若题目上备注三维,则表示文件里包含三维源文件,由于三维组成零件数量较多,为保证预览截图的简洁性,本站将三维文件夹进行了打包。三维及CAD预览截图,均为本站电脑打开软件进行截图的,保证能够打开,下载原件超高清,下载后解压即可;
3、本站所有资源如无特殊说明,都需要本地电脑安装Office2007。图纸软件为AutoCAD,PROE,UG,SolidWorks,CATIA等;
4、本站所有图文资料仅供用户学习参考,不作为任何商用或其他用途;
5、本站不保证下载资源的准确性、安全性和完整性, 不包修改,不支持退换,同时也不承担用户因使用这些下载资源对自己和他人造成任何形式的伤害或损失;
6、 下载文件中如有侵权或不适当内容,请与我们联系,我们立即纠正。