

作品包括:
Word版说明书1份,共20页,约10000字
CAD版本图纸,共2张
摘要: M5-5加强板零件是某航空产品中的一个薄壁零件,主要起支撑作用因而需要一定的强度和刚度,它是采用LC9铝合金材料,能满足其性能要求。航空产品一般是单件小批量生产,故适宜采用数控加工生产。本毕业设计课题的设计内容主要包括M5-5加强板零件数控加工和钻孔用组合夹具拼装两个部分。数控加工部分主要有零件的实体模型的建立、数控加工工艺规程编制、刀具、切削用量及主轴转速的选择,以及零件的仿真数控加工,并利用UG软件自动生成相应工序的数控加工程序。实体模型的建立是利用UG现有的块、圆柱体、圆锥体和球体四种简单的实体模型,通过建模合理性和参数化要求出发,根据M5-5加强板零件的特点创建符合数控加工的实体模型。根据粗、精加工分开的原则合理编制数控加工工艺规程。根据工件材料及所用机床选择适合的刀具及切削用量。组合夹具拼装部分主要有组合夹具的总体设计、相关组合夹具元件的选择,定位基准的选择及夹紧方法的选择以及加工误差精度分析。
关键字:实体建模 数控加工 工艺规程 组合夹具
目录
1. 引言--------------------------------------------------------------1
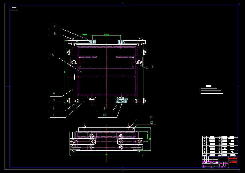
2.钻孔用组合夹具拼装设计------------------------------------------2
2.1组合夹具的特性--------------------------------------------2
2.2 组合夹具的元件及其作用 -----------------------------2
2.3 加强板零件钻孔组合夹具总体设计-------------------- 6
2.3.1组合夹具的元件选择---------------------------- 6
2.3.2组合夹具的拼装方案设计------------------------7
2.4组合夹具的误差分析及计算--------------------------------8
2.4.1导向误差计算 -------------------------------------8
2.4.2 定位元件的误差分析-------------------------------8
2.4.3钻削力---------------------------------------------9
3.加强板零件的数控加工 -------------------------------------10
3.1 加强板零件实体模型的建立与编辑 --------------------10
3.1.1 加强板零件实体模型的建立与编辑
3.1.1.1实体模型的概念 ----------------------------10
3.1.1.2实体模型术语--------------------------------10
3.1.1.3 实体模型的概念------------------------------11
3.2.1 实体模型基本体素-----------------------------------11
3.2.1.1 圆柱体---------------------------------------11
3.2.1.2长方体----------------------------------------11
3.2.1.3球体------------------------------------------11
3.3.1 扫描特征-------------------------------------------12
3.3.1.1拉伸体---------------------------------------12
3.4.1基准轴---------------------------------------------12
3.5.1布尔操作-------------------------------------------12
3.6.1成型特征-------------------------------------------13
3.6.1.1成型特征用于模型的细节设计-----------------13
3.6.1.2 孔--------------------------------------------14
3.7.1操作特征 -------------------------------------------15
3.7.1.1边倒圆 ---------------------------------------16
3.7.1.2修剪实体--------------------------------------17
3.8.1草图------------------------------------------------17
3.2零件的数控加工工艺基础----------------------------------- 20
3.3数控加工方案的确定-----------------------------------------21
3.4 加强板零件的UG数控加工程序的生成 ------------------21
3.5 加强板零件的数控加工的加工方式及参数确 ------------22
3.5.1切削用量及刀具的选择----------------------------22
3.5.2数控加工坐标选择--------------------------------24
3.6仿真加工软件简介-------------------------------------------24
4.总结----------------------------------------------------------------26
参考文献 -------------------------------------------------------------27
致谢 -----------------------------------------------------------------28
附录
A:译文及外文原始资料
B: CXQ程序单
温馨提示:
1、题目前面的备注【字母数字编号】为本站整理分类的编号,与课题内容无关,请选题时忽视;
2、若题目上备注三维,则表示文件里包含三维源文件,由于三维组成零件数量较多,为保证预览截图的简洁性,本站将三维文件夹进行了打包。三维及CAD预览截图,均为本站电脑打开软件进行截图的,保证能够打开,下载原件超高清,下载后解压即可;
3、本站所有资源如无特殊说明,都需要本地电脑安装Office2007。图纸软件为AutoCAD,PROE,UG,SolidWorks,CATIA等;
4、本站所有图文资料仅供用户学习参考,不作为任何商用或其他用途;
5、本站不保证下载资源的准确性、安全性和完整性, 不包修改,不支持退换,同时也不承担用户因使用这些下载资源对自己和他人造成任何形式的伤害或损失;
6、 下载文件中如有侵权或不适当内容,请与我们联系,我们立即纠正。