

作品包括:
Word版说明书1份,共24页,约6800字
CAD版本图纸,共4张
工序卡一份
工艺过程卡一张

目 录
绪论 1
第一章 连杆盖的分析 1
第二章 连杆盖工艺规程设计 3
2.1毛坯的制造形式的确定 3
2.2 基准的选择 3
2.2.1 粗基准的选择 3
2.2.2 精基面的选取 4
2.3 制定工艺路线 4
2.3.1确定机械制造余量与工序的尺寸和毛呸尺寸 6
2.3.2设备及其工艺装备确定 6
2.3.3切削用量与加工工时的确定 7
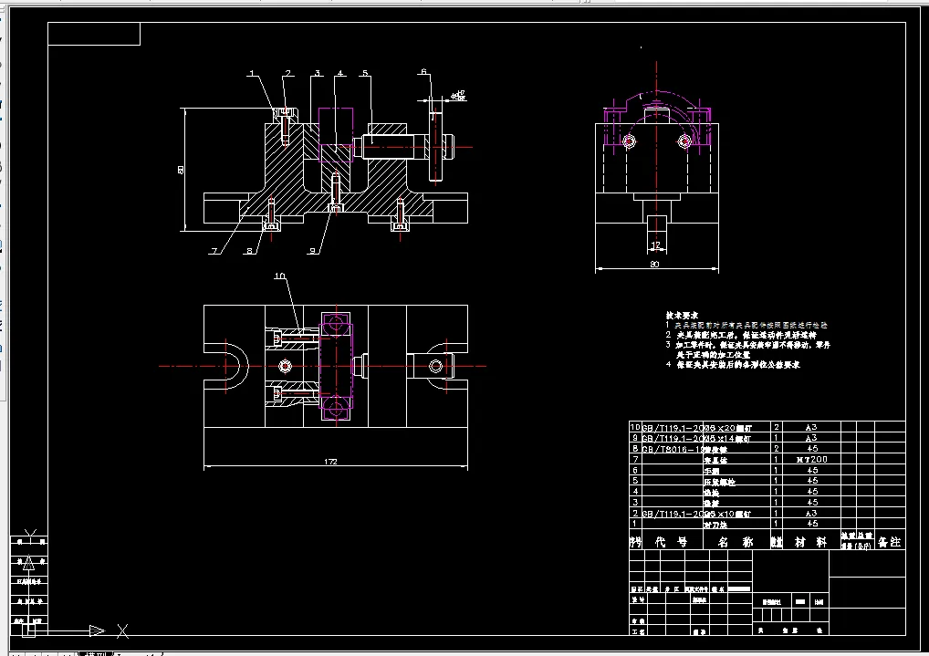
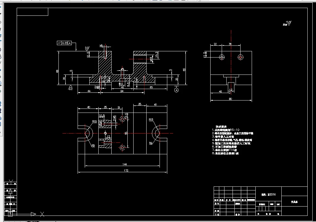
第三章 夹具设计 15
3.1铣底平面夹具的设计 15
3.1.1 问题的提出 15
3.1.2定位元件的选用 15
3.1.3 夹紧方案的选择 15
3.1.4设计夹具体零件 15
3.1.5切削力与夹紧力计算 15
3.1.6定位误差分析 16
3.1.7夹具与工作台的联结方式 17
3.1.8夹具设计及使用的简要说明 17
第四章 设计体会 25
参考文献 26
致谢 26
温馨提示:
1、题目前面的备注【字母数字编号】为本站整理分类的编号,与课题内容无关,请选题时忽视;
2、若题目上备注三维,则表示文件里包含三维源文件,由于三维组成零件数量较多,为保证预览截图的简洁性,本站将三维文件夹进行了打包。三维及CAD预览截图,均为本站电脑打开软件进行截图的,保证能够打开,下载原件超高清,下载后解压即可;
3、本站所有资源如无特殊说明,都需要本地电脑安装Office2007。图纸软件为AutoCAD,PROE,UG,SolidWorks,CATIA等;
4、本站所有图文资料仅供用户学习参考,不作为任何商用或其他用途;
5、本站不保证下载资源的准确性、安全性和完整性, 不包修改,不支持退换,同时也不承担用户因使用这些下载资源对自己和他人造成任何形式的伤害或损失;
6、 下载文件中如有侵权或不适当内容,请与我们联系,我们立即纠正。