

作品包括:
Word版说明书一份,共21页,约7600字
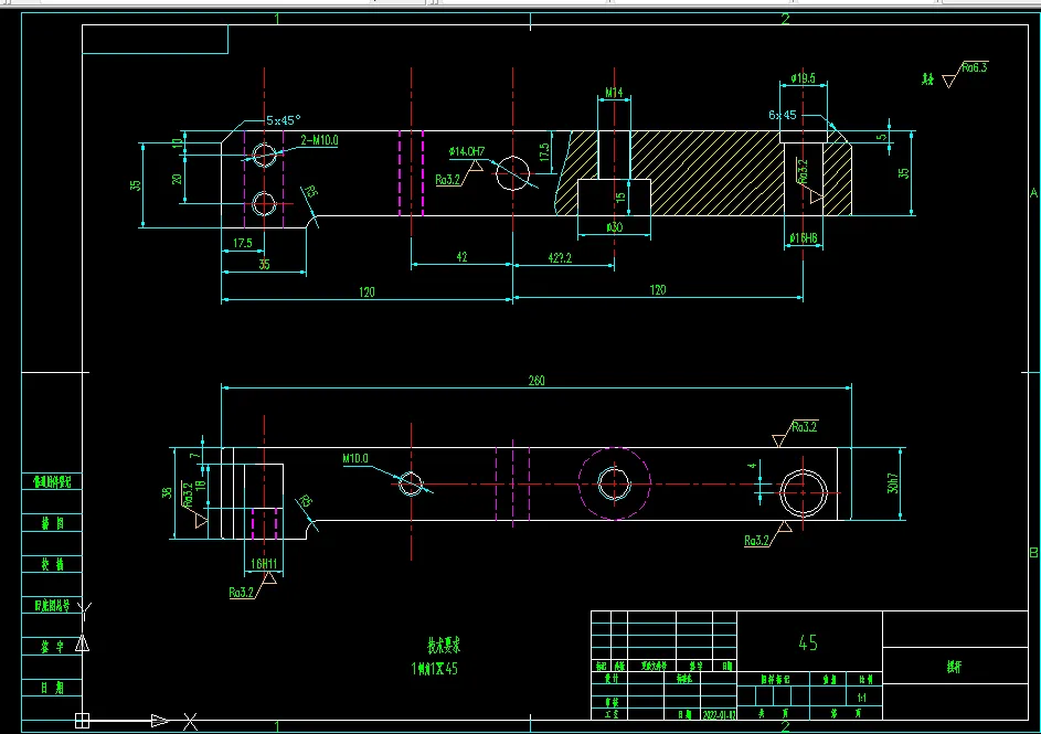
CAD版本图纸,共6张:

摘要:首先,本人设计的零件为输出轴,它的作用是传动作用,传动力的方向和轴力。轴的样式很多,应用的也很广泛,不过本人对于自己设计的轴经过了解,根据零件的形状、尺寸精度、生产的经济效益等各方面的详细分析其加工工艺,采用多工序,机床加工。通过对零件的分析,此轴要求精度高,工序适当集中,要求光滑,所以选用的工具和尺寸要量得准。对输出轴的夹具设计也要求也高,因为精度和公差要求高,表面更要采用磨床钻磨。最后对零件进行校核。以便达到零件精度的要求。
关键词:传动作用、轴力、广泛、工序、磨床、夹具、校核、
目录
前言:----------------------------------------------------------------------------------------------5
1、绪言---------------------------------------------------------------------------------------6
1.1、毕业设计的目的-------------------------------------------------6
2、毕业设计工艺要求的基本任务和要求---------------------------------6
2.1、基本任务-------------------------------------------------------6
2.1.1、工艺设计的基本任务----------------------------------------------------------------6
2.1.2、夹具设计的基本任务----------------------------------------------------------------6
2.2、设计要求--------------------------------------------------------6
2.2.1、工艺设计的设计要求----------------------------------------------------------------6
2.2.2、夹具设计的设计要求----------------------------------------------------------------6
3、毕业设计工艺课程设计的方法和步骤-----------------------------------------7
3.1生产纲领的计算与生产类型的确定------------------------------------------7
3.2零件材料的分析-------------------------------------------------------------------------7
3.3 分析零件图--------------------------------------------------------------------------------8
3.4确定毛坯------------------------------------------------------------------------------------8
3.5加工工艺路线------------------------------------------------------------------------------9
3.6确定工序尺寸及其公差-----------------------------------------------------------------11
3.7确定切削用量----------------- -----------------------------------------------------------11
3.8制作工艺卡片-----------------------------------------------------------------------------12
3.9零件的程序编制--------------------------------------------------------------------------12
4、夹具设计----------------------------------------------------------------------------15
4.1夹具设计的目的-------------------------------------------------------------------------15
4.2 夹具设计的步骤-------------------------------------------------------------------------15
4.3 夹具机构方案----------------------------------------------------------------------------15
4.3.1、导向装置设计------------------------------------------------------------------------15
4.3.2、夹紧力和夹紧装置的计算---------------------------------------------------------16
4.3.3、确定工件的定位方式和定位元件的结构---------------------------------------16
4.4 总图设计---------------------------------------------------------------------------------17
4.5 精度的校核----------------------------------------------------------------------------18
4.6 夹具零件图------------------------------------------------------------------------------20
总结:-------------------------------------------------------------------------------------------20
致谢:-------------------------------------------------------------------------------------------20
参考文献--------------------------------------------------------------------------------------21
温馨提示:
1、题目前面的备注【字母数字编号】为本站整理分类的编号,与课题内容无关,请选题时忽视;
2、若题目上备注三维,则表示文件里包含三维源文件,由于三维组成零件数量较多,为保证预览截图的简洁性,本站将三维文件夹进行了打包。三维及CAD预览截图,均为本站电脑打开软件进行截图的,保证能够打开,下载原件超高清,下载后解压即可;
3、本站所有资源如无特殊说明,都需要本地电脑安装Office2007。图纸软件为AutoCAD,PROE,UG,SolidWorks,CATIA等;
4、本站所有图文资料仅供用户学习参考,不作为任何商用或其他用途;
5、本站不保证下载资源的准确性、安全性和完整性, 不包修改,不支持退换,同时也不承担用户因使用这些下载资源对自己和他人造成任何形式的伤害或损失;
6、 下载文件中如有侵权或不适当内容,请与我们联系,我们立即纠正。