

作品包括:
word说明书一份,共20页,约6000字
工艺卡一份
过程卡一份
CAD版本图纸,共4张
摘 要
机械制造工艺学课程设计是我们学完了大学的全部基础课、技术基础课以及大部分专业课之后进行的.这是我们在进行毕业设计之前对所学各课程的一次深入的综合性的总复习,也是一次理论联系实际的训练,因此,它在我们四年的大学生活中占有重要的地位。
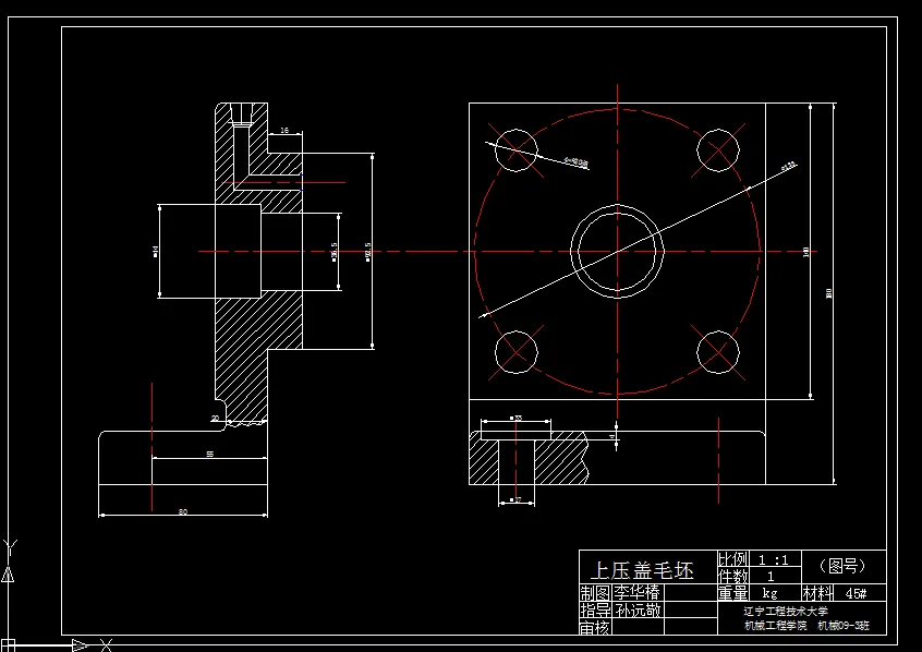
这次设计的是上压盖,有零件图、毛坯图、装配图各一张,机械加工工艺过程卡片和与所设计夹具对应那道工序的工序卡片各一张。首先我们要熟悉零件。了解了上压盖的作用,接下来根据零件的性质和零件图上各端面及孔的粗糙度确定毛坯的尺寸和机械加工余量。然后我们再根据定位基准先确定精基准,后确定粗基准,最后拟定端盖的工艺路线图,制定该工件的夹紧方案,画出夹具装配图。
目录
序言 0
1、零件分析 1
1.1、检验、分析零件图 1
1.2、零件技术经济分析 1
1.3、确定端盖的生产类型 2
2、制定工艺路线 2
2.1、毛坯的选择及毛坯余量确定 2
2.1.1、毛坯选择 2
2.1.2、毛坯余量确定 3
2.1.3绘制端盖毛坯简图 3
2.2、基准的选择 3
2.2.1、精基准的选择 4
2.2.2、粗基准的选择 4
2.3.制定工艺路线,填写工艺过程卡 4
2.3.1.机械加工顺序 4
2.3.2.热处理工序 5
2.3.3.辅助工序 5
2.4.切削用量的计算 6
2.4.1钻孔工步 6
2.4.2粗铰工步 6
2.4.3精铰工步 6
2.5 时间定额的计算 7
2.5.1基本时间 的计算 7
2.5.2辅助时间 的计算 8
2.5.3其他时间的计算 8
3、夹具的设计 8
3.1.确定加工部位,分析技术要求 8
3.2.确定定位方案 9
3.2.1.选择定位元件,包括尺寸和公差 9
3.2.2.分析定位的合理性,判断有无欠定位和过定位 10
3.3.确定夹紧方案,选择夹紧元件和夹紧结构 10
4、夹具结构设计 11
4.1、 夹具体及其它零件设计,确定夹具详细结构。 11
4.1.1、导向装置选择 11
4.1.2、夹具总体形状确定 13
4.1.3、机床夹具应满足的基本要求包括下面几方面 14
4.2、定位误差计算 15
5、夹具体绘制 15
6、设计心得体会 16
参考文献 17
温馨提示:
1、题目前面的备注【字母数字编号】为本站整理分类的编号,与课题内容无关,请选题时忽视;
2、若题目上备注三维,则表示文件里包含三维源文件,由于三维组成零件数量较多,为保证预览截图的简洁性,本站将三维文件夹进行了打包。三维及CAD预览截图,均为本站电脑打开软件进行截图的,保证能够打开,下载原件超高清,下载后解压即可;
3、本站所有资源如无特殊说明,都需要本地电脑安装Office2007。图纸软件为AutoCAD,PROE,UG,SolidWorks,CATIA等;
4、本站所有图文资料仅供用户学习参考,不作为任何商用或其他用途;
5、本站不保证下载资源的准确性、安全性和完整性, 不包修改,不支持退换,同时也不承担用户因使用这些下载资源对自己和他人造成任何形式的伤害或损失;
6、 下载文件中如有侵权或不适当内容,请与我们联系,我们立即纠正。