

作品包括:
说明书一份,共27页,约7400字
工序卡1张
工艺过程卡1张
CAD版本图纸,共4张

摘 要
机械制造基础课程设计是我们学完了大学的机械制造基础课程、技术基础课以及大部分专业课之后进行的。这是我们大学中进行的第二次的课程设计,每次课程设计对毕业设计有着很大的帮助
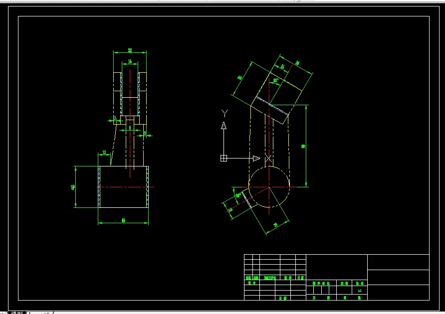
这次设计的是拨叉,有零件图、毛坯图、装配图各一张,机械加工工艺过程卡片和与所设计夹具对应那道工序的工序卡片各一张。首先我们要熟悉零件,题目所给的零件是拨叉。了解了拨叉的作用,接下来根据零件的性质和零件图上各端面的粗糙度确定毛坯的尺寸和机械加工余量。然后我们再根据定位基准先确定精基准,后确定粗基准,最后拟定拨叉的工艺路线图,制定该工件的夹紧方案,画出夹具装配图。
目 录
1、拨叉的工艺分析及生产类型的确定1
1.1、拨叉的用途1
1.2、审查拨叉的工艺性2
1.3、确定拨叉的生产类型2
2、确定毛坯、绘制毛坯简图2
2.1选择毛坯2
2.2确定毛坯的尺寸公差和机械加工余量2
2.2.1公差等级2
2.2.3绘制拨叉毛坯简图3
3、拟定拨叉工艺路线3
3.1、定位基准的选择3
3.1.1.精基准的选择3
3.1.2.粗基准的选择3
3.2、加工阶段的划分4
3.3、工序的集中与分散4
3.4、工序顺序的安排4
3.4.1机械加工工序4
3.4.2.热处理工序4
3.4.3.辅助工序4
3.5、确定工艺路线5
4、加工余量、工序尺寸和工差的确定8
4.1.确定切削用量及基本工时8
4.2. 其他时间的计算14
5.夹具设计14
5.1提出问题15
5.2设计思想15
5.3夹具设计16
5.3.1定位分析16
6. 体会与展望18
总结 19
参考文献21
温馨提示:
1、题目前面的备注【字母数字编号】为本站整理分类的编号,与课题内容无关,请选题时忽视;
2、若题目上备注三维,则表示文件里包含三维源文件,由于三维组成零件数量较多,为保证预览截图的简洁性,本站将三维文件夹进行了打包。三维及CAD预览截图,均为本站电脑打开软件进行截图的,保证能够打开,下载原件超高清,下载后解压即可;
3、本站所有资源如无特殊说明,都需要本地电脑安装Office2007。图纸软件为AutoCAD,PROE,UG,SolidWorks,CATIA等;
4、本站所有图文资料仅供用户学习参考,不作为任何商用或其他用途;
5、本站不保证下载资源的准确性、安全性和完整性, 不包修改,不支持退换,同时也不承担用户因使用这些下载资源对自己和他人造成任何形式的伤害或损失;
6、 下载文件中如有侵权或不适当内容,请与我们联系,我们立即纠正。