

作品包括:
WORD版设计说明书1份,共26页,约7500字左右
CAD版本图纸,共4张
工序卡一张
过程卡一张
摘要
机械制造技术基础课程设计,是以切削理论为基础,制造工艺为主线,兼顾工艺装备知识的机械制造技术基本涉机能力培养的实践课程;是综合运用机械制造技术的基本知识,基本理论和基本技能,分析和解决实际工程问题的一个重要教学环节;是对学生运用掌握的“机械制造”技术基础
知识及相关知识的一次全面的应用训练。
机械制造技术基础课程设计,是已机械制造工艺装备为内容进行的设计。即以给定的一个中等复杂的程度的中小型机械零件为对象,在确定其毛胚制造工艺的基础上,编制其机械加工工艺规程,并对其一工序进行机床专用卡具设计。由于能力有限,设计尚有许多不足之处,恳请各位老师给予批评指正。
1.轴承盖的工艺性分析 7
1.1轴承盖用途 7
1.2轴承盖的技术要求 8
1.3 确定轴承盖生产类型 8
2.轴承盖的机械加工工艺规程设计 9
2.1确定毛坯、绘制毛坯图 9
2.1.1 选择毛坯 9
2.1.2 确定毛坯尺寸和机械加工余量 9
2.1.3 绘制轴承盖铸件毛坯图 10
2.2拟定轴承盖工艺路线 11
2.2.1 选择定位基准 11
2.2.2 表面加工方法的确定 12
2.2.3 加工阶段的划分 12
2.2.4 工序的集中于分散 13
2.2.5 工序顺序的安排 13
2.2.6 确定工艺路线 13
2.3机械加工余量、工序尺寸及公差的确定 14
2.3.1圆柱表面工序尺寸: 14
2.3.2平面工序尺寸: 15
2.3.3孔加工工序尺寸: 15
2.3.4其他尺寸直接铸造得到 15
2.4 确定切削用量 15
2.4.1 对钻Φ26mm的内孔的切削用量的确定: 15
2.4.2 对扩Φ26mm内孔的切削用量的确定: 15
2.4.3 对粗铰Φ26mm的内孔的切削用量的确定: 16
2.4.4 对精铰Φ26mm的内孔的切削用量的确定: 16
2.5 确定时间定额 16
2.5.1 时间额定的计算: 16
2.5.2 辅助时间计算: 17
2.5.3 其他时间计算: 17
2.5.4 单件时间计算: 17
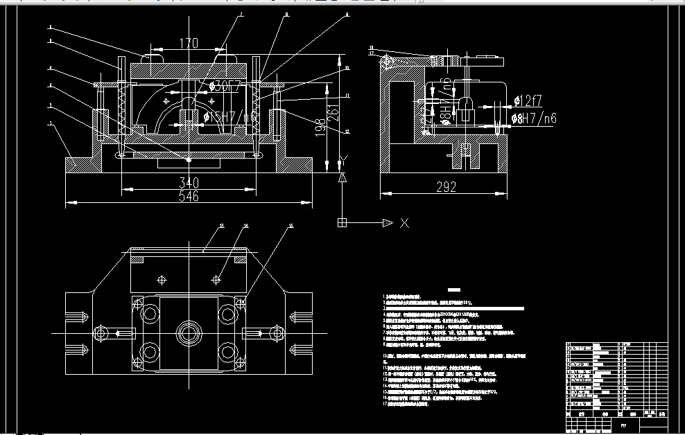
3.加工φ26㎜孔工序的专用机床夹具设计 18
3.1问题的提出 18
3.2夹具设计 18
3.2.1定位基准的选择 18
3.2.2、夹具设计及操作的简要说明 18
3.2.3确定导向装置 19
3.3夹紧装置的设计 19
3.3.1夹紧装置的组成和要求 19
3.3.2夹紧力的计算 19
3.4夹具体的设计 19
3.4.1夹具体的材料 19
3.4.2夹具体的外形尺寸 20
3.4.3夹具体的排屑措施 20
3.4.4夹具体定位误差分析 22
4.方案的综合评价与结论 22
5.体会与展望 23
6.参考文献 25
温馨提示:
1、题目前面的备注【字母数字编号】为本站整理分类的编号,与课题内容无关,请选题时忽视;
2、若题目上备注三维,则表示文件里包含三维源文件,由于三维组成零件数量较多,为保证预览截图的简洁性,本站将三维文件夹进行了打包。三维及CAD预览截图,均为本站电脑打开软件进行截图的,保证能够打开,下载原件超高清,下载后解压即可;
3、本站所有资源如无特殊说明,都需要本地电脑安装Office2007。图纸软件为AutoCAD,PROE,UG,SolidWorks,CATIA等;
4、本站所有图文资料仅供用户学习参考,不作为任何商用或其他用途;
5、本站不保证下载资源的准确性、安全性和完整性, 不包修改,不支持退换,同时也不承担用户因使用这些下载资源对自己和他人造成任何形式的伤害或损失;
6、 下载文件中如有侵权或不适当内容,请与我们联系,我们立即纠正。