

作品包括:
word说明书一份,共37页,约18000字
工艺工序卡一套
过程卡一套
CAD版本图纸,共8张

微电机壳的机械加工工艺及专用夹具设计
摘 要
本设计首先对微电机壳零件图样的技术特性,几何特性,尺寸及其工艺要求进行分析,其次明确加工内容和要求,确定加工方案,选择适合的数控机床(铣床),刀具和夹具,设置合理的工艺路线及选择合理的切削用量。最终的夹具设计是根据微电机壳的零件图,技术要求和加工批量,设计出适合于该电机壳的加工工艺的专用夹具3套和选择合适的加工工艺装备并最终加工出符合生产要求的合格零件。
关键词:微电机壳零件 工艺分析 夹具设计
目 录
第一章 绪论 1
1.1微电机的发展趋势 1
1.2夹具发展趋势 4
1.3总结 5
第二章 工艺设计 6
2.1零件分析 6
2.1.1零件图的工艺分析 6
2.1.2零件的结构功用性分析 7
2.1.3计算生产纲领、确定生产类型 7
2.1.4零件的工艺分析 7
2.2毛坯的选择 8
2.2.1选择毛坯的类型 8
2.2.2毛坯余量的确定 8
2.2.3毛坯-零件合图 8
2.3基面的选择 9
2.4表面加工方法的选择 10
2.5工艺路线的确定 10
2.6加工阶段的划分 11
2.7机械加工余量、工序尺寸及毛坯尺寸的确定 11
第三章 机床及其工艺装备的选择 14
3.1机床的选择 14
3.2夹具的选择 14
3.3刀具的选择 14
3.4量具的选择 15
第四章 各工序的切削用量及基本工时的确定 16
4.1工序1的切削用量及基本时间的确定 16
4.2工序2的切削用量及基本时间的确定 16
4.3工序3的切削用量及基本时间的确定 17
4.4工序4的切削用量及基本时间的确定 18
4.5工序5的切削用量及基本时间的确定 19
4.6工序6-7的切削用量及基本时间的确定 19
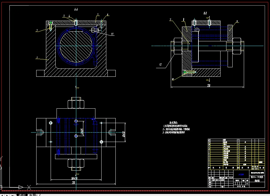
第五章 工序40的夹具设计 21
5.1制定相应的方案 21
5.2工件的加工精度分析 21
第六章 工序50的夹具设计 23
6.1问题提出 23
6.2基准的选择 23
6.3切削力及夹紧力的计算 23
6.4定位误差的分析 24
6.5夹具操作设计及操作说明 24
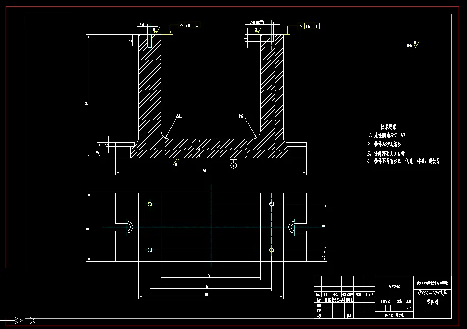
第七章 工序60的夹具设计 25
7.1设计时注意的问题 25
7.2定位基准的选择 25
7.3切削力及夹紧力计算 25
7.4定位误差分析 26
7.5 夹具设计及操作说明 26
第八章 总结 28
参考文献 29
致 谢 30
毕业设计(论文)知识产权声明 31
毕业设计(论文)独创性声明 32
温馨提示:
1、题目前面的备注【字母数字编号】为本站整理分类的编号,与课题内容无关,请选题时忽视;
2、若题目上备注三维,则表示文件里包含三维源文件,由于三维组成零件数量较多,为保证预览截图的简洁性,本站将三维文件夹进行了打包。三维及CAD预览截图,均为本站电脑打开软件进行截图的,保证能够打开,下载原件超高清,下载后解压即可;
3、本站所有资源如无特殊说明,都需要本地电脑安装Office2007。图纸软件为AutoCAD,PROE,UG,SolidWorks,CATIA等;
4、本站所有图文资料仅供用户学习参考,不作为任何商用或其他用途;
5、本站不保证下载资源的准确性、安全性和完整性, 不包修改,不支持退换,同时也不承担用户因使用这些下载资源对自己和他人造成任何形式的伤害或损失;
6、 下载文件中如有侵权或不适当内容,请与我们联系,我们立即纠正。