

作品包括:
Word版说明书1份,共40页,约13000字
工序卡一套
工艺过程卡1张
CAD版本图纸,共9张

摘要
在经济飞速向前的当下,制造业快速发展的今天。非标零件的尺寸、结构也千变万化。以往设计的通用夹具,越来越多的面临淘汰。所以专用夹具的设计与生产越来越广泛。专用夹具的研究其主要内容有定位方案、夹紧方案的确定,定位元件、夹紧元件的选择,导向装置的选择等等。
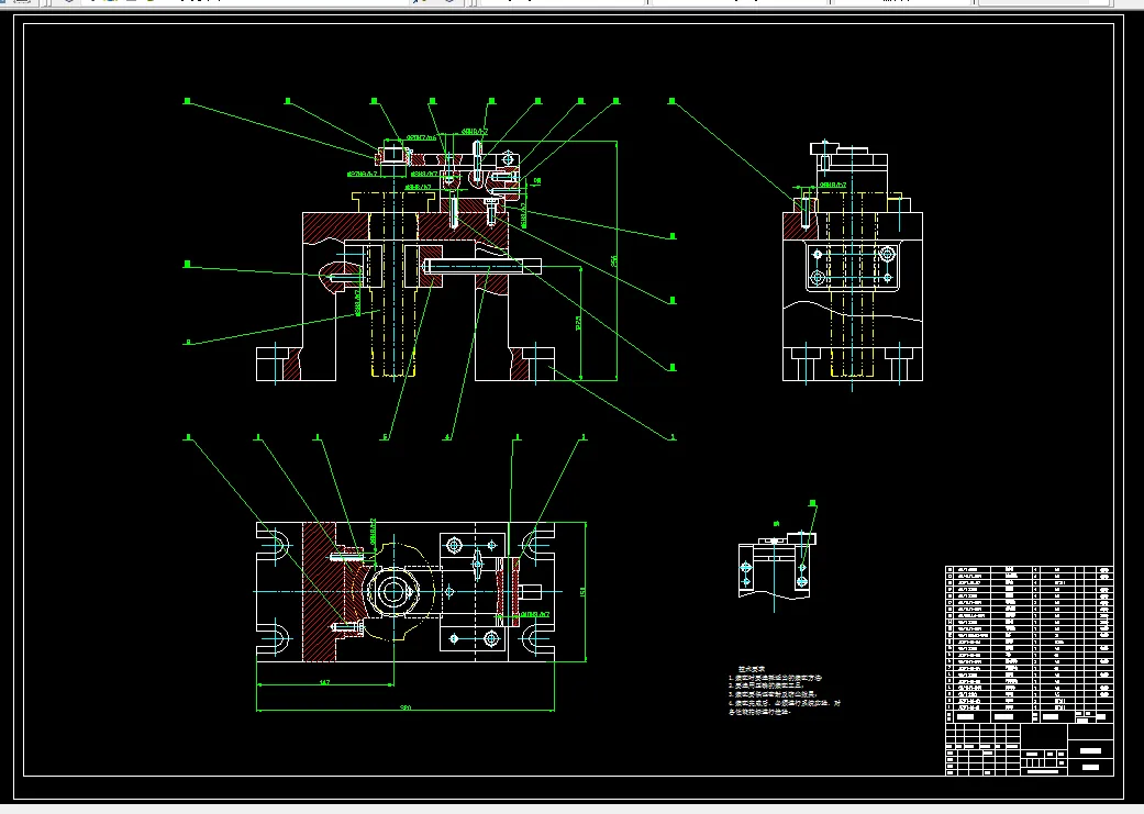
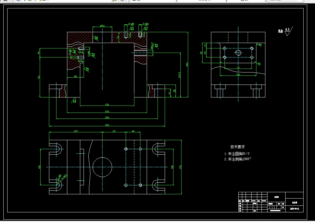
本次设计研究的对象是凸轮杆。设计内容包括2个方面:1、工艺分析;2、钻Ф20孔钻床专用夹具设计。凸轮杆是机器上不可或缺的零件之一,为机器及零部件的正常运转提供保障。
从零件结构分析入手,合理选择定位基准,各种刀具参数选择以及切削用量的选择等。在安排工艺过程时,根据加工要求不同,需要进行粗精加工。另外还确定了切削参数,加工工时,填写工艺过程卡片和工序卡片。专用夹具设计内容有:确定定位方案及元件,确定夹紧方案及元件,确定导向装置,计算切削力及夹紧力等。
关键词:凸轮杆、工艺、Ф20孔、钻床、专用夹具
目 录
摘要 I
Abstract II
1 绪论 1
1.1 机床夹具的组成 1
1.2 机床夹具的分类 1
1.3 机床夹具的发展趋势 2
1.4 夹具设计的特点和基本要求 3
1.4.1夹具设计的特点 3
1.4.2设计的基本要求 3
2 零件的作用、组成表面及技术要求 4
2.1 零件的作用 4
2.2 零件的组成表面 4
2.3 零件的技术要求 4
2.4 零件的形位公差 5
3 零件的工艺分析及设计 6
3.1 确定零件的生产类型及毛坯的制造形式 6
3.1.1确定零件的生产类型 6
3.1.2确定毛坯的制造形式 6
3.2 基准的选择与确定 6
3.3 加工工艺路线的确定 7
3.4 加工设备及加工装备的选择 7
3.5 确定加工余量 8
3.6 计算切削用量、基本时间及辅助时间 11
4 钻Ф20孔专用夹具设计 28
4.1 定位方案及装置的确定 28
4.1.1设计定位方案应满足的要求 28
4.1.2定位方案的确定 28
4.1.3定位元件的确定 28
4.2 夹紧方案及装置的确定 29
4.2.1设计夹紧装置应遵循的原则 29
4.2.2夹紧装置满足的基本要求 30
4.2.3夹紧方案的确定 30
4.2.4夹紧元件的确定 31
4.3 夹具体的设计 31
4.4 确定导向装置—钻套 32
4.5 计算切削力 32
4.6 计算夹紧力 32
4.7 分析与计算定位误差 33
5 结论 35
6 致谢 36
参考文献 37
温馨提示:
1、题目前面的备注【字母数字编号】为本站整理分类的编号,与课题内容无关,请选题时忽视;
2、若题目上备注三维,则表示文件里包含三维源文件,由于三维组成零件数量较多,为保证预览截图的简洁性,本站将三维文件夹进行了打包。三维及CAD预览截图,均为本站电脑打开软件进行截图的,保证能够打开,下载原件超高清,下载后解压即可;
3、本站所有资源如无特殊说明,都需要本地电脑安装Office2007。图纸软件为AutoCAD,PROE,UG,SolidWorks,CATIA等;
4、本站所有图文资料仅供用户学习参考,不作为任何商用或其他用途;
5、本站不保证下载资源的准确性、安全性和完整性, 不包修改,不支持退换,同时也不承担用户因使用这些下载资源对自己和他人造成任何形式的伤害或损失;
6、 下载文件中如有侵权或不适当内容,请与我们联系,我们立即纠正。