

作品包括:
Word版说明书1份,共18页,7000字
工序卡1张
工艺过程卡1张
任务书一份
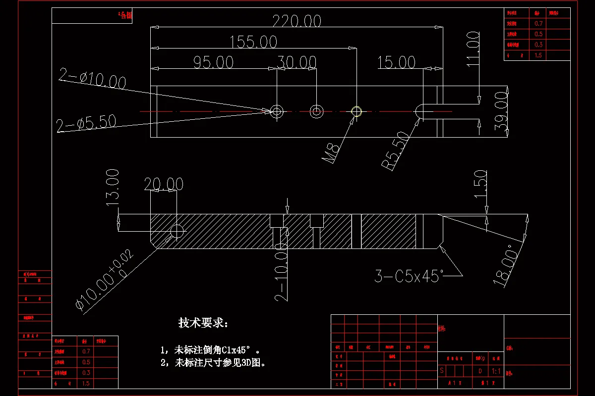
CAD版本图纸,共4张
Proe三维图一份
仿真视频一份


摘要
机械加工工艺是实现产品设计,保证产品质量、节约能源、降低成本的重要手段,是企业进行生产准备,计划调度、加工操作、生产安全、技术检测和健全劳动组织的重要依据。后钢板弹簧吊耳是汽车悬架中的常见零件.本次设计是对后钢板弹簧吊耳零件的加工工艺规程及一些工序的专用夹具设计。后钢板弹簧吊零件的主要加工表面是平面及孔。由加工工艺原则可知,保证平面的加工精度要比保证孔的加工精度容易。所以本设计遵循先面后孔,先粗后精的原则。并将孔与平面的加工明确划分成粗加工和精加工阶段以保证加工精度。基准选择以后钢板弹簧吊耳大外圆面作为粗基准,以后钢板弹簧吊耳大外圆端面与两个工艺孔作为精基准。主要加工工序安排是先以后钢板弹簧吊耳大外圆面为基准加工孔,再以大孔轴线为基础定位加工大外圆端面。在后续工序中除个别工序外均用端面和工艺孔定位加工其他孔与平面。整个加工过程均可选用不同的普通机床。
关键词:后钢板弹簧吊耳工艺分析,机械加工工艺设计,加工工艺原则,夹具设计
目录
摘要I
前言1
第1章后钢板弹簧吊耳零件工艺分析2
1.1后钢板弹簧吊耳零件的作用2
1.2后钢板弹簧吊耳零件的结构特点2
1.3后钢板弹簧吊耳零件的结构工艺性2
第2章后钢板弹簧吊耳零件工艺设计3
2.1后钢板弹簧吊耳生产类型的确定3
2.2后钢板弹簧吊耳毛坯的选择与毛坯图说明3
2.2.1后钢板弹簧吊耳毛坯的选择3
2.2.2后钢板弹簧吊耳毛坯图说明3
2.3后钢板弹簧吊耳工艺路线的确定4
2.3.1工艺路线的确定4
2.3.2各表面加工方法6
2.3.3加工设备与工艺装备的选择6
2.3.4毛胚加工与余量计算7
3粗镗37mm孔夹具设计9
3.1加工Φ37mm孔的总体方案设计9
3.2加工Φ37mm孔的定位分析及误差计算11
3.3加工Φ37mm孔的夹紧机构设计与夹紧力计算12
3.4加工Φ37mm孔的夹紧操作动作说明13
设计心得14
参考文献15
附录Ⅰ粗镗37mm孔三维图16
温馨提示:
1、题目前面的备注【字母数字编号】为本站整理分类的编号,与课题内容无关,请选题时忽视;
2、若题目上备注三维,则表示文件里包含三维源文件,由于三维组成零件数量较多,为保证预览截图的简洁性,本站将三维文件夹进行了打包。三维及CAD预览截图,均为本站电脑打开软件进行截图的,保证能够打开,下载原件超高清,下载后解压即可;
3、本站所有资源如无特殊说明,都需要本地电脑安装Office2007。图纸软件为AutoCAD,PROE,UG,SolidWorks,CATIA等;
4、本站所有图文资料仅供用户学习参考,不作为任何商用或其他用途;
5、本站不保证下载资源的准确性、安全性和完整性, 不包修改,不支持退换,同时也不承担用户因使用这些下载资源对自己和他人造成任何形式的伤害或损失;
6、 下载文件中如有侵权或不适当内容,请与我们联系,我们立即纠正。