

作品包括:
Word版说明书1份,共32页,约12000字
工序卡11张
工艺过程卡1张
CAD版本图纸,共7张

摘要
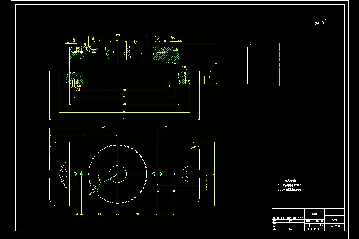
本次的题目是WHZ-018外滑座零件的加工工艺分析及铣夹具设计。其设计涉及到机械制造工艺及机床夹具设计、金属切削机床、公差配合与测量等多方面的知识。该零件是机器或者机构上面一个重要的附件,是形状规则的盘类零件。其作用是支承滑动零件,实现相应的运动。该零件的材料是HT200灰铸铁,该材料综合性能比较好,比较适合铸造。设计内容含零件加工的工艺设计、工序设计以及专用夹具的设计三部分。
工艺设计的内容有完成零件结构的分析,设计了2种加工零件的方法,选择了比较合适的一条,填写工艺卡。选择了零件的加工基准,选取了加工余量,计算出了相应的切削数据,填写了工序卡,完成了零件图还有毛坯图。
专用夹具的主要内容有:根据工序图上面的定位和夹紧简图,设计铣160±0.05两端面铣床专用夹具,采用的机床是X6132卧式铣床。设计了定位和夹紧方案,选择了定位和夹紧元件。选择标准件对刀块等等。最后,完成了装配图还有所有非标零件图的绘制,编写了设计说明书等。
关键词:WHZ-018外滑座;加工工艺;铣160±0.05两端面;X6132
目录
摘要I
Abstract II
第一章分析加工工件—外滑座1
1.1分析零件的作用1
1.2分析零件的材料1
1.3分析零件的组成表面2
1.4分析零件加工面的加工要求2
1.5分析零件的形位公差2
第二章设计零件加工工艺规程3
2.1确定零件制造形式3
2.2确定零件生产类型4
2.3零件加工基准的选择5
2.3.1零件粗加工基准的选择5
2.3.2零件精加工基准的选择5
2.4设计、分析以及确定加工工艺路线5
2.5确定机床、夹具、刀具及量具6
2.6确定机加工余量7
2.7确定切削用量及工时9
第三章设计专用夹具23
3.1专用夹具设计前的分析23
3.2设计定位方案及确定定位元件23
3.3设计夹紧方案及确定夹紧元件24
3.4设计夹具体24
3.5铣削力和夹紧力的计算25
3.5.1计算铣削力25
3.5.2计算夹紧力25
3.6分析夹具定位精度26
结论27
致谢28
参考文献29
温馨提示:
1、题目前面的备注【字母数字编号】为本站整理分类的编号,与课题内容无关,请选题时忽视;
2、若题目上备注三维,则表示文件里包含三维源文件,由于三维组成零件数量较多,为保证预览截图的简洁性,本站将三维文件夹进行了打包。三维及CAD预览截图,均为本站电脑打开软件进行截图的,保证能够打开,下载原件超高清,下载后解压即可;
3、本站所有资源如无特殊说明,都需要本地电脑安装Office2007。图纸软件为AutoCAD,PROE,UG,SolidWorks,CATIA等;
4、本站所有图文资料仅供用户学习参考,不作为任何商用或其他用途;
5、本站不保证下载资源的准确性、安全性和完整性, 不包修改,不支持退换,同时也不承担用户因使用这些下载资源对自己和他人造成任何形式的伤害或损失;
6、 下载文件中如有侵权或不适当内容,请与我们联系,我们立即纠正。