

作品包括:
Word版说明书1份,共41页,约15000字
工序卡9张
工艺过程卡1张
CAD版本图纸,共6张
Proe三维图一套

摘要
在经济飞速向前的当下,制造业快速发展的今天。非标零件的尺寸、结构也千变万化。以往设计的通用夹具,越来越多的面临淘汰。所以专用夹具的设计与生产越来越广泛。专用夹具的研究其主要内容有定位方案、夹紧方案的确定,定位元件、夹紧元件的选择,导向装置的选择等等。
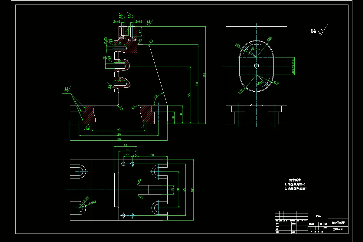
本次设计研究的对象是齿轮油泵泵体。设计内容包括:1、工艺分析;2、钻2XФ7孔钻床专用夹具设计。齿轮油泵泵体是齿轮油泵上不可或缺的零件之一,为齿轮油泵及零部件的正常运转提供保障。
从零件结构分析入手,合理选择定位基准,各种刀具参数选择以及切削用量的选择等。在安排工艺过程时,根据加工要求不同,需要进行粗精加工。另外还确定了切削参数,加工工时,填写工艺过程卡片和工序卡片。专用夹具设计内容有:确定定位方案及元件,确定夹紧方案及元件,确定导向装置,计算切削力及夹紧力等。
关键词:齿轮油泵泵体、工艺、钻2XФ7孔
目录
摘要I
ABSTRACT II
1绪论1
1.1机床夹具的分类1
1.2机床夹具的组成1
1.3机床夹具的发展方向2
2零件的作用、组成表面及技术要求3
2.1零件的作用3
2.2零件的组成表面4
2.3零件的技术要求4
3零件的工艺分析及设计5
3.1机械加工工艺规程的概述、作用、制定原则及满足要求5
3.1.1机械加工工艺规程的概述5
3.1.2机械加工工艺规程的作用5
3.1.3机械加工工艺规程制定的原则5
3.1.4机械加工工艺规程应满足的使用要求6
3.2确定零件的生产类型及毛坯的制造形式7
3.2.1确定零件的生产类型7
3.2.2确定毛坯的制造形式7
3.3基准的选择与确定8
3.4工艺过程设计中应考虑的主要问题10
3.4.1加工方法选择的原则10
3.4.2加工阶段的划分10
3.4.3工序的合理组合11
3.5加工工艺路线的确定12
3.6加工设备及加工装备的选择13
3.7确定加工余量13
3.8计算切削用量、基本时间及辅助时间15
4钻2XФ7孔专用夹具设计31
4.1定位方案及装置的确定31
4.1.1定位方案的确定31
4.1.2定位元件的确定31
4.2夹紧方案及装置的确定32
4.2.1夹紧方案的确定32
4.2.2夹紧元件的确定32
4.3夹具体的设计32
4.4确定导向装置—钻套33
4.5计算钻削力34
4.6计算夹紧力34
4.7分析与计算定位误差35
结论36
致谢37
参考文献38
温馨提示:
1、题目前面的备注【字母数字编号】为本站整理分类的编号,与课题内容无关,请选题时忽视;
2、若题目上备注三维,则表示文件里包含三维源文件,由于三维组成零件数量较多,为保证预览截图的简洁性,本站将三维文件夹进行了打包。三维及CAD预览截图,均为本站电脑打开软件进行截图的,保证能够打开,下载原件超高清,下载后解压即可;
3、本站所有资源如无特殊说明,都需要本地电脑安装Office2007。图纸软件为AutoCAD,PROE,UG,SolidWorks,CATIA等;
4、本站所有图文资料仅供用户学习参考,不作为任何商用或其他用途;
5、本站不保证下载资源的准确性、安全性和完整性, 不包修改,不支持退换,同时也不承担用户因使用这些下载资源对自己和他人造成任何形式的伤害或损失;
6、 下载文件中如有侵权或不适当内容,请与我们联系,我们立即纠正。