

作品包括:
Word版说明书1份,共40页,约11000字
任务书一份
开题报告一份
工序卡11张
工艺过程卡1张
CAD版本图纸,共9张

摘要
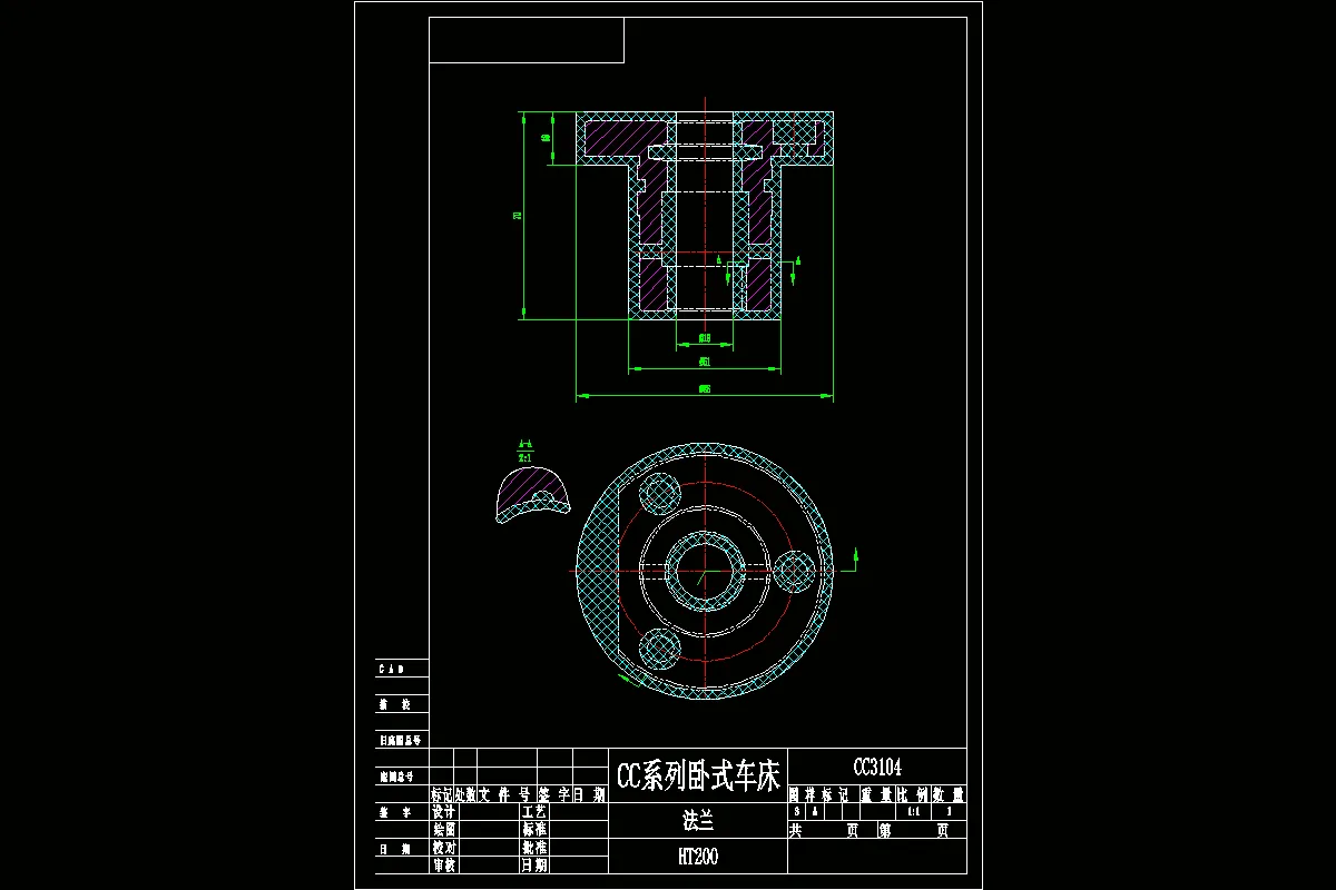
法兰在现实生活和生产中运用非常广泛,一般的都是成对使用的,在圆周方向上均布的开设通孔或者台阶孔,用于连接。本次研究的对象CC3104法兰是CC系列卧式车床上重要的零件之一。设计的主要内容包括2个方面:1、工艺分析;2、铣Φ80上端面铣床专用夹具设计。
工艺分析主要内容有零件作用、构造、加工表面以及形位公差的分析。加工零件整个过程的确定;加工零件采用的机床、刀具、夹具、量具等等。
通过对工件定位原理内容,夹紧装置应该遵守原则等内容的掌握,为专用夹具设计中定位、夹紧元件还有定位、夹紧方案的确定提供依据。还对夹具体进行了设计与确定等。最后,完成图形绘制及说明书编写。
关键词:法兰、CC3104、工艺分析、Φ80上端面、铣床
目录
摘要I
ABSTRACT II
0前言- 1-
0.1工件定位的概述- 1-
0.1.1六点定位原理- 1-
0.1.2工件的定位- 1-
0.2工件夹紧的概述- 1-
1零件的分析- 3-
1.1零件的作用- 3-
1.2零件的表面构成- 3-
1.3零件的加工要求- 4-
1.4零件的形位公差- 4-
1.5零件的生产类型- 4-
1.6零件的材料- 4-
1.7零件的制造形式- 4-
2加工工艺规程的设计- 6-
2.1确定加工基准- 6-
2.2设计加工工艺路线- 6-
2.3选择加工装备- 7-
2.4确定加工余量- 7-
2.5确定切削用量及加工工时- 9-
3铣Ф80上端面专用夹具设计- 31-
3.1定位方案及元件的设计与确定- 31-
3.1.1定位方案的设计- 31-
3.1.2定位元件的确定- 31-
3.2夹紧方案及元件的设计与确定- 32-
3.2.1夹紧方案的设计- 32-
3.2.2夹紧元件的确定- 32-
3.3夹具体的设计与确定- 32-
3.4对刀块的设计与确定- 33-
3.5铣削力、夹紧力计算与确定- 33-
3.5.1铣削力的计算与确定- 33-
3.5.2夹紧力的计算与确定- 33-
3.6定位误差的计算与分析- 34-
结论- 35-
致谢- 36-
参考文献- 37-
温馨提示:
1、题目前面的备注【字母数字编号】为本站整理分类的编号,与课题内容无关,请选题时忽视;
2、若题目上备注三维,则表示文件里包含三维源文件,由于三维组成零件数量较多,为保证预览截图的简洁性,本站将三维文件夹进行了打包。三维及CAD预览截图,均为本站电脑打开软件进行截图的,保证能够打开,下载原件超高清,下载后解压即可;
3、本站所有资源如无特殊说明,都需要本地电脑安装Office2007。图纸软件为AutoCAD,PROE,UG,SolidWorks,CATIA等;
4、本站所有图文资料仅供用户学习参考,不作为任何商用或其他用途;
5、本站不保证下载资源的准确性、安全性和完整性, 不包修改,不支持退换,同时也不承担用户因使用这些下载资源对自己和他人造成任何形式的伤害或损失;
6、 下载文件中如有侵权或不适当内容,请与我们联系,我们立即纠正。