

作品包括:
说明书1份,共19页,约5200字左右
CAD版本图纸,共4张
工序卡一套
过程卡一套

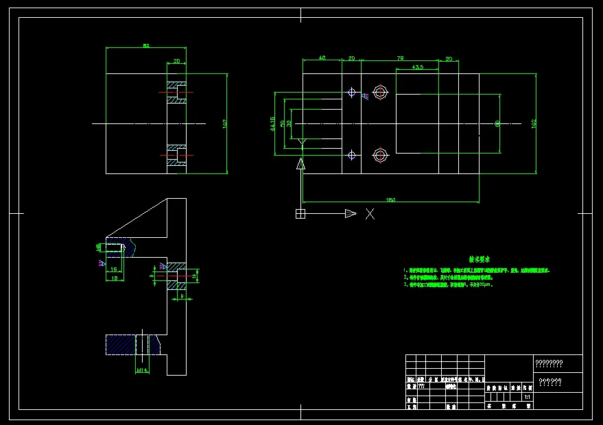
【摘要】轴承座是用来支撑轴承的,固定轴承的外圈,仅仅 让内圈转动,外圈保持不动,始终与传动的方向保持一致(比如电机运转方向),并且保持平衡;轴承座的概念就是轴承和箱体的集合体,以便于应用,这样的好处是可以有更好的配合,更方便的使用,减少了使用厂家的成本.至于形状,多种多样,通常是一个箱体,轴承可以安装在其中。期中φ13孔是将轴承座固定的作用孔。随着科学技术的不断进步,它在国民经济中占有越来越重要的地位,发展前景十分广阔,尤其是在汽车和电子电器等高速发展的领域。本次课程设计设计的课题就是轴承座的设计,是在学完汽车制造工艺学后进行的一项教学环节;在老师的指导下,要求在设计中能初步学会综合运用以前所学过的全部课程,并且独立完成的一项工程基本训练。
【关键词】轴承座 工艺规格设计 夹具设计 工序 工艺性
目录
1、前言 ———————————————————1
2、零件功能和结构分析 ————————————— 1
3、工艺分析 —————————————————1
3.1 确定生产类型 ——————————— 2
3.2 确定毛坯类型 ——————————— 2
3.3 确定毛坯余量 ——————————— 2
4、工艺路线的确定 —————————————— 3
4.1 选择定位基准 ———————————3
4.2 制定工艺路线 ———————————3
4.3 选择加工设备和工艺设备 ———————4
5、机械加工工序设计 ——————— ———————4
5.1 机械加工余量、工序尺寸及公差的确定 ——4
5.2 确定切削用量及时间定额 ——— ———6
6、夹具设计 —————————————— ———11
7、参考文献 ————————————— ————13
温馨提示:
1、题目前面的备注【字母数字编号】为本站整理分类的编号,与课题内容无关,请选题时忽视;
2、若题目上备注三维,则表示文件里包含三维源文件,由于三维组成零件数量较多,为保证预览截图的简洁性,本站将三维文件夹进行了打包。三维及CAD预览截图,均为本站电脑打开软件进行截图的,保证能够打开,下载原件超高清,下载后解压即可;
3、本站所有资源如无特殊说明,都需要本地电脑安装Office2007。图纸软件为AutoCAD,PROE,UG,SolidWorks,CATIA等;
4、本站所有图文资料仅供用户学习参考,不作为任何商用或其他用途;
5、本站不保证下载资源的准确性、安全性和完整性, 不包修改,不支持退换,同时也不承担用户因使用这些下载资源对自己和他人造成任何形式的伤害或损失;
6、 下载文件中如有侵权或不适当内容,请与我们联系,我们立即纠正。