

作品包括:
Word版说明书1份,共21页,约3800字
CAD版本图纸,共5张

目录
一、设计题目 2
进度要求: 2
最后提交的资料: 2
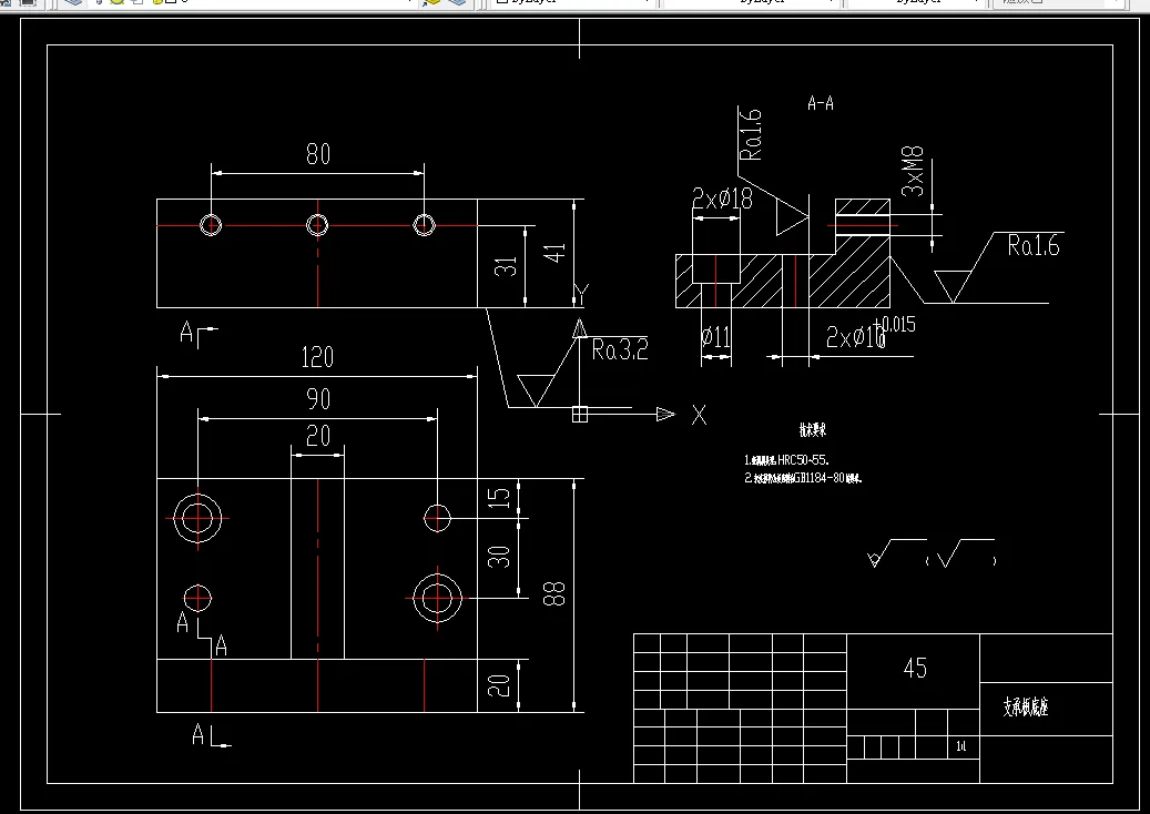
二、 零件的分析 3
2.1 零件的作用 3
2.2 零件的工艺分析 3
三、定位方案设计 5
3.1 方案一 5
3.2 方案二 6
3.3 方案的比较和选择 7
3.4 定位原件选取 7
四、 导向装置设计 9
五、 夹紧机构设计 12
5.1 夹紧机构的选择 12
5.2 夹紧元件的设计 12
5.3铣削力的计算 13
5.4 夹紧力的计算 13
5.5 夹紧元件的选取 14
六、夹具体设计 15
七、其他设计 17
7.1对刀块底座的设计 17
7.2 支承板底座的设计 18
八、总装配图 19
九、总结 20
十、参考资料 21
温馨提示:
1、题目前面的备注【字母数字编号】为本站整理分类的编号,与课题内容无关,请选题时忽视;
2、若题目上备注三维,则表示文件里包含三维源文件,由于三维组成零件数量较多,为保证预览截图的简洁性,本站将三维文件夹进行了打包。三维及CAD预览截图,均为本站电脑打开软件进行截图的,保证能够打开,下载原件超高清,下载后解压即可;
3、本站所有资源如无特殊说明,都需要本地电脑安装Office2007。图纸软件为AutoCAD,PROE,UG,SolidWorks,CATIA等;
4、本站所有图文资料仅供用户学习参考,不作为任何商用或其他用途;
5、本站不保证下载资源的准确性、安全性和完整性, 不包修改,不支持退换,同时也不承担用户因使用这些下载资源对自己和他人造成任何形式的伤害或损失;
6、 下载文件中如有侵权或不适当内容,请与我们联系,我们立即纠正。