

作品包括:
Word版说明书1份,共40页,共41页,约16000字
开题报告一份
中期报告一份
工序卡10张
工艺过程卡1张
CAD版本图纸,共6张
Proe三维图一份

摘要
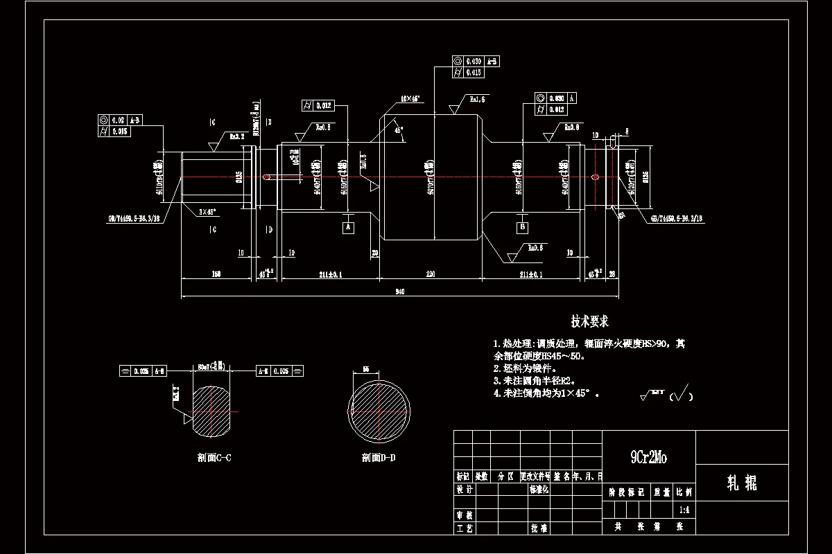
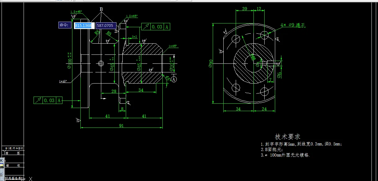
本课题的主要研究内容是某种壳体零件的机械加工工艺及夹具设计。壳体零件是一种很重要的零件,它起到了支承和包容传动的作用。泵壳零件的加工工艺规程及夹具设计是包括零件加工的工艺设计、工序设计以及专用夹具的设计三部分。通过对零件进行分析设计了两套工艺路线,通过分析比较选择了一个比较合理的方案;设计出毛坯的结构及零件的加工基准,计算各个工步的工序进行尺寸并决定出各个工序的工艺装备及切削用量;设计了钻夹具专用夹具,计算出夹具定位时产生的定位误差。本设计的加工工艺合理,夹具可行、高效、省力,能满足零件的加工要求,保证其加工质量。
温馨提示:
1、题目前面的备注【字母数字编号】为本站整理分类的编号,与课题内容无关,请选题时忽视;
2、若题目上备注三维,则表示文件里包含三维源文件,由于三维组成零件数量较多,为保证预览截图的简洁性,本站将三维文件夹进行了打包。三维及CAD预览截图,均为本站电脑打开软件进行截图的,保证能够打开,下载原件超高清,下载后解压即可;
3、本站所有资源如无特殊说明,都需要本地电脑安装Office2007。图纸软件为AutoCAD,PROE,UG,SolidWorks,CATIA等;
4、本站所有图文资料仅供用户学习参考,不作为任何商用或其他用途;
5、本站不保证下载资源的准确性、安全性和完整性, 不包修改,不支持退换,同时也不承担用户因使用这些下载资源对自己和他人造成任何形式的伤害或损失;
6、 下载文件中如有侵权或不适当内容,请与我们联系,我们立即纠正。