

作品包括:
说明书一份,共28页,约8800字
工序卡13张
工艺过程卡1张
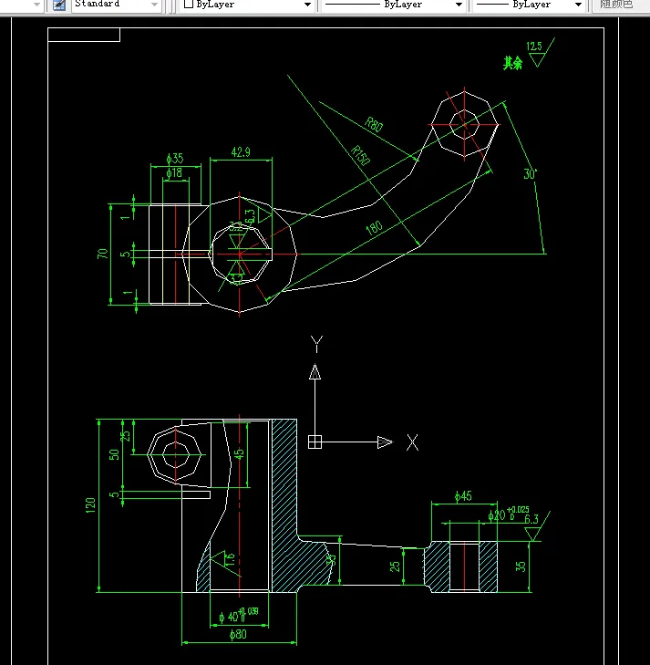
CAD版本图纸,共4张
![1702612466972287.webp E8`USX2]2Z29FFXSU269~GR.webp](/static/upload/image/20231215/1702612466972287.webp)
目 录
第1章 绪论 1
1.1 课题研究的背景 1
1.2 课题研究的目的和意义 2
1.3 课题研究的任务 2
第2章 零件工艺分析 3
2.1 零件图分析 3
2.2 零件的作用 3
2.3 审查零件结构工艺性 3
2.4 确定毛坯类型 4
2.5 绘制毛坯图 5
3 机械加工工艺过程设计 6
3.1 选择定位基准 6
3.2 拟订工步顺序 6
3.3 选择机床、量具、刀具 8
3.4 确定切削用量 10
第4章 夹具设计 17
4.1确定设计任务 17
4.2夹具设计方法 17
4.3确定夹具技术要求和有关尺寸、公差配合 19
4.3.1 技术要求 19
4.3.2 定位误差 19
4.3.3夹紧装置 20
4.4切削力及夹紧力的计算 21
总结 22
致 谢 24
温馨提示:
1、题目前面的备注【字母数字编号】为本站整理分类的编号,与课题内容无关,请选题时忽视;
2、若题目上备注三维,则表示文件里包含三维源文件,由于三维组成零件数量较多,为保证预览截图的简洁性,本站将三维文件夹进行了打包。三维及CAD预览截图,均为本站电脑打开软件进行截图的,保证能够打开,下载原件超高清,下载后解压即可;
3、本站所有资源如无特殊说明,都需要本地电脑安装Office2007。图纸软件为AutoCAD,PROE,UG,SolidWorks,CATIA等;
4、本站所有图文资料仅供用户学习参考,不作为任何商用或其他用途;
5、本站不保证下载资源的准确性、安全性和完整性, 不包修改,不支持退换,同时也不承担用户因使用这些下载资源对自己和他人造成任何形式的伤害或损失;
6、 下载文件中如有侵权或不适当内容,请与我们联系,我们立即纠正。