

作品包括:
说明书1份,共41页,约10000字左右
CAD版本本图纸,共4张
摘 要
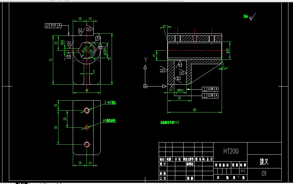
本设计主要是对CA6140床头I轴轴承座零件工艺规程及夹具进行设计研究。运用相关理论知识以及所学的机械制图,进行设计。首先,介绍了论文的研究背景以及研究意义;其次从I轴轴承座加工工艺规程设计进行说明,其工艺规程包括选择定位基准、制定工艺路线、选择加工设备和工艺设备以及确定加工余量、工序尺寸以及公差。一些工序的专用夹具设计。CA6140I轴轴承座零件的主要加工表面是平面及孔。最后进行了实证研究设计。根据设计类型需求,本设计主要按照先面后孔的原则进行设计,选用数控机床、采用手动夹紧。
关键词:加工工艺,夹具,定位
目 录
第一章 绪论 1
第二章 I轴轴承座加工工艺规程设计 3
2.1零件的分析 3
2.2确定生产类型 3
2.3确定毛坯 4
2.4工艺规程设计 4
2.5确定切削用量及基本工时 8
2.6本章小结 20
第三章 钻φ5长斜孔工序夹具设计 21
3.1问题的提出 21
3.2夹具的设计 21
3.3本章小结 26
第四章 钻φ5长斜孔工序刀具设计说明书 27
4.1刀具类型确定 27
4.2刀具设计参数确定 27
4.3刀具工作草图 28
第五章 钻φ5长斜孔工序量具设计说明书 29
5.1量具类型确定 29
5.2极限量具尺寸公差确定 29
5.3极限量具尺寸公差带图 30
5.4极限量具结构设计 30
结 论 31
参 考 文 献 32
致 谢 33
温馨提示:
1、题目前面的备注【字母数字编号】为本站整理分类的编号,与课题内容无关,请选题时忽视;
2、若题目上备注三维,则表示文件里包含三维源文件,由于三维组成零件数量较多,为保证预览截图的简洁性,本站将三维文件夹进行了打包。三维及CAD预览截图,均为本站电脑打开软件进行截图的,保证能够打开,下载原件超高清,下载后解压即可;
3、本站所有资源如无特殊说明,都需要本地电脑安装Office2007。图纸软件为AutoCAD,PROE,UG,SolidWorks,CATIA等;
4、本站所有图文资料仅供用户学习参考,不作为任何商用或其他用途;
5、本站不保证下载资源的准确性、安全性和完整性, 不包修改,不支持退换,同时也不承担用户因使用这些下载资源对自己和他人造成任何形式的伤害或损失;
6、 下载文件中如有侵权或不适当内容,请与我们联系,我们立即纠正。