

作品包括:
Word版说明书1份,共28页,约10000字
工序卡一份
过程卡一份
CAD版本图纸,共2张
摘要
计算生产纲领,确定生产类型;分析产品装配图,对零件图样进行审查;确定毛坯的种类、形状、尺寸及精度;拟定工艺路线(划分工艺过程的级成、选择定位基准、选择零件表面的加工方法、安排加工顺序、选择机床设备等);进行工序设计(确定各工序余量、切削用量、工序尺寸及公差,选择工艺装备,计算时间定额等);确定工序的技术要求及检验方法,填写工艺文件。
根据生产、技术条件和对产品的使用要求,从工艺的角度出发,对零件图样进行如下 内容的审查:零件图样的视图、尺寸、公差和技术要求的完整性与正确性;加工要求的合理 性;零件结构的工艺性等。
关键词:工序,工艺,工序余量,公差
目录
第1章 绪论 1
1.1引言 1
1.2机械加工工艺规程的作用 1
1.3机械加工工艺规程设计的原则 2
1.4研究方法及技术路线 2
1.5选题的背景及意义 3
第2章 工艺规程设计 5
2.1选择毛坯应考虑的因素 5
2.2毛坯的制造形式 5
2.3 零件的分析 6
2.4 基面的选择 6
2.4.1 粗基准的选择原则 6
2.4.2精基准选择的原则 6
2.4制定工艺路线 7
第3章 确定切削用量及基本工时 10
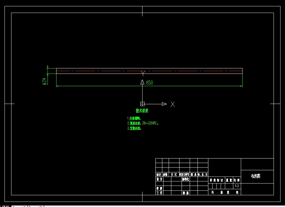
3.1棒料?24mm 850mm(8件连下) 10
3.2调质处理 10
3.3棒料通过主轴孔用三瓜自定心卡盘夹紧,车端面、车M20-7h外径为?19.979mm-?20 mm,长56mm,倒角C1 10
3.4调头棒料通过主轴孔用三瓜自定心卡盘夹紧,车其余外圆各部,保证22 mm,长20mm; M20-7h外径为?19.979mm-?20 mm,长24mm,倒角C1;车R1.5连接圆弧; 切断保证总长101mm 11
3.5夹22 mm(垫上铜皮)处,套螺纹M20-7h两处(倒头一处)……………….15
3.6三瓜自定心卡盘卡22 mm(垫上铜皮)处,车右端面保证总长100mm;倒角C1;钻右端孔?12.5mm深10mm;倒坡口120 ,控制坡口最大直径?16.5mm 16
3.7发蓝处理 18
3.8检验到图纸要求 18
3.9涂油入库 18
结 论 19
致 谢 20
参考文献 21
温馨提示:
1、题目前面的备注【字母数字编号】为本站整理分类的编号,与课题内容无关,请选题时忽视;
2、若题目上备注三维,则表示文件里包含三维源文件,由于三维组成零件数量较多,为保证预览截图的简洁性,本站将三维文件夹进行了打包。三维及CAD预览截图,均为本站电脑打开软件进行截图的,保证能够打开,下载原件超高清,下载后解压即可;
3、本站所有资源如无特殊说明,都需要本地电脑安装Office2007。图纸软件为AutoCAD,PROE,UG,SolidWorks,CATIA等;
4、本站所有图文资料仅供用户学习参考,不作为任何商用或其他用途;
5、本站不保证下载资源的准确性、安全性和完整性, 不包修改,不支持退换,同时也不承担用户因使用这些下载资源对自己和他人造成任何形式的伤害或损失;
6、 下载文件中如有侵权或不适当内容,请与我们联系,我们立即纠正。