

作品包括:
word说明书一份,共40页,约17000字
CAD版本图纸,共7张
工序卡一份
工艺过程卡一张
摘 要
404拖拉机离合器零件的加工工艺及工装夹具的设计,零件加工工艺设计,工艺设计和特殊夹具设计包括三部分。在工艺设计的第一部分进行分析,以了解一粗糙结构的重新设计的过程的一部分,和选择操作定好的部分,设计过程中线路组件,那么它是进行尺寸过程的每个步骤的一部分,关键它可以在技术设备和各个步骤的切割确定;然后专用夹具的设计,选择该设备的各种组件的设计,例如作为定位元件,所述夹持元件,导向元件,夹持并连接机器部件和其它部件;生成的计算定位误差时,模具定位,分析合理性和电枢结构的缺点和注意改进今后的设计。
关键词:工艺,工序,切削用量,夹紧,定位,误差
目 录
摘 要 III
Abstract IV
目 录 V
第1章 绪论 1
1.1 机械加工工艺概述 1
1.2机械加工工艺流程 1
1.3夹具概述 2
1.4机床夹具的功能 3
1.5机床夹具的发展趋势 4
1.5.1机床夹具的现状 4
1.5.2现代机床夹具的发展方向 4
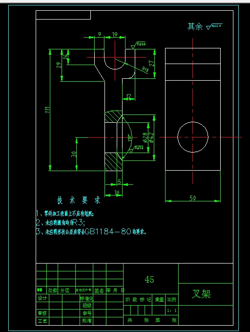
第2章 零件的分析 6
2.1零件的形状 6
2.2零件的工艺分析 6
第3章 工艺规程设计 8
3.1 确定毛坯的制造形式 8
3.2 基面的选择 8
3.3 制定工艺路线 8
3.3.1 工艺路线方案一 9
3.3.2 工艺路线方案二 9
3.3.3 工艺方案的比较与分析 9
3.4 选择加工设备和工艺装备 10
3.4.1 机床选用 10
3.4.2 选择刀具 10
3.4.3 选择量具 10
3.5 机械加工余量、工序尺寸及毛坯尺寸的确定 11
3.6确定切削用量及基本工时 12
第4章 机床夹具的定位及夹紧 19
4.1 概述 19
4.1.1 机床夹具的概念 19
4.1.2 机床夹具的组成 19
4.1.3 机床夹具的分类 19
4.1.4 机床夹具在机械加工中的作用 21
4.2 工件的装夹方式 21
4.3 基准及其分类 22
4.4 工件的定位 22
4.5 工件的夹紧 23
4.5.1夹紧装置的组成及基本要求 23
4.5.2 夹紧力的确定 24
4.6 专用夹具设计 25
4.6.1对机床专用夹具的基本要求 25
4.6.2专用夹具设计方法和步骤 25
4.6.3夹具总图技术要求的制订 26
第5章 液性塑料机构工装设计 27
5.1问题的提出 27
5.2 定位基准的选择 27
5.2.1定位元件的选择 27
5.2.2夹紧力的计算 27
5.2.3定位误差的计算 29
5.3 确定夹具体结构尺寸和总体结构 30
5.4 零件的车床专用夹具简单使用说明 31
总 结 32
致 谢 33
参考文献 34
温馨提示:
1、题目前面的备注【字母数字编号】为本站整理分类的编号,与课题内容无关,请选题时忽视;
2、若题目上备注三维,则表示文件里包含三维源文件,由于三维组成零件数量较多,为保证预览截图的简洁性,本站将三维文件夹进行了打包。三维及CAD预览截图,均为本站电脑打开软件进行截图的,保证能够打开,下载原件超高清,下载后解压即可;
3、本站所有资源如无特殊说明,都需要本地电脑安装Office2007。图纸软件为AutoCAD,PROE,UG,SolidWorks,CATIA等;
4、本站所有图文资料仅供用户学习参考,不作为任何商用或其他用途;
5、本站不保证下载资源的准确性、安全性和完整性, 不包修改,不支持退换,同时也不承担用户因使用这些下载资源对自己和他人造成任何形式的伤害或损失;
6、 下载文件中如有侵权或不适当内容,请与我们联系,我们立即纠正。