

作品包括:
说明书1份,共24页,约11000字左右
CAD版本本图纸,共10张
JLY3809机立窑(窑体及卸料部件)设计
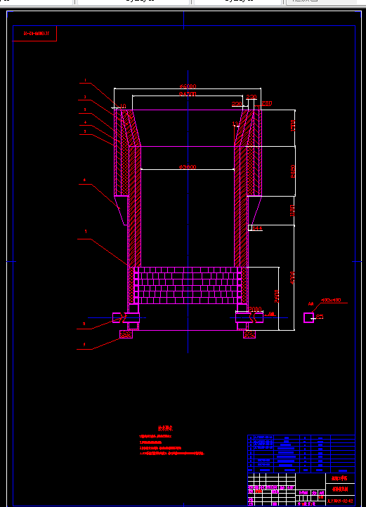
摘要:目前,机立窑存在着很多的问题。这些初级阶段的立窑装备老化、不完善,工艺落后,消耗大,成本高,生产不稳定,产量质量低,它们正处于被淘汰的处境。因此,新型的JLY3809机立窑应运而生。而窑体及卸料装置的结构的好坏决定了此机立窑总体结构的好坏。JLY3809机立窑从以下方面对窑体及卸料装置方面进行了改造。1.大胆地的对原有机立窑进行了扩径改造,实现对立窑产量的大幅度提高。2.窑体保温直接影响机立窑产、质量,由于窑体保温不好,配煤增加,中部热量过剩,造成中部煅烧带延长,底火下移,影响机立窑煅烧,产量降低。故本机立窑在窑体内采用了绝热保温效果好的新型保温材料和浇注料。3. 选用新型窑体卸料结构。本机立窑不宜采用塔式结构,因为塔式结构不仅增加卸料部分高度,缩短窑的有效高度;而且随着窑径扩大,塔式窑中、边部卸料能力不均匀性越大,造成中部卸料速度远远大于边部卸料速度,必然造成底火拉深,中风不足,故我选择了卸料均匀性好的双曲面可换齿高效节能塔篦。经过对窑体及其卸料装置这一系列的结构和技术的改造,JLY3809机立窑的能耗变低,水泥产质量都得到了提高。
关键词:机立窑;窑体保温;卸料装置;塔式篦子
目录
1前言 1
1.1 综述 1
1.2 设计依据及技术指标 1
1.3 本课题拟解决的问题 1
2总体方案论 2
2.1结构方案的确定 2
2.1.1传统窑的基本结构 2
3.本机立窑窑体总体设计 4
3.1窑体的总体结构的设计 4
3.1.1立窑高径比 5
3.1.2喇叭口机构的设计 5
3.1.3窑体保温 6
4.本机立窑的卸料装置设计 8
4.1塔式篦子 8
4.2齿盘 13
4.3颚板与钳口设计 15
4.4锥形漏斗 15
4.5供风 16
5.本机立窑密封装置的设计 17
5.1密封装置的作用 17
5.2料封类型、结构及软接头 17
5.3料封卸料器的结构 18
6.结论 20
参 考 文 献 21
致 谢 22
附 录 23
温馨提示:
1、题目前面的备注【字母数字编号】为本站整理分类的编号,与课题内容无关,请选题时忽视;
2、若题目上备注三维,则表示文件里包含三维源文件,由于三维组成零件数量较多,为保证预览截图的简洁性,本站将三维文件夹进行了打包。三维及CAD预览截图,均为本站电脑打开软件进行截图的,保证能够打开,下载原件超高清,下载后解压即可;
3、本站所有资源如无特殊说明,都需要本地电脑安装Office2007。图纸软件为AutoCAD,PROE,UG,SolidWorks,CATIA等;
4、本站所有图文资料仅供用户学习参考,不作为任何商用或其他用途;
5、本站不保证下载资源的准确性、安全性和完整性, 不包修改,不支持退换,同时也不承担用户因使用这些下载资源对自己和他人造成任何形式的伤害或损失;
6、 下载文件中如有侵权或不适当内容,请与我们联系,我们立即纠正。