

作品包括:
说明书1份,共23页,约9000字左右
任务书一份
开题报告一份
外文翻译一份
CAD版本本图纸,共20张
CATIA三维图一份
摘要
尿素自动拆包出料装置主要是应用在以尿素为还原剂的脱硝中尿素袋的卸料或储存,其必须与输送装置等设备配合使用。尿素自动拆包出料装置的主要任务是实现尿素袋的自动拆包,并使得空袋及杂质和尿素颗粒分离开来。本次说明书介绍了尿素自动拆包出料装置的设计。它和输送装置配合,共同完成自动拆包的整个作业。本文主要内容如下:
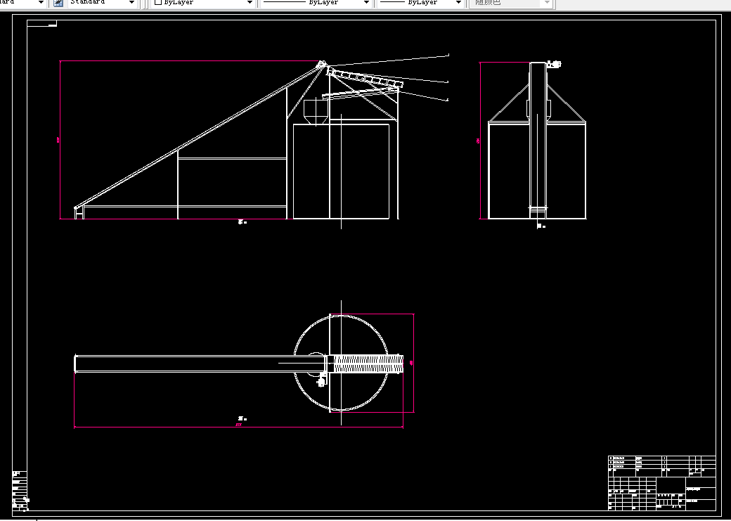
输送机构的设计:输送机构主要由带式输送机、驱动装置以及支撑输送机的支架组成。输送机构的设计部分主要内容为输送皮带、滚筒、轴承座、钢板、电动机以及支架材料等零部件的选型及计算,并根据题目要求和结合实际情况对输送机构进行合理的布置。
拆包机构的设计:拆包机构主要由破袋刀具、刀架以及相应的支架组成。拆包机构的设计部分主要内容为对刀具进行设计及选型,并对刀具在整个机构进行合理布置,以及对支架的合理安置,使得刀具能够快速轻松破袋,使破袋效果良好。
出料装置的设计:出料装置主要由出料的V型排列滚筒、导引滑槽以及相应的支架组成。出料装置的设计部分主要内容为对V型排列滚筒、轴承座、钢板、滑槽以及支架的选型,并将各部分零件进行合理布置,使得尿素袋拆包之后的尿素颗粒能够通过出料装置顺利漏到储仓内,而空的尿素袋则统一收集,使得尿素袋自动和尿素颗粒分离。
关键词:尿素自动拆包;输送机构;拆包机构;出料装置;V型排列滚筒
目录
摘要 I
Abstract II
1绪论 - 1 -
1.1前言 - 1 -
1.2尿素的简介 - 1 -
1.3尿素自动拆包出料装置的目的意义 - 2 -
1.4自动拆包机的发展现状 - 2 -
2尿素自动拆包出料装置设计方案确定 - 4 -
2.1本装置设计的背景 - 4 -
2.2尿素的理化性质 - 4 -
2.3尿素包装袋规格 - 5 -
2.4方案的确定 - 5 -
2.4.1方案的拟定 - 5 -
2.4.2方案的确定 - 7 -
3输送机构的设计 - 8 -
3.1输送机类型的确定 - 8 -
3.2布置方式 - 8 -
3.3输送带的选型 - 8 -
3.4输送机滚筒的选型 - 9 -
3.5输送机传动滚筒轴承及轴承座的选型 - 9 -
3.6支架材料的选取 - 10 -
3.7钢板的选择 - 10 -
3.8电动机的选择 - 10 -
4拆包机构的设计 - 12 -
4.1拆包机构的布置 - 12 -
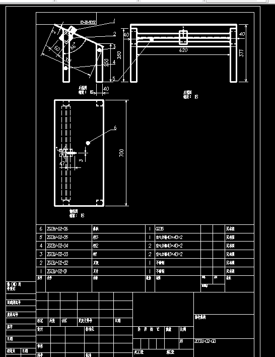
4.2支架及斜板的选择 - 12 -
4.3刀具的设计 - 12 -
5出料装置的设计 - 13 -
5.1支架材料的选取 - 13 -
5.2滚筒的选型 - 13 -
5.3轴承座的选择 - 14 -
5.4滑槽 - 14 -
5.5储仓 - 14 -
5.6布局 - 15 -
6结论 - 16 -
参考文献 - 17 -
致谢 - 18 -
温馨提示:
1、题目前面的备注【字母数字编号】为本站整理分类的编号,与课题内容无关,请选题时忽视;
2、若题目上备注三维,则表示文件里包含三维源文件,由于三维组成零件数量较多,为保证预览截图的简洁性,本站将三维文件夹进行了打包。三维及CAD预览截图,均为本站电脑打开软件进行截图的,保证能够打开,下载原件超高清,下载后解压即可;
3、本站所有资源如无特殊说明,都需要本地电脑安装Office2007。图纸软件为AutoCAD,PROE,UG,SolidWorks,CATIA等;
4、本站所有图文资料仅供用户学习参考,不作为任何商用或其他用途;
5、本站不保证下载资源的准确性、安全性和完整性, 不包修改,不支持退换,同时也不承担用户因使用这些下载资源对自己和他人造成任何形式的伤害或损失;
6、 下载文件中如有侵权或不适当内容,请与我们联系,我们立即纠正。