

作品包括:
说明书1份,共64页,约12000字左右
开题报告一份
外文翻译一份
CAD版本本图纸,共5张
中文摘要
装载机是工程机械的主要机种之一,作业效率高,本次设计的题目是ZL05装载机总体及其工作装置设计,此设计的主要内容如下:
装载机总体计算及分析,包括发动机参数选择,整机性能参数确定,总体参数评价,装载机铲装阻力的计算,整机的自重及桥荷分配,最大牵引力计算,最大爬坡度计算。
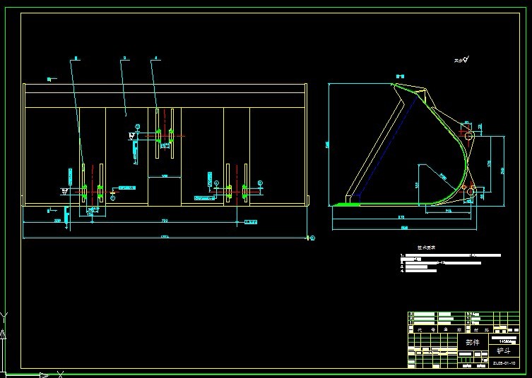
装载机总体中工作装置设计,包括铲斗斗型的选择,铰点位置确定,动臂、摇臂、拉杆长度和截面形状确定,工作装置受力分析及校核强度,各铰销强度校核,拉杆稳定性计算。
液压系统的分析与计算,包括工作液压系统设计参数及压力计算,油缸所需流量计算,油泵的选择,液压件的选择,转向液压系统的最小转弯半径,转向阻力及工作压力计算。
前后车架的铰接力式及工艺要求。
此外,还在ADAMS中建立了此装载机工作装置的模型并进行了运动仿真,并且测出了其最大卸载高度和斗尖的位移﹑速度﹑加速度曲线。
关键词 总体设计 工作装置 液压系统 车架
目 录
第一章 引言 1
1.1 设计任务和基本要求 1
1.2 主要部件结构形式 1
1.3 主要技术参数 1
第二章 总体设计 3
2.1 基本结构原理图 3
2.2 基本参数选取与确定 3
2.3 发动机 5
2.4 液压系统 5
第三章 工作装置设计 7
3.1 概述 7
3.2 铲斗基本参数的确定 7
3.3 动臂设计 9
3.4 工作装置强度计算 12
第四章 液压系统设计计算 30
4.1 转向系统分析及计算 30
4.2 转斗、动臂液压缸的选取 33
4.3 液压系统评价 40
第五章 车架设计 41
5.1 前车架的设计 41
5.2 后车架设计 42
5.3 车架的连接 42
5.4 车架设计评价 42
第六章 工艺分析 44
6.1 零件工艺性分析 44
6.2 零件机械加工工艺文件 44
第七章 工作装置仿真模型在ADAMS中的建立 46
7.1 在ADAMS中建立六连杆机构动力学仿真模型 46
7.2 卸载高度的测量 51
7.3 六连杆装载机铲斗斗尖位移、速度、加速度的测量 52
结论 56
致谢 57
参考文献 58
温馨提示:
1、题目前面的备注【字母数字编号】为本站整理分类的编号,与课题内容无关,请选题时忽视;
2、若题目上备注三维,则表示文件里包含三维源文件,由于三维组成零件数量较多,为保证预览截图的简洁性,本站将三维文件夹进行了打包。三维及CAD预览截图,均为本站电脑打开软件进行截图的,保证能够打开,下载原件超高清,下载后解压即可;
3、本站所有资源如无特殊说明,都需要本地电脑安装Office2007。图纸软件为AutoCAD,PROE,UG,SolidWorks,CATIA等;
4、本站所有图文资料仅供用户学习参考,不作为任何商用或其他用途;
5、本站不保证下载资源的准确性、安全性和完整性, 不包修改,不支持退换,同时也不承担用户因使用这些下载资源对自己和他人造成任何形式的伤害或损失;
6、 下载文件中如有侵权或不适当内容,请与我们联系,我们立即纠正。