

作品包括:
说明书1份,共103页,约21000字左右
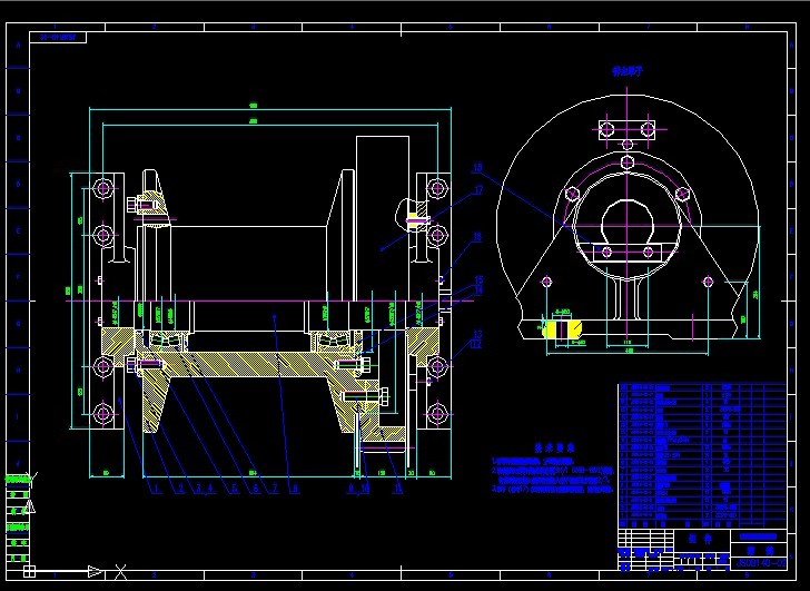
CAD版本本图纸,共5张
摘 要
双速多用绞车是矿山辅助运输设备的一种,利用钢丝绳循环往复工作,实现井下工作设备的运输功能。因其安装方便、操作简单、投资少、费用低、运输距离长及运输连续性等优势,在煤矿生产中,作为主运输或辅助运输设备占有较大的比例。但是目前煤矿上使用的绞车大部分还处于五六十年代的水平,牵引力小,功能简单,功率小,效率低。尽管一些煤矿对其进行的技术改造,但仍然满足不了当前矿井发展和生产的需要。为了进一步做好绞车的改进工作,本文设计了一种新型的辅助运输设备:JSDB-140型双速多用绞车。
JSDB-140型双速多用绞车主要有电动机、联轴器、变速器、卷筒、底座等组成,整个系统配置的方便灵活,外形尺寸小,使用方便,价格较低等优点受到越来越多矿井的欢迎。创新点在于将沿用多年的纵向排布结构改为横向对称结构,这对于工作空间限制极大的矿井生产带来了方便,给工人操作和运输提供了便利。同时安装绞车底座呈雪橇状,在生产现场自移平稳方便,而且绞车重心低,底座刚性好。
文中首先对绞车运输的现状及其在国内外的发展情况和运输过程中的传动系统图进行了简要说明;其次详细地说明了该绞车的结构特点和减速器传动结构的原理,并对该绞车减速器和滚筒装置中各部件进行设计、计算和校核,经校核计算得出各部件强度均满足要求;附录部分附写了该绞车在井下的安装示意图,该绞车的相关技术参数和轴承、齿轮及配用电器的参数等。
关键词:
双速多用绞车 ;新型 ; 矿山辅助运输 ; 滚筒
目 录
1绪论 1
1.1引言 1
1.2概述 1
1.3绞车结构的一般分析 2
1.4国内外绞车的发展 3
1.5双速绞车的现状 4
1.6JSDB系列双速多用绞车的特点 6
2总体设计 7
2.1设计总则 7
2.2已知条件 7
2.3传动系统的确定 7
2.4计算各级传动效率 8
2.4.1各级的传动的效率 8
2.4.2计算传动总效率 8
2.5传动系统的确定、运动学的计算及电机型号的选择 8
2.5.1确定钢丝绳在卷筒上的拉力及卷筒上的功率 8
2.5.2选择电动机的型号 9
2.5.3计算总传动比及分配各级传动比 9
2.6计算牵引钢丝绳的直径及滚筒直径的确定 10
2.6.1钢丝绳的选择 10
2.6.2滚筒的参数的确定 11
2..7 电机闷车时,钢丝绳在里层的安全系数验算... ..... ......... 12
3齿轮传动的设计计算 13
3.1第一级弧齿锥齿轮传动设计计算 13
3.1.1基本参数 13
3.1.2强度计算 14
3.2第二级齿轮传动的强度校核 17
3.2.1基本参数 17
3.2.2 强度校核 18
3.3第三级齿轮传动的强度校核 22
3.3.1基本参数 22
3.3.2 强度校核 23
3.4第四级齿轮传动的强度校核 26
3.4.1基本参数 26
3.4.2 强度校核 28
3.5第五级齿轮传动前级的强度校核 31
3.5.1基本参数 31
3.5.2 强度校核 32
3.6第五级齿轮传动后级的强度校核 36
3.6.1基本参数 36
3.6.2 强度校核 37
4 轴的设计计算 41
4.1锥齿轮轴的设计计算及强度校核 41
4.1.1轴的初步计算 41
4.1.2轴的强度校核 41
4.1.3验算锥齿轮轴上键的强度...... . ..................... 47
4.1.4锥齿轮轴上轴承的寿命验算 47
4.2二轴的设计计算及强度验算 48
4.2.1轴的初步计算 48
4.2.2轴的强度校核 48
4.2.3验算二轴上键的强度校核............................. 55
4.2.4验算二轴的轴承的寿命 56
4.3设计并计算滚筒轴及强度校核 57
4.3.1先进行受力分析对滚筒 57
4.3.2对滚筒轴进行受力分析 59
4.3.3初步确定轴的直径.. ......... .. ........ ....... . .. ..61
4.3.4校核轴的疲劳强度 61
4.3.5验算滚筒轴上的轴承的寿命 64
4.3.6卷筒轴上卷筒与大齿圈联接螺栓的强度验算.. . .. ... ...65
5 绞车操作的规定章程 67
5.1注意工作前须知事项 67
5.2下列规定应在工作期间严格遵守 68
5.3注意工作后须知事项.. ......... . ...... ........ .... . .... 69
5.4绞车的维护,拆卸装配与修理须注意事项 69
5.5《煤矿安全规程》对关于矿井提升机及绞车的规定 71
结论 77
参考文献 78
附录 79
翻译部分
英文原文 82
中文译文 87
致 谢 91
温馨提示:
1、题目前面的备注【字母数字编号】为本站整理分类的编号,与课题内容无关,请选题时忽视;
2、若题目上备注三维,则表示文件里包含三维源文件,由于三维组成零件数量较多,为保证预览截图的简洁性,本站将三维文件夹进行了打包。三维及CAD预览截图,均为本站电脑打开软件进行截图的,保证能够打开,下载原件超高清,下载后解压即可;
3、本站所有资源如无特殊说明,都需要本地电脑安装Office2007。图纸软件为AutoCAD,PROE,UG,SolidWorks,CATIA等;
4、本站所有图文资料仅供用户学习参考,不作为任何商用或其他用途;
5、本站不保证下载资源的准确性、安全性和完整性, 不包修改,不支持退换,同时也不承担用户因使用这些下载资源对自己和他人造成任何形式的伤害或损失;
6、 下载文件中如有侵权或不适当内容,请与我们联系,我们立即纠正。