

作品包括:
说明书1份,共108页,约27000字左右
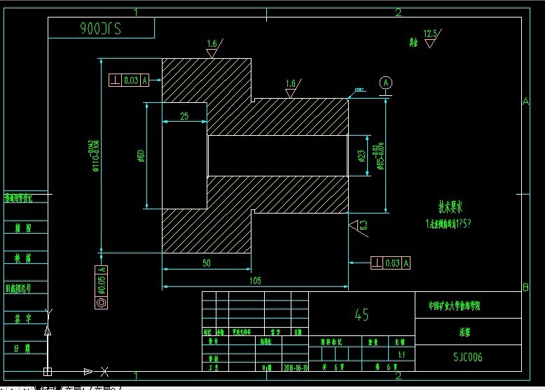
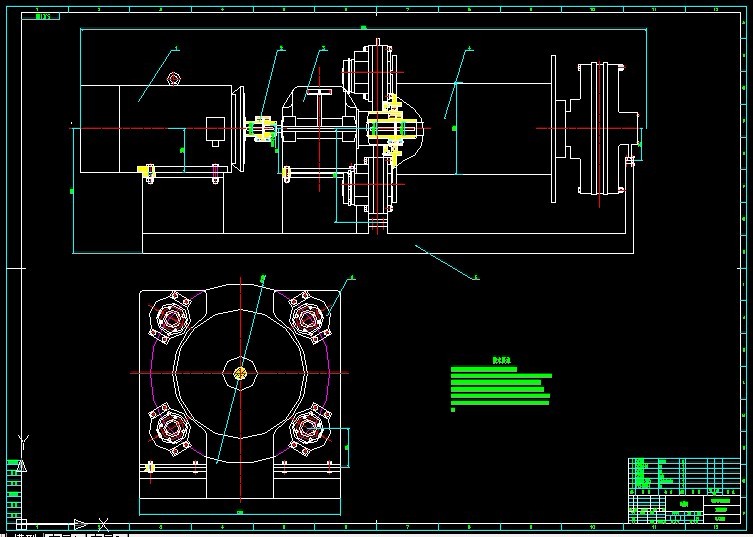
CAD版本本图纸,共6张
摘 要
煤矿生产大量使用调度绞车,目前常用的矿用运输绞车的操作存在安全隐患且体力劳动强度大,为此,研究设计出了一种液压制动矿用双速调度绞车。
该绞车采用液压系统完成绞车的启动、运行、变速、和安全制动等过程,避免了常用绞车操作过程中因机械故障而造成的人员伤害。设计的双速运行不仅可以完成搬运重物、调度车辆的功能,而且也满足实现轻载下快速调度的需求,实现了一机多用,大大提高了绞车的工作效率和拓宽了绞车的使用工况。
设计了一种可以换挡操作的变速箱,采用湿式多片离合器对绞车调度进行换挡控制。这不仅操作工可以远离绞车滚筒操作;同时变速箱变速更加稳定。变速箱通过箱内的离合器的油缸内充液压油推动活塞,从而使摩擦片结合来进行换挡操作。采用变速箱传动也使得绞车的传动部分脱离了绞车内部,这就方便了传动系统的损坏维修。
本设计来源于毕业实习,充分考虑到现场可实施性。同时以操作工人的安全为出发点进行的设计。
关键词:双速绞车 ;变速箱 ;离合器 ;盘式制动器
目 录
1 绪论 1
1.1双速矿用绞车的背景和意义 1
1.2国内外研究现状 2
1.3课题的设计意义 2
2 电动机的选型和滚筒设计 4
2.1电动机的选型 4
2.2牵引绞车外形设计计算 4
2.2.1钢丝绳的选型 4
2.2.2绞车滚筒的设计计算 6
3 传动系统的设计 8
3.1传动方案的确定 8
3.2快速和慢速时传动比计算与分配 9
4 齿轮的设计计算 11
4.1变速箱快速时第一级设计计算 11
4.1.1确定许用应力 11
4.1.2按齿根弯曲疲劳强度计算 12
4.1.3按齿面接触疲劳强度计算 14
4.1.4.确定齿数 16
4.1.5计算齿轮的几何尺寸 16
4.1.6 齿轮3和齿轮4的强度校核 17
4.1.7齿轮3和齿轮4的主要设计结果 20
4.2变速箱慢速时第一级设计计算 20
4.2.1齿轮1和齿轮2模数的确定 20
4.2.2齿轮1和齿轮2的变位传动设计 21
4.2.3 齿轮1和齿轮2的强度校核 22
4.2.4齿轮1和齿轮2的设计结果 25
4.3变速箱第二级齿轮传动设计 25
4.3.1确定许用应力 25
4.3.2按齿根弯曲疲劳强度计算 27
4.3.3按齿面接触疲劳强度计算 29
4.3.4.确定齿数 30
4.3.5计算齿轮的几何尺寸 31
4.3.6 齿轮5和齿轮6的强度校核 32
4.3.7主要设计结果 34
4.4行星齿轮传动设计 35
4.4.1行星齿轮齿数的确定 35
4.4.2初算中心距和模数 35
4.4.3几何尺寸计算 37
4.4.4主要参数计算结果: 38
4.4.5行星齿轮传动齿轮强度校核 38
5 轴的结构设计和计算 48
5.1所使用各轴的运动学参数计算 48
5.1.1每个轴的转速的计算 48
5.1.2 每个轴的功率的计算 48
5.1.3 每个轴的转矩的计算 49
5.2轴的材料的选择 49
5.3对轴的直径进行理论估算 49
5.4轴的结构的设计 50
5.4.1轴上零件的轴向定位 50
5.4.2确定各段轴的长度 50
5.4.3确定各段轴的直径 50
5.4.4轴上零件的周向定位 50
5.4.5按弯扭合成校核轴的强度 51
5.4.6按照轴的安全系数校核轴的疲劳强度 53
6 键的选择与校核 56
6.1键的选择 56
6.2键的连接强度的校核 56
7 湿式多片换挡离合器的设计 58
7.1湿式离合器的工作原理 58
7.2离合器的设计计算 59
7.2.1计算摩擦式离合器主要参数 59
7.2.3离合器的校核 60
7.2.4回位弹簧 61
8 盘式制动器 63
8.1盘式制动器的工作原理 63
8.2盘式制动器主要参数的设计计算 63
8.2.1制动时正压力的计算 63
8.2.2弹簧力的计算 64
8.2.3碟形弹簧的设计计算 65
8.2.4液压缸的设计计算 66
8.2.5油压最大值得理论计算 67
8.2.6制动器的校核 68
9 总结 70
参考文献 71
英文翻译 72
温馨提示:
1、题目前面的备注【字母数字编号】为本站整理分类的编号,与课题内容无关,请选题时忽视;
2、若题目上备注三维,则表示文件里包含三维源文件,由于三维组成零件数量较多,为保证预览截图的简洁性,本站将三维文件夹进行了打包。三维及CAD预览截图,均为本站电脑打开软件进行截图的,保证能够打开,下载原件超高清,下载后解压即可;
3、本站所有资源如无特殊说明,都需要本地电脑安装Office2007。图纸软件为AutoCAD,PROE,UG,SolidWorks,CATIA等;
4、本站所有图文资料仅供用户学习参考,不作为任何商用或其他用途;
5、本站不保证下载资源的准确性、安全性和完整性, 不包修改,不支持退换,同时也不承担用户因使用这些下载资源对自己和他人造成任何形式的伤害或损失;
6、 下载文件中如有侵权或不适当内容,请与我们联系,我们立即纠正。