

作品包括:
设计说明书1份,共32页,
CAD版本图纸,共15张
25t 轮胎起重机前桥设计
摘要
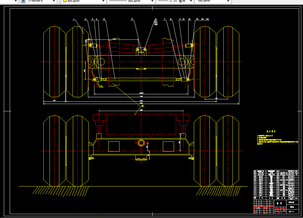
前桥是车辆的一个重要的部件,前桥系统的功用是通过悬架与车架相连,用以承受地面与车架之间的垂直载荷外,还承受制动力和侧向力以及这些力构成的力矩,并保证转向车轮做正确的运动。本设计按照这一要求设计介绍25t 轮胎起重机的前桥的设计方法,分析计算了该前桥的转向梯形机构、转向阻力矩、梯形连杆稳定性、前桥架。选择校核了轮胎以及其他主要零件如转向节销轴、羊角叉等,且绘制了前桥总成图、前轮总成图以及其他的零件图。
关键词:起重机;前桥;梯形转向机构
目 录
1 绪论......................................................................................................................................1
1.1 课题背景及目的..........................................................................................................1
1.2 国内外研究状况..........................................................................................................1
1.2.1 国内轮胎起重机的发展概况............................................................................1
1.2.2 国外轮胎起重机的发展概况............................................................................2
1.2.4 轮胎起重机的发展趋势....................................................................................3
1.3 本课题的研究方法......................................................................................................5
1.4 论文构成及研究内容..................................................................................................5
2 设计方案分析......................................................................................................................7
2.1 电动式轮胎起重机结构原理分析..............................................................................7
2.1.1 动力装置............................................................................................................7
2.1.2 起升机构............................................................................................................7
2.1.3 变副机构............................................................................................................8
2.1.4 回转机构............................................................................................................8
2.1.5 行驶机构............................................................................................................8
2.2 液压式轮胎起重机结构原理分析..............................................................................8
2.2.1 底盘传动系统....................................................................................................8
2.2.2 主、副起升机构................................................................................................8
2.2.3 回转机构............................................................................................................8
2.2.4 变副机构............................................................................................................8
2.2.5 起重臂及伸缩机构............................................................................................8
3 25t 轮胎起重机前桥各部件的计算................................................................................10
3.1 转向梯形机构的计算................................................................................................10
3.1.1 前轮转向的几何关系......................................................................................10
3.1.2 梯形机构分析与转向节叉几何尺寸的确定..................................................11
3.1.3 最小转弯半径的确定......................................................................................14
3.2 转向阻力矩计算........................................................................................................14
3.3 梯形连杆稳定性计算................................................................................................15
3.4 前桥梁计算................................................................................................................16
3.4.1 计算依据..........................................................................................................16
3.4.2 弯矩计算........................................................................................................17
3.4.3 前桥梁断面尺寸的确定................................................................................18
3.4.4 稳定性计算....................................................................................................19
3.5 静刚度验算................................................................................................................19
3.6 轮胎规格的选定........................................................................................................20
3.7 主要零件的计算........................................................................................................20
3.7.1 转向节销轴强度验算......................................................................................20
3.7.2 羊角叉轴强度验算..........................................................................................21
受力简图:................................................................................................................21
3.7.3 前桥端强度验算..............................................................................................23
3.7.4 箱形槽与前桥端结合部位的焊缝盈利计算..................................................24
小结..........................................................................................................................................25
参考文献..................................................................................................................................26
致谢..........................................................................................................................................27
附录..........................................................................................................................................28
附录A 开题报告
附录B 英文翻译及原文
温馨提示:
1、题目前面的备注【字母数字编号】为本站整理分类的编号,与课题内容无关,请选题时忽视;
2、若题目上备注三维,则表示文件里包含三维源文件,由于三维组成零件数量较多,为保证预览截图的简洁性,本站将三维文件夹进行了打包。三维及CAD预览截图,均为本站电脑打开软件进行截图的,保证能够打开,下载原件超高清,下载后解压即可;
3、本站所有资源如无特殊说明,都需要本地电脑安装Office2007。图纸软件为AutoCAD,PROE,UG,SolidWorks,CATIA等;
4、本站所有图文资料仅供用户学习参考,不作为任何商用或其他用途;
5、本站不保证下载资源的准确性、安全性和完整性, 不包修改,不支持退换,同时也不承担用户因使用这些下载资源对自己和他人造成任何形式的伤害或损失;
6、 下载文件中如有侵权或不适当内容,请与我们联系,我们立即纠正。