

作品包括:
word说明书一份,共36页,约14000字
外文翻译一份
CAD版本图纸,共8张
摘 要
摘要
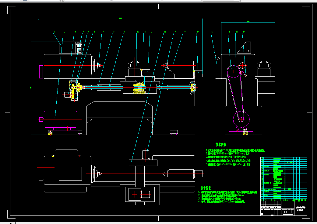
机床是机械制造业的重要基础设备,它的发展一直引起人们的高度关注,由于计算机技术的发展,促使机床的控制信息出现了很大的突破。现代数控机床是应用数字化计算机技术进行柔性自动化控制的新一代机床,是未来工厂自动化的基础。旧机床数控化改造范围大、潜力大、投资少、见效快,已经成为适合我国国情,促进制造业技术进步的重要手段。因此,数控系统改造车床的研究具有重要意义。
本文在叙述了数控技术的历史、现状和发展的基础上,通过对旧机床的分析,结合机床改造的总体思想,提出了数控化改造的技术方案和新数控系统的选型配置方案;针对旧机床的要求,进行了传动系统的重新设计,提高了传动的精度,重新设计机床的控制逻辑,通过对伺服系统的分析,完成了机床各主要参数的优化和匹配。
本机床改造后将会展示出强大的功能、稳定的性能,在投资比较少的情况下,既能满足生产加工的需求,又能提高机床的自动化程度。是一次有益的尝试。
关键词:CA6163;机床;改造;数控系统。
目录
摘要 I
Abstract II
目录 III
第一章 绪论 1
1.1 数控机床的历史和现状 1
1.2 数控机床的发展趋势和研究方向 3
1.2.1 高速度、高精度化 4
1.2.2多功能化 6
1.2.3智能化 7
1.2.4数控系统小型化 8
1.2.5数控编程自动化 8
1.2.6更高的可靠性 9
1.3机床数控化改造的必要性 9
第二章 机床改造的任务及总体思想 12
2.1机床改造的总体任务 12
2.2运动系统方案确定 12
2.2.1伺服系统的选择 12
2.2.2传动方式的选择 13
2.3数控系统软硬件总体设计 14
2.4数控系统硬件结构 14
2.5数控系统软件结构 15
第三章 进给伺服系统传动计算 17
3.1确定系统脉冲当量 17
3.2切削力的确定 17
3.3计算进给牵引力 18
3.4计算最大动负载C 18
3.5传动效率计算 20
3.6刚度计算 20
3.7进给伺服系统传动计算 21
3.7.1确定传动比 21
3.7.2齿轮参数的计算 21
3.8步进电机的计算和选用 22
3.8.1转动惯量的计算 22
3.8.2电机力矩的计算 23
3.9步进电机的选择 26
结论 28
参考文献 1
致谢 3
温馨提示:
1、题目前面的备注【字母数字编号】为本站整理分类的编号,与课题内容无关,请选题时忽视;
2、若题目上备注三维,则表示文件里包含三维源文件,由于三维组成零件数量较多,为保证预览截图的简洁性,本站将三维文件夹进行了打包。三维及CAD预览截图,均为本站电脑打开软件进行截图的,保证能够打开,下载原件超高清,下载后解压即可;
3、本站所有资源如无特殊说明,都需要本地电脑安装Office2007。图纸软件为AutoCAD,PROE,UG,SolidWorks,CATIA等;
4、本站所有图文资料仅供用户学习参考,不作为任何商用或其他用途;
5、本站不保证下载资源的准确性、安全性和完整性, 不包修改,不支持退换,同时也不承担用户因使用这些下载资源对自己和他人造成任何形式的伤害或损失;
6、 下载文件中如有侵权或不适当内容,请与我们联系,我们立即纠正。