

作品包括:
Word版说明书一份,65页,约30000字
CAD版本图纸,共6张
目 录
引言-------------------------------------------------------------------------------------------------------------------1
第一章 概述------------------------------------------------------------------------------------------2
1.1液压技术起源-----------------------------------------------------------------------------------------------2
1.2液压传动的优缺点----------------------------------------------------------------------------------------2
1.3液压系统的发展方向--------------------------------------------------------------------4
第二章 液压系统的设计依据和负载特性分析------------------------------------------------5
2.1液压系统的设计依据---------------------------------------------------------------------------------5
2.2液压系统的负载特性分析-------------------------------------------------------------------------------5
第三章 液压系统主要参数的确定------------------------------------------------------------------10
3.1系统工作压力的确定-----------------------------------------------------------------------------------10
3.2执行元件主要参数的确定--------------------------------------------------------------------------10
3.3执行元件流量的确定-----------------------------------------------------------------------------------13
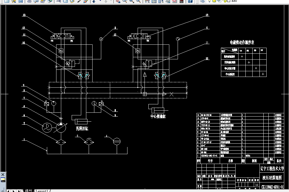
第四章 液压系统的方案选择和原理图的拟定-----------------------------------------------15
4.1基本方案的拟定---------------------------------------------------------------------------------15
第五章 液压元件的基本参数计算和选型-------------------------------------------------------19
5.1液压泵的选择------------------------------------------------------------------------------------------19
5.2液压控制阀的选择-------------------------------------------------------------------------------22
5.3液压附件的参数计算和选择-------------------------------------------------------------------------23
第六章 液压系统性能验算-------------------------------------------------------------------------------26
6.1液压系统压力损失验算-------------------------------------------------------------------------------26
6.2系统效率的估算-------------------------------------------------------------------------------27
6.3系统的发热和温升计算-------------------------------------------------------------------------------29
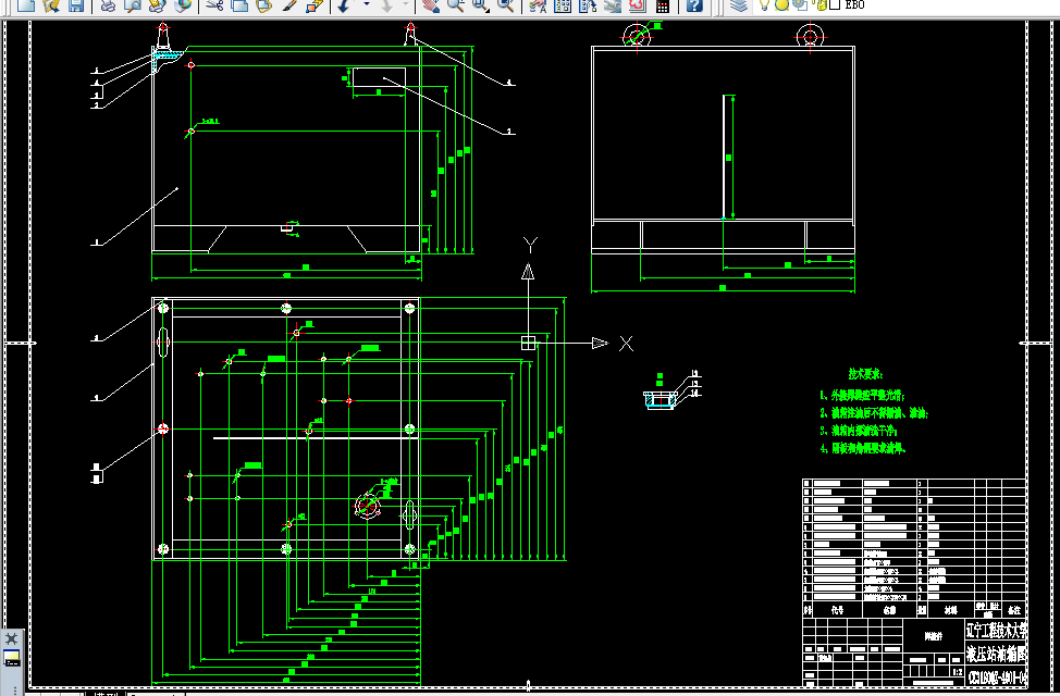
第七章 液压传动系统的结构设计-------------------------------------------------------------------31
7.1液压系统总体布局-------------------------------------------------------------------------------31
7.2集成块的设计-------------------------------------------------------------------------------31
7.3液压阀的结构设计-------------------------------------------------------------------------------32
第八章 液压系统密封装置的选用-------------------------------------------------------------------33
8.1影响密封装置性能的因素----------------------------------------------------------------------------33
8.2密封装置的选用要求-------------------------------------------------------------------------------33
8.3密封装置的使用要素-------------------------------------------------------------------------------33
8.4密封装置的选择-------------------------------------------------------------------------------33
第九章 液压系统工作介质的选择-------------------------------------------------------------------35
9.1工业生产对液压油的使用要求---------------------------------------------------------------------35
9.2液压油的选用-------------------------------------------------------------------------------36
第十章 液压系统的安装、调试与维护-------------------------------------------------------------------37
10.1液压传动系统的安装---------------------------------------------------------------------37
10.2液压系统的清洗与试压---------------------------------------------------------------------39
10.3液压系统的调试---------------------------------------------------------------------40
10.4液压系统的维护---------------------------------------------------------------------41
第十一章 结论-------------------------------------------------------------------------------------------------42
参考文献-------------------------------------------------------------------------------------------------4
温馨提示:
1、题目前面的备注【字母数字编号】为本站整理分类的编号,与课题内容无关,请选题时忽视;
2、若题目上备注三维,则表示文件里包含三维源文件,由于三维组成零件数量较多,为保证预览截图的简洁性,本站将三维文件夹进行了打包。三维及CAD预览截图,均为本站电脑打开软件进行截图的,保证能够打开,下载原件超高清,下载后解压即可;
3、本站所有资源如无特殊说明,都需要本地电脑安装Office2007。图纸软件为AutoCAD,PROE,UG,SolidWorks,CATIA等;
4、本站所有图文资料仅供用户学习参考,不作为任何商用或其他用途;
5、本站不保证下载资源的准确性、安全性和完整性, 不包修改,不支持退换,同时也不承担用户因使用这些下载资源对自己和他人造成任何形式的伤害或损失;
6、 下载文件中如有侵权或不适当内容,请与我们联系,我们立即纠正。