

作品包括:
Word说明书1份,共28页,约14000字
CAD版本图纸,共11张
目 录
1 前言 1
1.1 课题内容 1
1.2 课题来由 1
1.2.1 课题背景 1
1.2.2 课题要求 1
1.3 组合机床国内外发展概述 1
1.4 本课题主要解决的问题和总体设计思路 2
2 组合机床总体设计 3
2.1 总体方案论证 3
2.1.1 工艺方案的拟订 3
2.1.2机床配置形式的选择 3
2.1.3定位基准的选择 4
2.1.4滑台型式的选择 4
2.2确定切削用量及选择刀具 4
2.2.1选择切削用量 4
2.2.2计算切削力、切削扭矩及切削功率 6
2.2.3选择刀具结构 7
2.3组合机床总体设计——三图一卡 7
2.3.1被加工零件工序图 7
2.3.2 加工示意图 7
2.3.3机床尺寸联系总图 10
2.3.4机床生产率计算卡 12
3镗模设计 14
3.1镗模设计的基本要求和步骤 14
3.1.1镗模设计的基本要求 14
3.1.2 镗模的设计步骤 14
3.2定位与导向方案的确定 14
3.2.1零件的工艺性分析 14
3.2.2定位方案的论证 15
3.2.3导向装置 15
3.3夹紧方案的确定 16
3.3.1夹紧装置的确定 16
3.3.2夹紧力的确定 17
3.3.3气缸的选择 18
3.4夹具体的设计 18
3.5 误差分析 18
4 结论 22
参考文献 23
致 谢 24
附 录 25
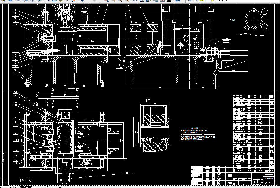
柴油机气缸体三面粗镗组合机床总体及镗模设计
摘 要:组合机床是以系列化、标准化的通用部件为标准,配以少量的专用部件组成的一种高生产率专用机床。它具有自动化程度较高,加工质量稳定,工序高度集中等特点。本次课题是设计一台加工S195型柴油机气缸体水箱面、油底壳面和后盖板面孔系的粗镗组合机床,具体进行总体设计和镗模设计。被加工零件为S195型柴油机气缸体,工件材料为HT200,三个面共加工13个孔,工件一次装夹,三面同时加工。为满足设计要求,进行工艺设计,确定所需的“三图一卡”。机床配置型式为单工位三面卧式组合机床,刀具选用镗刀。根据工艺过程的需要对工件的定位夹紧方式进行分析,设计满足使用的夹具,夹紧方式为液压夹紧。本组合机床,成本低,工作可靠,结构简单,装卸方便,便于维修、调整,加工精度高,操作使用方便,减轻了工人的劳动强度,提高了劳动生产率。
关键词:组合机床;总体设计;夹具设计.
温馨提示:
1、题目前面的备注【字母数字编号】为本站整理分类的编号,与课题内容无关,请选题时忽视;
2、若题目上备注三维,则表示文件里包含三维源文件,由于三维组成零件数量较多,为保证预览截图的简洁性,本站将三维文件夹进行了打包。三维及CAD预览截图,均为本站电脑打开软件进行截图的,保证能够打开,下载原件超高清,下载后解压即可;
3、本站所有资源如无特殊说明,都需要本地电脑安装Office2007。图纸软件为AutoCAD,PROE,UG,SolidWorks,CATIA等;
4、本站所有图文资料仅供用户学习参考,不作为任何商用或其他用途;
5、本站不保证下载资源的准确性、安全性和完整性, 不包修改,不支持退换,同时也不承担用户因使用这些下载资源对自己和他人造成任何形式的伤害或损失;
6、 下载文件中如有侵权或不适当内容,请与我们联系,我们立即纠正。