

作品包括:
word说明书一份,共46页,约22000字
CAD版本图纸,共4张
X6132经济型数控化改造
-------控制部分设计
内容摘要: 利用数控系统改造铣床是提高老设备利用率的一种重要手段。改造后的数控铣床,不仅适合加工椭圆弧面和凸轮曲面,而且大大地减轻了工人的劳动强度。
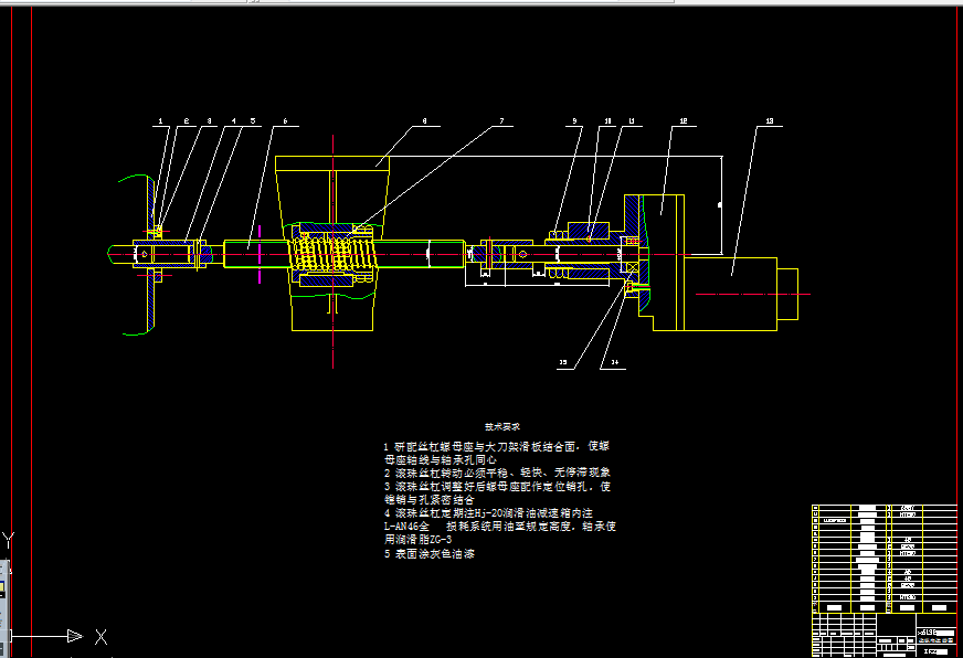
本文介绍了一种用单片机控制伺服电机的X6132万能升降台铣床的工作台的数控改造的半闭环控制系统设计方案。改造后的机床能利用微型计算机来控制直流伺服电机,驱动工作台进行X、Y、Z三个方向的进给运动,从而实现二轴联动,该半闭环控制数控系统由测速发电机来反馈伺服电机的速度,同时由感应同步器来反馈滚珠丝杠的角位移量,具有机床自动进给的功能。该系统可实现直线插补和圆弧插补,数控加工按轮廓编程,能自动适应刀具尺寸的变化。
关键词: 数控改造 X6132 半闭环控制
目 录
前 言 1
正 文 6
1.总体设计方案的设计 7
1.1原来的X6132普通升降台铣床的用途 7
1.2总体设计任务 7
1.3总体设计方案 7
1.4、主传动系统的改造 10
1.4.1电气部分的改造 10
1.4.2机械部分的数控化改造 11
1.5给传动系统的改造 11
1.5.1改造设计要求 11
1.5.2进给传动系统的改造方案 11
1.6.数控系统的硬件与软件设计 12
1.7.改造后的布局及功能 14
2.控制系统的硬件设计 15
2.1单片机的选择 15
2.1.1 CPU的比较和选用 15
2.1.2存储芯片的选择 17
2.1.3 I/O接口芯片 17
2.1.4越界报警和急停电路 18
2.2伺服电机的驱动 19
2.2.1光电耦合电路 20
2.2.2PWM功率放大器电路 21
2.3检测装置 24
2.3.1测速发电机 24
2.3.2感应同步器 25
2.4实现机床自动进给的数控装置 26
2.4.1自动进给数控装置框图 26
2.4.2总电路图 27
2.4.3 单元电路 28
3.软件部分的系统设计 30
3.1数控系统软件功能的实现 30
3.2数控系统的软件设计 33
3.2.1系统初始化 33
3.2.2 工作方式选择 33
3.2.3机床控制 34
3.3数控系统的软件设计举例 34
3.3.1 A/D转换电路的程序设计 34
3.3.2显示器显示程序 36
4.总 结 39
温馨提示:
1、题目前面的备注【字母数字编号】为本站整理分类的编号,与课题内容无关,请选题时忽视;
2、若题目上备注三维,则表示文件里包含三维源文件,由于三维组成零件数量较多,为保证预览截图的简洁性,本站将三维文件夹进行了打包。三维及CAD预览截图,均为本站电脑打开软件进行截图的,保证能够打开,下载原件超高清,下载后解压即可;
3、本站所有资源如无特殊说明,都需要本地电脑安装Office2007。图纸软件为AutoCAD,PROE,UG,SolidWorks,CATIA等;
4、本站所有图文资料仅供用户学习参考,不作为任何商用或其他用途;
5、本站不保证下载资源的准确性、安全性和完整性, 不包修改,不支持退换,同时也不承担用户因使用这些下载资源对自己和他人造成任何形式的伤害或损失;
6、 下载文件中如有侵权或不适当内容,请与我们联系,我们立即纠正。