

作品包括:
说明书1份,共37页,约14000字左右
CAD版本本图纸,共5张
工序卡一套
过程卡一张

摘 要
本文是在箱体的图样分析后进行箱体的机械加工工艺路线的设计,同时按照其中的加工工序的要求设计夹具。
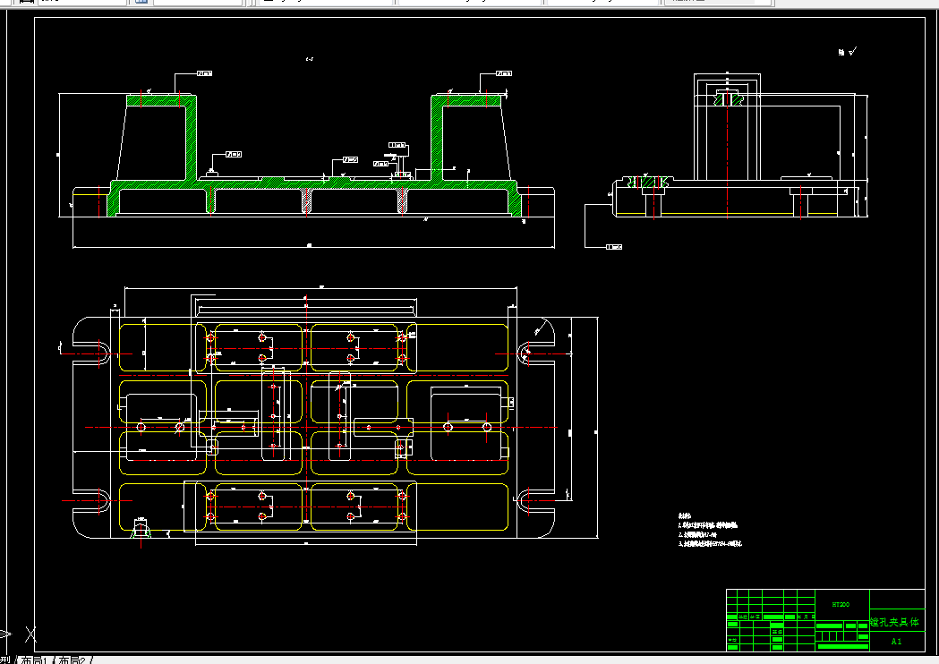
箱体的主要加工内容是表面和孔。其加工路线长,加工时间多,加工成本高,零件的加工精度要求也高。按照机械加工工艺要求,遵循先面后孔的原则,并将孔与平面的加工明确划分成粗加工和精加工阶段以保证加工精度。基准选择以底面作为粗基准,以底面与两个工艺孔作为精基准,确定了其加工的工艺路线和加工中所需要的各种工艺参数。
在零件的夹具设计中,主要是根据零件加工工序要求,分析应限的自由度数,进而根据零件的表面特征选定定位元件,再分析所选定位元件能否限定应限自由度。确定了定位元件后还需要选择夹紧元件,最后就是确定专用夹具的结构形式。
关键词:箱体;加工工艺;工序;专用夹具
目 录
摘 要 II
ABSTRACT III
目 录 1
1 绪论 3
1.1 本课题的研究内容和意义 3
1.2 国内外的发展概况 4
1.3 本课题应达到的要求 5
2 箱体的图样分析 5
2.1 箱体的作用 5
2.2 箱体的图样分析 6
2.3 工艺分析 7
3 工艺规程设计 8
3.1 确定毛坯的制造形式 8
3.2 定位基准的选择 9
3.2.1 粗基准的选择 9
3.2.2 精基准的选择 10
3.3 拟定工艺路线 11
3.3.1 划分加工阶段 11
3.3.2 安排加工顺序 12
3.3.3 拟定加工工艺路线 13
3.4 机械加工余量、工序尺寸及毛坯尺寸的确定 15
3.5 切削用量及工时定额的确定 15
4 箱体镗孔夹具设计 26
4.1 研究原始质料 26
4.2 定位、夹紧方案的选择 26
5.3切削力及夹紧力的计算 27
4.4 误差分析与计算 29
4.5 夹具设计及操作的简要说明 30
5 结论与展望 30
5.1结论 30
5.2不足之处及未来展望 31
致 谢 31
参考文献 32
温馨提示:
1、题目前面的备注【字母数字编号】为本站整理分类的编号,与课题内容无关,请选题时忽视;
2、若题目上备注三维,则表示文件里包含三维源文件,由于三维组成零件数量较多,为保证预览截图的简洁性,本站将三维文件夹进行了打包。三维及CAD预览截图,均为本站电脑打开软件进行截图的,保证能够打开,下载原件超高清,下载后解压即可;
3、本站所有资源如无特殊说明,都需要本地电脑安装Office2007。图纸软件为AutoCAD,PROE,UG,SolidWorks,CATIA等;
4、本站所有图文资料仅供用户学习参考,不作为任何商用或其他用途;
5、本站不保证下载资源的准确性、安全性和完整性, 不包修改,不支持退换,同时也不承担用户因使用这些下载资源对自己和他人造成任何形式的伤害或损失;
6、 下载文件中如有侵权或不适当内容,请与我们联系,我们立即纠正。