欢迎来到龙图网在线图文分享平台-CAD图纸,设计说明书,工业设计3D模型,三维软件下载!   客服QQ:2363701252
热搜:

工艺夹具 模具设计 数控编程 土木工程 3D模型

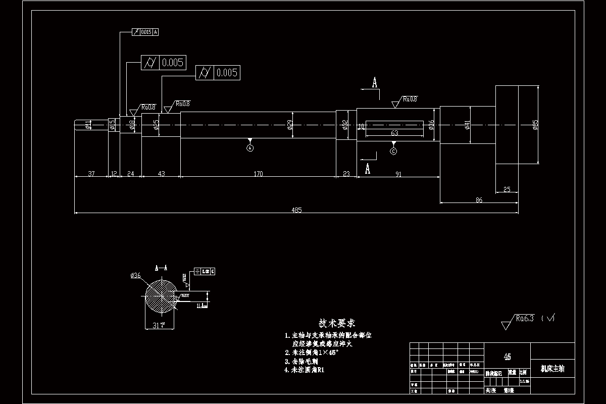
JJ1586-T7220型立式精镗床主传动系统设计及运动仿真[含UG三维图] 下载积分:200 资料编号: JJ1586

1.打开支付宝或者微信扫描二维码。
2.填写金额:200 
3.添加备注,填写资料编号:
资料编号: JJ1586
4.支付成功后,请发资料编号到邮箱:jxsj168@qq.com
会有专人在15分钟内把资料发到您邮箱
备注:如果付款忘记填写资料编号,则发邮件时附带您的交易明细截图即可。
请耐心等待,如超过30分钟还没收到,请联系客服QQ:2363701252
点击分享:

作品描述

作品包括:

Word版说明书1份,共35页,约10000字

开题报告一份

CAD版本图纸,共6张

UG三维图一份

image.png

摘要:此次根据老师给出的T7220型立式精镗床题目来进行设计。此次设计内容是运用专业知识对T7220型立式镗床主传动系统进行设计,并利用三维建模软件实现运动仿真。

主要内容是主传动系统总体设计及其运动仿真。主要有轴类的设计校核及传动件的布置。齿轮的选用以及校核。在完成后,进行三维建模及运动仿真。主轴箱的设计是加工机床的重中之重,直接关系到机床的优劣。其中确定传动方案以及零件设计,包括传动轴,齿轮模数,校核齿轮,主轴零件强度等,都是衡量机床优劣的重要标准。用书本上的知识来结合实际设计,使得学习到的课本的理论知识更加丰富,真正使得知识用起来,活起来。

关键词:立式镗床;三维设计;传动设计;运动仿真

目录

摘要………………………………………………………………………………… Ⅰ

Abstract…………………………………………………………………………… Ⅱ

第一章绪论…………………………………………………………………… 1

1.1立式镗床进展与应用…………………………………………………… 1

1.2二维设计与三维设计的发展前景……………………………………… 2

1.3本次设计要求及参数……………………………………………………… 2

第二章传动系统总体设计………………………………………………………… 3

2.1公比、主轴转速及电机的确定…………………………………………… 3

2.2传动组以及传动副数目的确定…………………………………………… 3

2.3结构网选用方案的确定…………………………………………………… 3

2.4转速图的拟定……………………………………………………………… 4

2.5齿轮齿数的确定…………………………………………………………… 4

2.6各轴和齿轮的计算数据准备……………………………………………… 5

2.7核算主轴转速误差………………………………………………………… 6

第三章机械传动设计…………………………………………………………… 8

3.1带传动设计………………………………………………………………… 8

3.2齿轮传动设计……………………………………………………………… 10

第四章轴系零部件设计………………………………………………………… 16

4.1各轴的尺寸设计及轴承、键的选用……………………………………… 16

4.2轴的校核…………………………………………………………………… 20

第五章三维设计………………………………………………………………… 25

5.1轴的绘制方法……………………………………………………………… 25

5.2齿轮的绘制方法…………………………………………………………… 29

5.3轴与齿轮的装配方法……………………………………………………… 31

结论……………………………………………………………………………… 33

参考文献(References)………………………………………………………… 34

致谢……………………………………………………………………………… 35

温馨提示:

1、题目前面的备注【字母数字编号】为本站整理分类的编号,与课题内容无关,请选题时忽视;

2、若题目上备注三维,则表示文件里包含三维源文件,由于三维组成零件数量较多,为保证预览截图的简洁性,本站将三维文件夹进行了打包。三维及CAD预览截图,均为本站电脑打开软件进行截图的,保证能够打开,下载原件超高清,下载后解压即可;

3、本站所有资源如无特殊说明,都需要本地电脑安装Office2007。图纸软件为AutoCAD,PROE,UG,SolidWorks,CATIA等;

4、本站所有图文资料仅供用户学习参考,不作为任何商用或其他用途;
5、本站不保证下载资源的准确性、安全性和完整性, 不包修改,不支持退换,同时也不承担用户因使用这些下载资源对自己和他人造成任何形式的伤害或损失;

6、 下载文件中如有侵权或不适当内容,请与我们联系,我们立即纠正。


线