欢迎来到龙图网在线图文分享平台-CAD图纸,设计说明书,工业设计3D模型,三维软件下载!   客服QQ:2363701252
热搜:

工艺夹具 模具设计 数控编程 土木工程 3D模型

JJ1641-数控车床无级变速主轴箱设计 下载积分:200 资料编号: JJ1641

1.打开支付宝或者微信扫描二维码。
2.填写金额:200 
3.添加备注,填写资料编号:
资料编号: JJ1641
4.支付成功后,请发资料编号到邮箱:jxsj168@qq.com
会有专人在15分钟内把资料发到您邮箱
备注:如果付款忘记填写资料编号,则发邮件时附带您的交易明细截图即可。
请耐心等待,如超过30分钟还没收到,请联系客服QQ:2363701252
点击分享:

作品描述

作品包括:

Word版说明书1份,共33页,约16000字

任务书一份

中期报告一份

外文翻译一份

CAD版本图纸,共4张

image.png

摘要

目前,数控机床的发展日新月异,高速化、高精度化、复合化、网络化、极端化、绿色化已成为数控机床发展的趋势和方向。中国作为一个制造大国,仍然还是依靠价格、资源等方面的比较优势,而在产品的技术创新与自主开发方面与国外同行的差距还很大。因此,对其进行研究和设计显得尤为重要。

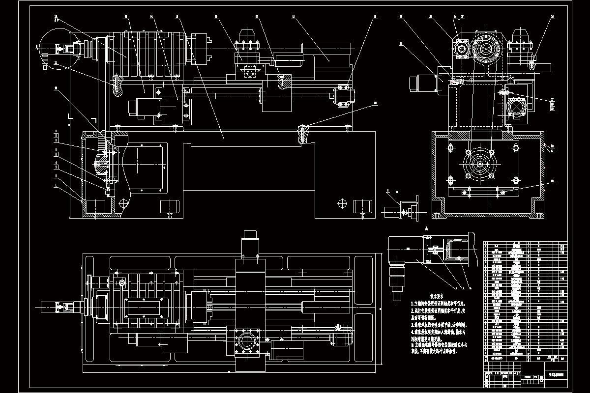
本次设计的题目是数控车床无级变速主轴箱设计。本文阐述了数控机床的发展历史、现状及趋势,并介绍了主轴的工作原理及关键技术。对机床进行总体方案设计,进而确定机床的总体布局,然后,确定了合理的主轴总体结构,分别对主轴的电机、编码器和冷却系统等各零部件进行了设计,对主轴及其主要零部件进行了详细的设计、计算、校核与确定。计算表明,该主轴设计符合要求。主轴在满足刚度、精度等要求下,完成其它(如轴承、轴向调节机构、锁紧机构等)所有零件的设计。绘制了机构总装配图、主要部件图、零件图等,编写了设计说明书。

通过本次设计在巩固、总结大学所学知识的同时,还为今后的学习和工作夯实基矗

关键词:数控车床;无级变速;主轴箱;设计;校核

目录

摘要I

Abstract II

第1章绪论1

1.1数控车床的概述1

1.2国内外研究现状2

1.3数控机床的发展趋势3

1.4本课题研究的目的、意义5

第2章总体方案的设计与确定6

2.1数控车床主轴组件的组成6

2.2机械系统方案的确定6

2.3数控车床主轴组件总体设计方案的确定7

2.4主轴脉冲发生器的安装8

2.5设计参数的确定8

第3章主轴组件的主运动零部件的设计与计算9

3.1主轴电动机的选用9

3.1.1主电机功率估算9

3.1.2主电机选型10

3.2主轴的设计与计算10

3.2.1主轴的结构设计10

3.2.2主轴受力分析11

3.2.3主轴的强度校核13

3.2.4主轴的刚度校核13

3.2.5轴承的配合14

3.2.6主轴轴承设计计算14

3.3同步带的概述及计算16

3.3.1同步带的简介16

3.3.2同步带的特点17

3.3.3同步带传动的主要失效形式17

3.3.4同步带传动的设计准则20

3.3.5同步带分类20

3.3.6同步带的设计计算20

第4章三爪卡盘的设计与计算23

4.1总体框架的设计与确定23

4.2主要参数确定与结构计算24

4.2.1液压腔的结构设计24

4.2.2转子叶片数的设计24

4.2.3摆动角的设计24

4.2.4定子圆柱活塞杠面积的设计24

4.2.5活塞杠的升程25

结论27

致谢28

参考文献29

温馨提示:

1、题目前面的备注【字母数字编号】为本站整理分类的编号,与课题内容无关,请选题时忽视;

2、若题目上备注三维,则表示文件里包含三维源文件,由于三维组成零件数量较多,为保证预览截图的简洁性,本站将三维文件夹进行了打包。三维及CAD预览截图,均为本站电脑打开软件进行截图的,保证能够打开,下载原件超高清,下载后解压即可;

3、本站所有资源如无特殊说明,都需要本地电脑安装Office2007。图纸软件为AutoCAD,PROE,UG,SolidWorks,CATIA等;

4、本站所有图文资料仅供用户学习参考,不作为任何商用或其他用途;
5、本站不保证下载资源的准确性、安全性和完整性, 不包修改,不支持退换,同时也不承担用户因使用这些下载资源对自己和他人造成任何形式的伤害或损失;

6、 下载文件中如有侵权或不适当内容,请与我们联系,我们立即纠正。


线