欢迎来到龙图网在线图文分享平台-CAD图纸,设计说明书,工业设计3D模型,三维软件下载!   客服QQ:2363701252
热搜:

工艺夹具 模具设计 数控编程 土木工程 3D模型

V553-摇臂支架的加工工艺及钻Φ2mm孔夹具设计 下载积分:20 资料编号: V553

1.打开支付宝或者微信扫描二维码。
2.填写金额:20 
3.添加备注,填写资料编号:
资料编号: V553
4.支付成功后,请发资料编号到邮箱:jxsj168@qq.com
会有专人在15分钟内把资料发到您邮箱
备注:如果付款忘记填写资料编号,则发邮件时附带您的交易明细截图即可。
请耐心等待,如超过30分钟还没收到,请联系客服QQ:2363701252
点击分享:

作品描述

作品包括:

word说明书一份,共17页,约5800字

工序卡一张

过程卡一张

CAD版本图纸,共4张

摘 要

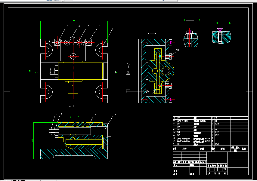
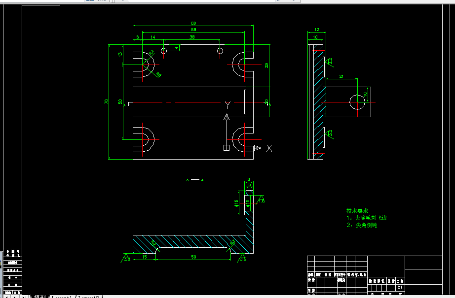
这次设计的是摇臂支架Φ2mm孔的夹具。包括零件图、毛坯图、装配图各一张,机械加工工艺过程卡片和与工序卡片各一张。根据零件的性质和零件图上各端面的粗糙度确定毛坯的尺寸和机械加工余量。最后拟定工艺路线图,制定该工件的夹紧方案,画出夹具装配图。

机械制造工艺学课程设计是我们学完了大学的全部基础课、技术基础课以及大部分专业课之后进行的.这是我们在进行毕业设计之前对所学各课程的一次深入的综合性的总复习,也是一次理论联系实际的训练,因此,它在我们四年的大学生活中占有重要的地位。

就我个人而言,我希望能通过这次课程设计对自己未来将从事的工作进行一次实际的训练,从中锻炼自己分析问题、解决问题的能力。由于能力所限,设计尚有许多不足之处,恳请各位老师给予指导。

目 录

摘 要 I

Abstract II

1 零件的工艺性分析 1

1.1 摇臂支架的技术要求 1

1.2 审查摇臂支架的工艺性 1

1.3 确定摇臂支架的生产类型 2

2 确定毛坯、绘制毛坯简图 2

2.1 选择毛坯 2

2.2 确定毛坯的尺寸公差和机械加工余量 2

3 拟定摇臂支架的工艺路线 3

3.1 定位基准的选择 3

3.2 表面加工方法的确定 4

3.3 加工阶段的划分 5

3.4 工序的集中和分散 5

3.5 工序顺序的安排 5

3.4 机床设备和工艺装备的选用 7

3.5 加工余量,工序尺度和公差的确定 7

3.6 切削用量、时间定额的计算 7

4 专用机床设计夹具 9

4.1 专用钻床夹具设计 9

4.2 问题的指出 9

4.3 确定夹具的结构方案 10

4.4 关于定位误差的分析 10

5 方案综合评价与结论 10

6 体会与展望 10

参考文献 12

温馨提示:

1、题目前面的备注【字母数字编号】为本站整理分类的编号,与课题内容无关,请选题时忽视;

2、若题目上备注三维,则表示文件里包含三维源文件,由于三维组成零件数量较多,为保证预览截图的简洁性,本站将三维文件夹进行了打包。三维及CAD预览截图,均为本站电脑打开软件进行截图的,保证能够打开,下载原件超高清,下载后解压即可;

3、本站所有资源如无特殊说明,都需要本地电脑安装Office2007。图纸软件为AutoCAD,PROE,UG,SolidWorks,CATIA等;

4、本站所有图文资料仅供用户学习参考,不作为任何商用或其他用途;
5、本站不保证下载资源的准确性、安全性和完整性, 不包修改,不支持退换,同时也不承担用户因使用这些下载资源对自己和他人造成任何形式的伤害或损失;

6、 下载文件中如有侵权或不适当内容,请与我们联系,我们立即纠正。


线