欢迎来到龙图网在线图文分享平台-CAD图纸,设计说明书,工业设计3D模型,三维软件下载!   客服QQ:2363701252
热搜:

工艺夹具 模具设计 数控编程 土木工程 3D模型

JJ2388-车床顶尖套加工工艺及钻左端5个孔夹具设计 下载积分:75 资料编号: JJ2388

1.打开支付宝或者微信扫描二维码。
2.填写金额:75 
3.添加备注,填写资料编号:
资料编号: JJ2388
4.支付成功后,请发资料编号到邮箱:jxsj168@qq.com
会有专人在15分钟内把资料发到您邮箱
备注:如果付款忘记填写资料编号,则发邮件时附带您的交易明细截图即可。
请耐心等待,如超过30分钟还没收到,请联系客服QQ:2363701252
点击分享:

作品描述

作品包括:

Word版说明书1份,共28页,约13000字

任务书一份

开题报告一份

工序卡10张

工艺过程卡1张

CAD版本图纸,共7张

image.png

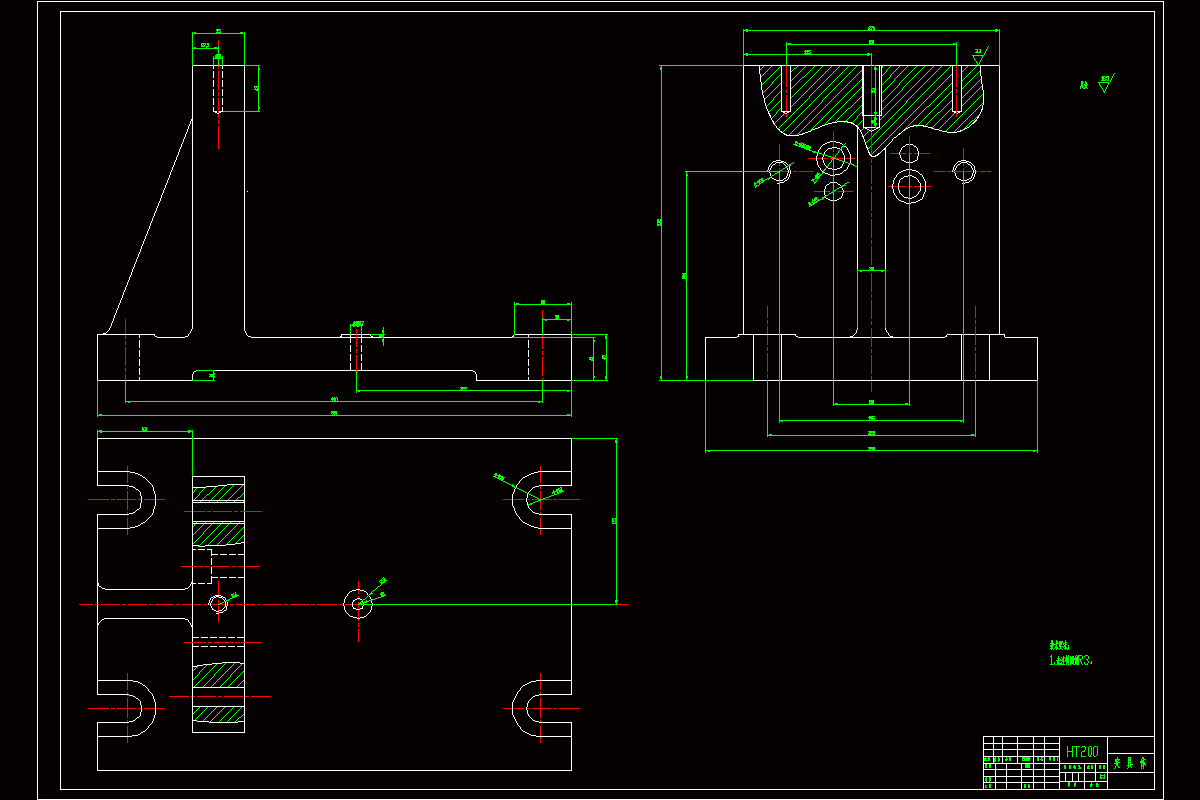
摘要:C620-1B型车床顶尖套及其加工左端5个孔的夹具设计是对顶尖套的零件分析、工艺规程设计、夹具设计和误差分析等部分。

首先是对零件的分析,从功用、结构、工艺进行分析,对顶尖套进行一定的了解,然后选择出合适的毛坯材料,计算出毛坯量及公差。根据实际生产中顶尖套的机械加工过程,选择定位基准包括粗基准和精基准的选择,初步确定加工路线,完成对每一步加工后的余量及切削用量与时间定额的计算,选择合适的加工工艺装备,确定加工工艺。

最后完成对加工左端5个孔的专业夹具的设计,包括夹具结构的设计、夹紧装置的设计等,明确夹具的装配要求。因为在定位误差、夹紧误差和加工过程中力的存在对零件加工的影响,需要对误差进行计算分析,确定夹具的合理。

关键词:夹具;加工工艺;基准;误差

目录

1引言…………………………………………………………………1

1.1研究背景及意义……………………………………………………1

1.2研究内容……………………………………………………………2

2零件分析……………………………………………………………3

2.1功用分析……………………………………………………………3

2.2结构分析……………………………………………………………3

2.3工艺分析……………………………………………………………3

3零件毛坯的选择……………………………………………………3

3.1毛坯材料的选择……………………………………………………3

3.2计算毛坯余量及公差………………………………………………3

3.3绘制毛坯图…………………………………………………………4

4工艺规程设计………………………………………………………4

4.1选择定位基准………………………………………………………4

4.2确定工艺路线………………………………………………………5

4.3确定加工设备及工艺装备…………………………………………6

4.4加工余量、工序尺寸及公差的计算………………………………7

4.5切削用量的计算……………………………………………………8

4.6时间定额的计算……………………………………………………8

4.7确定工序及工艺……………………………………………………16

5夹具设计……………………………………………………………17

5.1夹具设计概述………………………………………………………17

5.2夹具结构设计………………………………………………………18

5.3夹紧装置的设计……………………………………………………19

5.4夹具的装配要求及使用注意事项…………………………………21

注释……………………………………………………………………22

参考文献………………………………………………………………24

附录……………………………………………………………………25

温馨提示:

1、题目前面的备注【字母数字编号】为本站整理分类的编号,与课题内容无关,请选题时忽视;

2、若题目上备注三维,则表示文件里包含三维源文件,由于三维组成零件数量较多,为保证预览截图的简洁性,本站将三维文件夹进行了打包。三维及CAD预览截图,均为本站电脑打开软件进行截图的,保证能够打开,下载原件超高清,下载后解压即可;

3、本站所有资源如无特殊说明,都需要本地电脑安装Office2007。图纸软件为AutoCAD,PROE,UG,SolidWorks,CATIA等;

4、本站所有图文资料仅供用户学习参考,不作为任何商用或其他用途;
5、本站不保证下载资源的准确性、安全性和完整性, 不包修改,不支持退换,同时也不承担用户因使用这些下载资源对自己和他人造成任何形式的伤害或损失;

6、 下载文件中如有侵权或不适当内容,请与我们联系,我们立即纠正。


线