欢迎来到龙图网在线图文分享平台-CAD图纸,设计说明书,工业设计3D模型,三维软件下载!   客服QQ:2363701252
热搜:

工艺夹具 模具设计 数控编程 土木工程 3D模型

JJ2400-C620-1型车床Ⅰ轴加工工艺及钻φ23孔夹具设计[含三维图] 下载积分:200 资料编号: JJ2400

1.打开支付宝或者微信扫描二维码。
2.填写金额:200 
3.添加备注,填写资料编号:
资料编号: JJ2400
4.支付成功后,请发资料编号到邮箱:jxsj168@qq.com
会有专人在15分钟内把资料发到您邮箱
备注:如果付款忘记填写资料编号,则发邮件时附带您的交易明细截图即可。
请耐心等待,如超过30分钟还没收到,请联系客服QQ:2363701252
点击分享:

作品描述

作品包括:

Word版说明书1份,共61页,约22000字

任务书一份

工序卡12张

工艺过程卡1张

CAD版本图纸,共6张

SW三维图一套

UG三维图1套

image.png

image.png

摘要

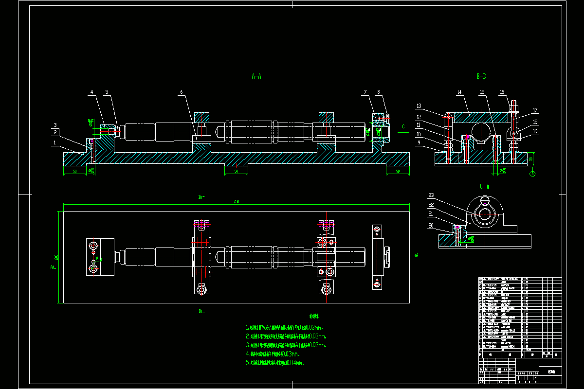
制定车床I轴的加工工艺,设计钻Φ23孔的钻床夹具,运用机械制造工艺学课程中的基本理论以及在生产实习中学到的实践知识,正确地解决一个零件在加工中的定位,夹紧以及工艺路线安排,工艺尺寸确定等问题,保证零件的加工质量。提高结构设计能力。通过设计夹具的训练,获得根据被加工零件的加工要求,设计出高效,省力,经济合理而能保证加工质量的夹具的能力。学会使用手册以及图表资料。掌握与本设计有关的各种资料的名称,出处,能够做到熟练的运用。设计是我们对我所学知识的深入综合性的总结,也是一次理论联系实际的训练,因此,它在我们的大学生活中占有重要的地位。另外在做完这次设计之后,我得到一次综合性训练,我在想我能在多个方面得到锻炼。就我个人而言,我希望通过这次设计对自己未来将从事的工作进行一次适应性训练,从中锻炼自己发现问题、分析问题和解决问题的能力,为今后参加祖国建设打一个良好的基矗

关键词:车床I轴;加工工艺;钻床夹具;定位

目录

1引言1

1.1研究背景及意义1

1.2研究内容1

2零件分析3

2.1功用分析3

2.2结构分析3

2.3工艺分析3

4工艺规程设计6

4.1选择定位基准6

4.2确定工艺路线7

4.3确定加工设备及工艺装备8

4.4加工余量、工序尺寸及公差的计算9

4.5切削用量的计算9

4.6时间定额的计算38

4.7确定工序及工艺51

5夹具设计52

5.1夹具设计概述52

5.1.1加工设备的选择52

5.1.2零件加工位置52

5.2夹具结构设计52

5.2.1六点定位分析52

5.2.2定位方案的选择52

5.2.3定位元件的选择52

5.2.4定位误差的计算52

5.3夹紧装置的设计54

5.3.1夹紧方案的设计54

5.3.2夹紧力的计算54

5.3.3夹紧方案的确定54

5.4夹具的装配要求及使用注意事项54

总结56

致谢57

参考文献58

温馨提示:

1、题目前面的备注【字母数字编号】为本站整理分类的编号,与课题内容无关,请选题时忽视;

2、若题目上备注三维,则表示文件里包含三维源文件,由于三维组成零件数量较多,为保证预览截图的简洁性,本站将三维文件夹进行了打包。三维及CAD预览截图,均为本站电脑打开软件进行截图的,保证能够打开,下载原件超高清,下载后解压即可;

3、本站所有资源如无特殊说明,都需要本地电脑安装Office2007。图纸软件为AutoCAD,PROE,UG,SolidWorks,CATIA等;

4、本站所有图文资料仅供用户学习参考,不作为任何商用或其他用途;
5、本站不保证下载资源的准确性、安全性和完整性, 不包修改,不支持退换,同时也不承担用户因使用这些下载资源对自己和他人造成任何形式的伤害或损失;

6、 下载文件中如有侵权或不适当内容,请与我们联系,我们立即纠正。


线