

作品包括:
Word版说明书1份,共45页,约15000字
任务书一份
开题报告一份
外文翻译一份
综合工艺卡一套
工艺过程卡1张
CAD版本图纸,共5张
UG三维图一张
数控程序一套
数控仿真加工一份

摘要
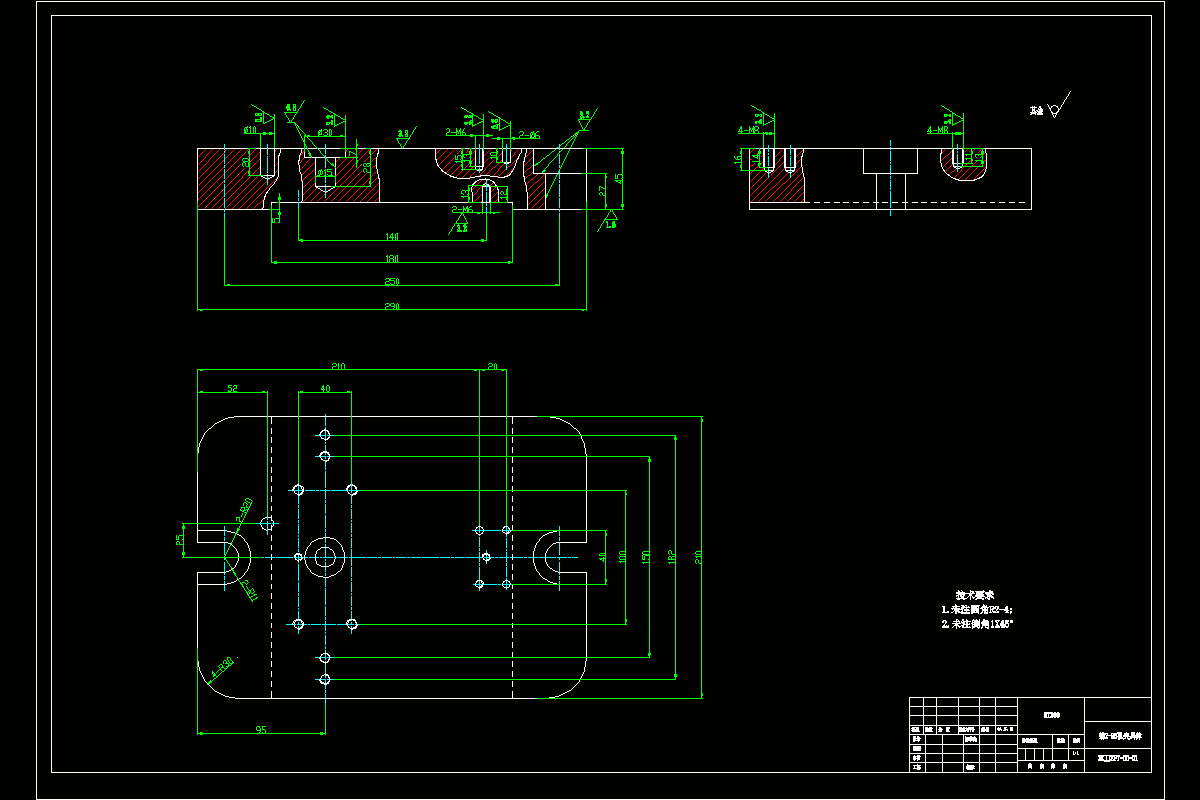
专用夹具在现在的机械加工过程中发挥着重要的作用,实现了加工件的定位和夹紧。本次设计研究的对象是弯管机底板支座。主要研究的内容包括弯管机底板支座的加工工艺设计及专用夹具的设计。其中专用夹具设计了钻2-Φ6孔钻床专用夹具。
弯管机主要的作用是对管材进行相应的弯曲,底板支座为弯管机上主要零部件的定位和工作提供支撑。在对加工工艺设计之前,首先完成了零件作用及零件图的分析,确定了零件的生产类型,制造方式及加工余量,绘制毛坯图。设计加工工艺路线,计算工序卡中涉及到的切削用量等。最后,完善了工艺卡及工序卡。
本次加工的零件设计的内容为:确定零件的定位方案(满足6点定位原理);选择夹紧装置还有夹紧元件;对夹具体进行了设计和确定;为保证零件的加工精度,设计了对刀装置(钻套);对零件在装夹过程中的夹紧力和切削力进行计算等等。最后,完成专用夹具的夹具装配图还有非标准零件图。
关键词:弯管机底板支座;加工工艺;钻2-Φ6孔;夹具设计
目录
摘要I
Abstract II
第1章绪论1
1.1本课题研究的目的及意义1
1.2机床夹具的研究现状1
1.3现代机床夹具的发展方向2
第2章零件的机械加工工艺规程设计3
2.1零件的工艺分析及生产类型的确定3
2.1.1零件的作用3
2.1.2零件材料的分析4
2.1.3零件表面结构的分析4
2.1.4零件加工要求的分析4
2.1.5零件形位公差的分析4
2.1.6零件生产类型的确定5
2.2零件工艺规程设计5
2.2.1零件制造形式的确定5
2.2.2基准的选择6
2.3选择、比较和确定加工工艺路线6
2.3.1选择加工工艺路线7
2.3.2比较加工工艺路线8
2.3.3确定加工工艺路线8
2.4加工设备、夹具、刀具及量具的确定8
2.5机械加工余量的确定9
2.6确定切削用量及基本工时11
第3章钻床专用夹具的设计24
3.1确定定位方案,选择定位元件24
3.2确定夹紧方案,选择夹紧元件25
3.3夹具体的设计25
3.4对刀装置的选择25
3.5钻削力及夹紧力计算25
3.6定位误差分析26
第4章加工程序编制及仿真加工27
4.1数控编程的分类27
4.2数控编程27
4.2.1创建几何体28
4.2.2创建刀具30
4.2.3面铣削加工操作30
4.2.4型腔铣加工设置33
4.3仿真加工及后处理35
结论41
致谢42
参考文献43
温馨提示:
1、题目前面的备注【字母数字编号】为本站整理分类的编号,与课题内容无关,请选题时忽视;
2、若题目上备注三维,则表示文件里包含三维源文件,由于三维组成零件数量较多,为保证预览截图的简洁性,本站将三维文件夹进行了打包。三维及CAD预览截图,均为本站电脑打开软件进行截图的,保证能够打开,下载原件超高清,下载后解压即可;
3、本站所有资源如无特殊说明,都需要本地电脑安装Office2007。图纸软件为AutoCAD,PROE,UG,SolidWorks,CATIA等;
4、本站所有图文资料仅供用户学习参考,不作为任何商用或其他用途;
5、本站不保证下载资源的准确性、安全性和完整性, 不包修改,不支持退换,同时也不承担用户因使用这些下载资源对自己和他人造成任何形式的伤害或损失;
6、 下载文件中如有侵权或不适当内容,请与我们联系,我们立即纠正。