欢迎来到龙图网在线图文分享平台-CAD图纸,设计说明书,工业设计3D模型,三维软件下载!   客服QQ:2363701252
热搜:

工艺夹具 模具设计 数控编程 土木工程 3D模型

K1116-后钢板弹簧吊耳[831010]加工工艺及钻φ10.5孔夹具设计 下载积分:150 资料编号: K1116

1.打开支付宝或者微信扫描二维码。
2.填写金额:150 
3.添加备注,填写资料编号:
资料编号: K1116
4.支付成功后,请发资料编号到邮箱:jxsj168@qq.com
会有专人在15分钟内把资料发到您邮箱
备注:如果付款忘记填写资料编号,则发邮件时附带您的交易明细截图即可。
请耐心等待,如超过30分钟还没收到,请联系客服QQ:2363701252
点击分享:

作品描述

作品包括:

Word版说明书1份,共27页,约10000字

工序卡7张

工艺过程卡1张

CAD版本图纸,共10张

image.png

摘要

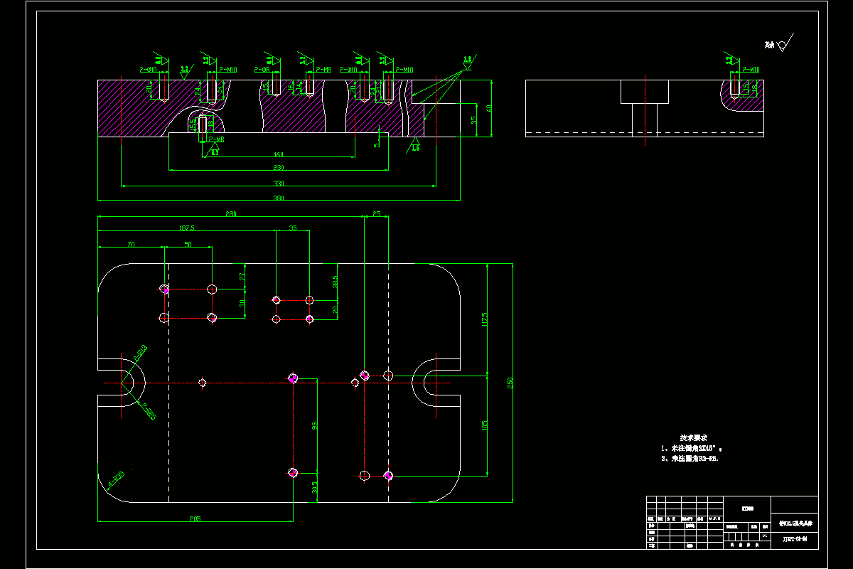
专用夹具在现在的机械加工过程中发挥着重要的作用,实现了加工件的定位和夹紧。本次设计研究的对象是CA10B解放牌汽车后钢板弹簧吊耳。主要研究的内容包括零件的加工工艺设计及钻Φ10.5孔钻床夹具夹具的设计.

CA10B解放牌汽车是典型的汽车之一,后钢板弹簧吊耳为弹簧及主要零部件的定位和工作提供支撑,为汽车的正常工作护航。在对加工工艺设计之前,首先完成了零件作用及零件图的分析,确定了零件的生产类型,制造方式及加工余量,绘制毛坯图。设计加工工艺路线,计算工序卡中涉及到的切削用量等。最后,完善了工艺卡及工序卡。

本次加工的零件设计的内容为:确定零件的定位方案(满足6点定位原理);选择夹紧装置还有夹紧元件;对夹具体进行了设计和确定;为保证零件的加工精度,设计了对刀装置(钻套);对零件在装夹过程中的夹紧力和切削力进行计算等等。最后,完成专用夹具的夹具装配图还有所有非标准的零件图。

关键词:CA10B解放牌汽车;后钢板弹簧吊耳;加工工艺;钻Φ10.5孔

目录

摘要I

Abstract II

第1章绪论1

1.1本课题研究的目的及意义1

1.2现代机床夹具的发展方向1

第2章零件的机械加工工艺规程设计3

2.1零件的工艺分析及生产类型的确定3

2.1.1零件的作用3

2.1.2零件的工艺分析3

2.1.3零件生产类型的确定4

2.2零件工艺规程设计5

2.2.1零件制造形式的确定5

2.2.2基准的选择5

2.3选择、比较和确定加工工艺路线5

2.3.1选择加工工艺路线6

2.3.2比较加工工艺路线7

2.3.3确定加工工艺路线7

2.4机床夹具的研究现状7

2.5加工设备、夹具、刀具及量具的确定8

2.6机械加工余量的确定8

2.7确定切削用量及基本工时10

第3章钻Ф10.5孔专用夹具的设计19

3.1确定定位方案,选择定位元件19

3.2确定夹紧方案,选择夹紧元件19

3.3夹具体的设计20

3.4对刀装置的选择20

3.5钻削力及夹紧力计算20

3.6定位误差分析21

结论22

致谢23

参考文献24

温馨提示:

1、题目前面的备注【字母数字编号】为本站整理分类的编号,与课题内容无关,请选题时忽视;

2、若题目上备注三维,则表示文件里包含三维源文件,由于三维组成零件数量较多,为保证预览截图的简洁性,本站将三维文件夹进行了打包。三维及CAD预览截图,均为本站电脑打开软件进行截图的,保证能够打开,下载原件超高清,下载后解压即可;

3、本站所有资源如无特殊说明,都需要本地电脑安装Office2007。图纸软件为AutoCAD,PROE,UG,SolidWorks,CATIA等;

4、本站所有图文资料仅供用户学习参考,不作为任何商用或其他用途;
5、本站不保证下载资源的准确性、安全性和完整性, 不包修改,不支持退换,同时也不承担用户因使用这些下载资源对自己和他人造成任何形式的伤害或损失;

6、 下载文件中如有侵权或不适当内容,请与我们联系,我们立即纠正。


线