

作品包括:
Word版说明书1份,共117页,约48000字
任务书一份
开题报告一份
外文翻译一份
PPT答辩一份
CAD版本图纸,共5张

摘 要
本次设计的题目是《年产1000万片阿昔洛韦片剂的工艺与车间设计》。阿昔洛韦是无环脱氧鸟嘌呤核苷的同型物,是一种病毒抑制剂,能选择性抑制病毒的DNA聚合酶,对宿主的细胞毒性甚低。主要用于单纯疱疹病毒感染、带状疱疹、水痘等。
本设计主要根据其原料药的制备工艺及其物料化学性质,选择合适的辅料、设备及成型工艺,通过对阿昔洛韦片剂生产工艺的研究,本文采用湿法制粒,制备片剂的主要单元操作是粉碎、过筛、称量、混合、制粒、干燥及压片、包衣和包装等。根据每个单元的物料损失进行物料衡算,得到每个单元操作过后的物料总量,再根据每个单元的不同物料总量进行主要设备选型。对干燥过程进行能量衡算,得到进出干燥器的热量变化,以及干空气与水蒸气的用量等。
设计出合理的车间工艺,进而探讨出适合规范阿昔洛韦片剂的生产,保证药品质量,严格按照GMP的要求进行生产的车间工艺设计。主体部分是“三算”(既指物料衡算,热量衡算,主要的设备选型与计算)和非标设备的选型与计算。
关键词:阿昔洛韦片剂;车间工艺;设计
目 录
摘 要 I
Abstract II
第1章 绪论 1
1.1设计背景 1
1.2设计目的 1
1.3设计内容 1
第2章 阿昔洛韦片剂生产工艺及计算 3
2.1 阿昔洛韦片的处方 3
2.2生产工艺流程 3
2.3 生产工艺流程图 5
2.4 物料衡算 7
2.4.1 物料衡算清单 7
2.4.2工艺工程的物料衡算 7
2.4.3根据处方和损耗率对各过程进行物料衡算 8
2.4.4 包装材料衡算 9
2.5 热量衡算 9
2.5.1干燥过程各物料流程及参数 10
2.5.2进入干燥器进行干燥的物料 10
2.5.3固体原料比热的计算与查取 11
2.5.4物料中的含水量用湿基含水量表示 12
2.5.5热力学数据的计算 12
2.5.6对干燥器进行热量衡算 13
2.6 车间的生产安全 14
2.7 个人防护 14
2.8环境卫生 14
第3章 设备的选型与车间布置 16
3.1设备选型 16
3.1.1称量设备 16
3.1.2 粉碎机 16
3.1.3 筛分机 17
3.1.4 混合机 17
3.1.5 制粒机 18
3.1.6 整粒机 18
3.1.7 总混机 19
3.1.8 压片机 19
3.1.9高效包衣机 21
3.1.10 铝塑包装机 21
3.1.11 热收缩机 22
3.1.12 喷码机 22
3.1.13 打包机 23
3.2 车间布置设计 24
3.2.1 车间布置的依据 24
3.2.2车间布置的内容 25
3.3.3 生产设备布局设计 25
3.3.4片剂车间排热、排湿及臭味的处理 25
3.2.5参观走廊 25
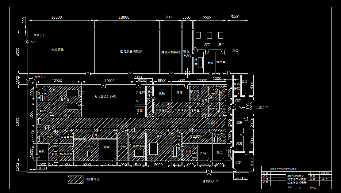
3.3洁净区的划分 25
3.3.1 GMP对厂房洁净等级的要求 26
3.3.2片剂生产洁净区域划分 26
3.4 工序操作要点及工时 27
3.5 劳动组织和岗位定员 27
3.6总结 28
第4章 绪 论 30
4.1 国内外研究现状及研究背景 30
4.1.1 夏天无概述 30
4.1.2 夏天无胶囊 30
4.2 目的及意义 30
第5章 夏天无胶囊的生产工艺 32
5.1 夏天无胶囊的生产处方 32
5.2 渗漉法提取夏天无 32
5.3 夏天无胶囊的生产工艺流程图 33
5.4 夏天无胶囊的生产工艺说明 34
5.4.1 夏天无的前处理 34
5.4.2 夏天无的粉碎 34
5.4.3 夏天无的提取工艺 34
5.4.4 称量配料 34
5.4.5 粉碎 34
5.4.6 过筛 34
5.4.7 制粒 35
5.4.8 干燥 35
5.4.9 整粒 35
5.4.10 胶囊的填充 35
5.4.11 胶囊剂的包装 36
5.5 制药用水系统 36
第6章 工艺计算 37
6.1 生产任务 37
6.2 物料衡算 37
6.2.1 物料衡算清单 37
6.2.2 根据处方和损耗率对各过程进行物料衡算 38
6.2.3 包装材料衡算 39
6.3 热量衡算 40
6.3.1 浓缩过程的热量衡算 40
6.3.2 干燥过程的热量衡算 44
6.4 概述 47
6.4.4 滚筒式洗药机自来水管径 48
6.4.5 沸腾干燥制粒机压缩气管径 48
第7章 设备选型 50
7.1 生产设备满足工艺要求的程度 50
7.2 设备的选型说明 50
7.3 药材前处理及提取车间 50
7.3.1 洗药设备 51
7.3.2 切药设备 51
7.3.3 中药切片干燥设备 51
7.3.4 粉碎设备 52
7.3.5 提取设备 52
7.3.6 浓缩设备 53
7.4 胶囊剂车间 53
7.4.1 粉碎设备 53
7.4.2 筛分设备 53
7.4.3 制粒设备 54
7.4.4 整粒设备 55
7.4.5 混合设备 55
7.4.6 胶囊填充设备 55
7.4.7 抛光设备 56
7.4.8 铝塑包装设备 56
7.4.9 装盒设备 57
第8章 车间布置设计 59
8.1 车间布置 59
8.1.1 布置设计依据 59
8.1.2 洁净车间的平面布置 59
8.1.3 具体布置 60
8.2 管道布置 60
8.3 设备布置 61
第9章 相关制度的规定 62
9.1 工艺定岗定员 62
9.2操作规程 63
9.2.1生产前检查 63
9.2.2生产过程监控 63
9.2.3车间QC生产过程监控 66
9.3 质量检查 66
9.4 三废处理 67
9.4.1概述 67
9.4.2废水的处理 67
9.4.3废气的处理 67
9.4.4废渣的处理 68
9.5 总结 68
第10章 68
10.1 70
第11章 绪论 70
生产现状 71
第12章 工艺流程设计 74
各工段的批操作时间 76
批产量 77
第13章 物料衡算 77
13.1 醚化反应工段物料衡算 77
13.2胺化反应工段物料衡算 78
13.3酸化反应工段物料衡算 79
13.4结晶分离工段物料衡算 80
13.5 粗品精制工段物料衡算 80
13.6 溶剂回收工段物料衡算 81
13.6.2设备的热量平衡方程式 82
13.6.3热量衡算基础数据的计算和查取 83
13.6.4结晶釜的热量衡算 85
13.6.5胺化反应器的能量衡算 87
13.6.6精制蒸馏塔的热量衡算 89
13.6.7溶剂精馏塔的能量衡算 90
生产工艺简述 92
绘图说明 92
第14章 设备选型 92
14.3胺化反应工段的设备选型 95
14.3 结晶分离工段的设备选型 96
14.4粗品精制工段的设备选型 97
14.5 溶剂回收工段的设备选型 98
第15章 劳动保障与安全生产 102
经济效益衡算 104
综合效益收入估算 105
15.4 设计总结 105
第16章 107
16.1 107
温馨提示:
1、题目前面的备注【字母数字编号】为本站整理分类的编号,与课题内容无关,请选题时忽视;
2、若题目上备注三维,则表示文件里包含三维源文件,由于三维组成零件数量较多,为保证预览截图的简洁性,本站将三维文件夹进行了打包。三维及CAD预览截图,均为本站电脑打开软件进行截图的,保证能够打开,下载原件超高清,下载后解压即可;
3、本站所有资源如无特殊说明,都需要本地电脑安装Office2007。图纸软件为AutoCAD,PROE,UG,SolidWorks,CATIA等;
4、本站所有图文资料仅供用户学习参考,不作为任何商用或其他用途;
5、本站不保证下载资源的准确性、安全性和完整性, 不包修改,不支持退换,同时也不承担用户因使用这些下载资源对自己和他人造成任何形式的伤害或损失;
6、 下载文件中如有侵权或不适当内容,请与我们联系,我们立即纠正。