

作品包括:
Word版说明书1份,共48页,约21000字
任务书一份
开题报告一份
CAD版本图纸,共11张

摘 要
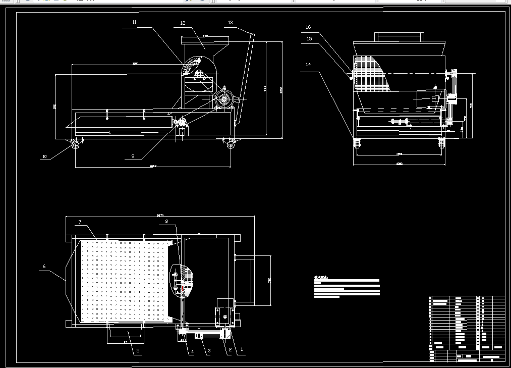
油葵具有较高的营养价值,是新疆的特色经济作物之一。油葵完成收割以后需对油葵进行脱粒取籽,以便于后期的加工和使用。随着油葵种植面积的增大,油葵生产过程的机械化需求也越来越高,人工脱粒劳动强度大且效率低,大型联合收获脱粒一体机械效率高但价格昂贵,一般种植面积的农户负担不起,且大型联合收获脱粒机械易受地块影响,比较适用于大面积种植,因此,本文设计了一种家用小型油葵脱粒装置,简单易操作,使用家用电源即可完成脱粒工作。
油葵脱粒装置在电机的驱动下,通过带传动带动脱粒部件工作,实现油葵脱粒分离,脱粒后的葵花籽落至筛板进行筛选,去除多余杂质,从而获得较干净的葵花籽。本文在查阅文献的基础上,确定油葵脱粒装置的工作原理和整机结构,进行了传动系统、脱粒装置和筛选装置等关键部件的计算校核和结构设计,并利用CAD完成了二维图纸的绘制。
关键字: 油葵;脱粒;筛板
目 录
摘 要 I
目 录 II
1 绪论 1
1.1 课题的研究背景 1
1.2 油葵脱粒装置的研究现状 2
1.2.1 国内研究现状 2
1.2.2 国外研究现状 3
1.3 研究目标及研究内容 4
2 油葵脱粒装置的总体设计 5
2.1 技术要求 5
2.2 整机结构 5
2.3 工作原理 6
3 油葵脱粒装置传动系统的设计 7
3.1 电机的选择 7
3.2 带传动的设计 10
3.2.1 脱粒轴带传动的设计 10
3.2.2 筛板轴带传动的设计 14
4 油葵脱粒装置关键部件的设计 19
4.1 脱粒部件的设计 19
4.1.1 脱粒齿的设计 20
4.1.2 脱粒轴的设计 20
4.1.3 脱粒轴上的键和轴承的选择及校核 25
4.2 筛板部件的设计 27
4.2.1 筛板的结构设计 27
4.2.2 筛板轴的设计 29
4.2.3 筛板抖动部件的设计 33
5 油葵脱粒装置其他部件的设计 35
5.1 进料口的设计 35
5.2 出料口的设计 36
5.2.1 油葵出料口的设计 36
5.2.2 残渣出料口的设计 37
5.3 机架的设计 38
结 论 40
致 谢 41
参考文献 42
温馨提示:
1、题目前面的备注【字母数字编号】为本站整理分类的编号,与课题内容无关,请选题时忽视;
2、若题目上备注三维,则表示文件里包含三维源文件,由于三维组成零件数量较多,为保证预览截图的简洁性,本站将三维文件夹进行了打包。三维及CAD预览截图,均为本站电脑打开软件进行截图的,保证能够打开,下载原件超高清,下载后解压即可;
3、本站所有资源如无特殊说明,都需要本地电脑安装Office2007。图纸软件为AutoCAD,PROE,UG,SolidWorks,CATIA等;
4、本站所有图文资料仅供用户学习参考,不作为任何商用或其他用途;
5、本站不保证下载资源的准确性、安全性和完整性, 不包修改,不支持退换,同时也不承担用户因使用这些下载资源对自己和他人造成任何形式的伤害或损失;
6、 下载文件中如有侵权或不适当内容,请与我们联系,我们立即纠正。