

作品包括:
Word版说明书1份,共30页,约13000字
CAD版本图纸,共4张

目 录
摘 要 I
绪 论 1
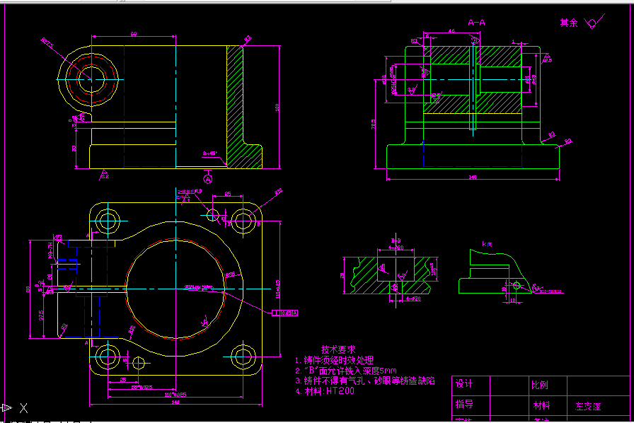
第1章 车床左支座零件的分析及毛坯的确定 2
1.1 车床左支座的作用和工艺分析 2
1.1.1 零件的作用 2
1.1.2 零件的工艺分析 3
1.2 零件毛坯的确定 3
1.2.1 毛坯材料的制造形式及热处理 3
1.2.2 毛坯结构的确定 4
第2章 车床左支座的加工工艺设计 6
2.1 工艺过程设计中应考虑的主要问题 6
2.1.1 加工方法选择的原则 6
2.1.2 加工阶段的划分 6
2.1.3 加工顺序的安排 7
2.1.4 工序的合理组合 8
2.2 基准的选择 8
2.2.1 粗基准和精基准的具体选择原则 8
2.2.2 选择本题零件的基准 9
2.3 机床左支座的工艺路线分析与制定 10
2.3.1 工序顺序的安排的原则 10
2.3.2 工艺路线分析及制定 10
2.4 机械加工余量 13
2.4.1 影响加工余量的因素 13
2.4.2 机械加工余量、工序尺寸以及毛坯余量的确定 13
2.5 确定切削用量及基本工时 16
2.5.1 工序一 粗铣Ø80H9( )mm孔大端端面 16
2.5.2 工序二 粗镗Ø80H9内孔 19
2.5.3 工序三 精铣Ø80H9大端端面 20
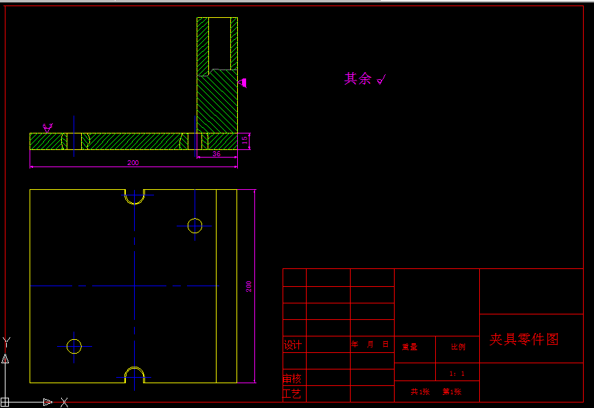
第3章 专用夹具设计 23
3.1 定位基准及定位元件的选择 23
3.2 切削力及夹紧力的计算 23
3.3 定位误差分析与计算 24
致 谢 26
参考文献 27
附 录 28
温馨提示:
1、题目前面的备注【字母数字编号】为本站整理分类的编号,与课题内容无关,请选题时忽视;
2、若题目上备注三维,则表示文件里包含三维源文件,由于三维组成零件数量较多,为保证预览截图的简洁性,本站将三维文件夹进行了打包。三维及CAD预览截图,均为本站电脑打开软件进行截图的,保证能够打开,下载原件超高清,下载后解压即可;
3、本站所有资源如无特殊说明,都需要本地电脑安装Office2007。图纸软件为AutoCAD,PROE,UG,SolidWorks,CATIA等;
4、本站所有图文资料仅供用户学习参考,不作为任何商用或其他用途;
5、本站不保证下载资源的准确性、安全性和完整性, 不包修改,不支持退换,同时也不承担用户因使用这些下载资源对自己和他人造成任何形式的伤害或损失;
6、 下载文件中如有侵权或不适当内容,请与我们联系,我们立即纠正。