欢迎来到龙图网在线图文分享平台-CAD图纸,设计说明书,工业设计3D模型,三维软件下载!   客服QQ:2363701252
热搜:

工艺夹具 模具设计 数控编程 土木工程 3D模型

JJ3503-基于PLC的锅炉供暖自动控制系统的设计 下载积分:60 资料编号: JJ3503

1.打开支付宝或者微信扫描二维码。
2.填写金额:60 
3.添加备注,填写资料编号:
资料编号: JJ3503
4.支付成功后,请发资料编号到邮箱:jxsj168@qq.com
会有专人在15分钟内把资料发到您邮箱
备注:如果付款忘记填写资料编号,则发邮件时附带您的交易明细截图即可。
请耐心等待,如超过30分钟还没收到,请联系客服QQ:2363701252
点击分享:

作品描述

作品包括:

Word版说明书1份,共45页,约19000字

开题报告一份

外文翻译一份

CAD版本图纸,共4张

image.png

摘要

锅炉是我国北方大部分城市集中供热和建筑采暖的主要设备。为了充分发挥能源效能、减轻工人劳动强度、提高锅炉供暖管理水平,设计一套安全、可靠、有效的系统来实现锅炉供暖系统势在必行。

本文以两台燃煤供暖锅炉及其相关辅助控制设备为研究对象,设计了一套基于PLC和变频调速技术的供暖锅炉控制系统。该控制系统由可编程控制器、变频器、电机、传感器等构成。采用FX系列PLC为核心控制器,结合PID控制技术、变频调速技术,利用传感器对锅炉系统的温度、压力、流量、氧量、转速等量进行模拟量采集,并对电机运行进行控制和检测,从而实现了对两台供暖锅炉的监控。

本文设计的PLC和变频调速控制系统实现了锅炉燃烧、补水、循环过程的自动控制,PLC和变频调速技术锅炉控制中的应用,使锅炉供暖系统带来的节能效果。有效地降低了能耗,提高了生产管理水平。

关键词:锅炉供暖;PLC;变频调速

目录

引言6

1绪论7

1.1锅炉与供暖概述7

1.2可编程控制器简介7

1.3 PLC的优点8

1.4供暖锅炉控制的国内外研究现状9

1.5本文所做工作10

2变频调速在供暖锅炉控制中的应用11

2.1锅炉供暖系统的组成11

2.2锅炉辅助设备11

2.3锅炉供暖过程11

2.4变频调速在供暖锅炉系统中的应用12

2.5变频调速技术的基本原理13

2.6变频调速技术的优点15

3锅炉供暖控制系统总体设计17

3.1锅炉自动调节的主要任务17

3.2系统的设计及工作过程17

3.2.1控制系统的组成17

3.2.2补水控制系统18

3.2.3循环控制系统19

3.2.4燃烧控制系统20

4锅炉控制系统硬件设计23

4.1传感器及变送器选择23

4.2锅炉供暖系统I/O统计25

4.3 PLC及模块选择27

4.4电机选择28

4.5变频器选择28

4.5.1补水系统和燃烧系统变频器28

4.5.2循环系统变频器29

4.6控制系统电气设计29

4.6.1补水控制系统29

4.6.2循环控制系统30

4.6.3燃烧控制系统31

4.7模拟量模块接线图32

4.7.1模拟量输入模块接线图32

4.7.2模拟量输出模块接线图33

4.8变频器接线图33

4.8.1补水、燃烧系统变频器接线图33

4.8.2循环系统变频器接线图34

4.9锅炉供暖系统的外部接线图35

4.10本系统具备如下功能: 36

5 PLC控制程序件设计37

5.1主程序设计37

5.2信号的采集38

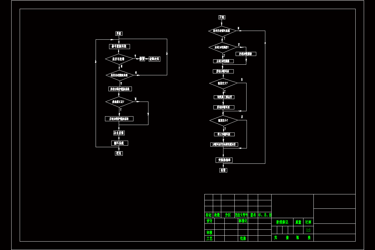
5.3燃烧控制系统程序设计流程38

5.4循环系统程序设计流程39

5.5补水系统程序设计流程39

6技术经济分析42

7结论43

致谢44

参考文献45

温馨提示:

1、题目前面的备注【字母数字编号】为本站整理分类的编号,与课题内容无关,请选题时忽视;

2、若题目上备注三维,则表示文件里包含三维源文件,由于三维组成零件数量较多,为保证预览截图的简洁性,本站将三维文件夹进行了打包。三维及CAD预览截图,均为本站电脑打开软件进行截图的,保证能够打开,下载原件超高清,下载后解压即可;

3、本站所有资源如无特殊说明,都需要本地电脑安装Office2007。图纸软件为AutoCAD,PROE,UG,SolidWorks,CATIA等;

4、本站所有图文资料仅供用户学习参考,不作为任何商用或其他用途;
5、本站不保证下载资源的准确性、安全性和完整性, 不包修改,不支持退换,同时也不承担用户因使用这些下载资源对自己和他人造成任何形式的伤害或损失;

6、 下载文件中如有侵权或不适当内容,请与我们联系,我们立即纠正。


线