欢迎来到龙图网在线图文分享平台-CAD图纸,设计说明书,工业设计3D模型,三维软件下载!   客服QQ:2363701252
热搜:

工艺夹具 模具设计 数控编程 土木工程 3D模型

Z1245-SMC热固成型的50吨四柱模压机的机体设计 下载积分:150 资料编号: Z1245

1.打开支付宝或者微信扫描二维码。
2.填写金额:150 
3.添加备注,填写资料编号:
资料编号: Z1245
4.支付成功后,请发资料编号到邮箱:jxsj168@qq.com
会有专人在15分钟内把资料发到您邮箱
备注:如果付款忘记填写资料编号,则发邮件时附带您的交易明细截图即可。
请耐心等待,如超过30分钟还没收到,请联系客服QQ:2363701252
点击分享:

作品描述

作品包括:

Word版设计说明书1份,共47页,约17000字

任务书一份

开题报告一份

外文翻译一份

CAD版本图纸,共5张

P_)ISKY63T_8FN9PFU1])MO.png

摘要

模压机是模压成型的主要设备。模压机主要的作用就是是通过模具对模压料施加压力,若采用固定式模具的形式,还可以起顶出制品和开合模具的功能。

模压机可以分为液压式与机动式两类,目前使用的模压机基本上均为液压式。多数模压机采用立体开合模的排列方式,也可采用旋转式排列。液压式模压机又机架,传动机构合控制系统构成。机架主要由模板和立柱组成。下模板固定,上模板受液压作用往下移动,由上往下对模压料施压,这被称为上压式模压机,相反则被称为下压式模压机。大吨位、大模板、打行程、快速合摸的模压机通常采用上压式,各种尺寸的SMC、BMC和增强热塑性塑料的模压机也采用上压式模压机。

热固性塑料的模压成型是将缩聚反应到一定阶段的热固性树脂及其填充混合料置于成型温度下的压模型腔中,闭模施压。借助热和压力的作用,使物料一方面熔融成可塑性流体 而充满型腔,取得与型腔一致的形样,与此同时,带活性基因的树脂分子产生化学交联而形 成网状结构。经一段时间保压固化后,脱模,制得热固性塑料制品的过程。

SM C复合材料(片状模塑料)经高温一次模压成型,具有机械强度高、材料重量轻、耐腐蚀、使用寿命长,绝缘强度高、耐电弧、阻燃、密封性能好,且产品设计灵活,易规模化生产,并有安全美观的优点,具有全天候防护功能,能够满足室外工程项目中各种恶劣环境和场所的需要,克服了室外金属设备箱体的易锈蚀、寿命短和隔热保温性能差等缺陷,广泛应用于电信、电力和铁路等领域。

关键词:模压机;热固成型;SMC

目录

目录 I

摘要 III

Summary IV

第一章 绪论 - 1 -

1.1引言 - 1 -

1.2 SMC四柱模压机发展趋势 - 1 -

1.3设计的主要内容 - 1 -

第二章 模压机的设计参数 - 2 -

2.1模压机主体结构特点 - 2 -

2.2  50T 模压机的设计参数 - 3 -

第三章 横梁结构设计 - 4 -

3.1横梁结构形式 - 4 -

3.2上横梁结构设计 - 5 -

3.3 活动横梁结构设计 - 6 -

3.4下横梁结构设计 - 10 -

3.5各横梁参数的确定 - 10 -

第四章 工作台的结构设计 - 11 -

4.1结构形式 - 11 -

4.2加工技术要求 - 11 -

4.3工作台与顶出缸的联接方式 - 12 -

4.4固定模具结构 - 13 -

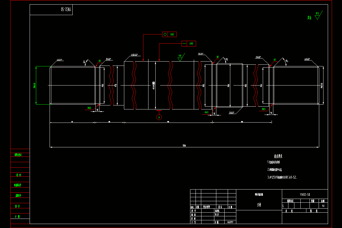
第五章 立柱设计 - 15 -

5.1结构形式 - 15 -

5.2形状尺寸计算及要求 - 16 -

5.3立柱螺母 - 16 -

5.4 液压机立柱连结形式 - 17 -

5.5 立柱的螺母及预紧 - 18 -

5.6 立柱的导向装置 - 18 -

5.7 限程套 - 19 -

第六章 缸的设计计算 - 20 -

6.1缸筒的结构和材料 - 20 -

6.2 对缸筒的要求 - 20 -

6.3 缸筒的强度校验 - 21 -

6.4 液压缸缸底厚度计算 - 21 -

6.5液压缸固定螺栓直径校核 - 22 -

6.6 缸筒制造加工要求 - 22 -

6.7 活塞的设计 - 22 -

6.8活塞杆的设计 - 24 -

6.9 导向环的设计 - 25 -

6.10导向套的设计 - 25 -

6.11 缸盖的设计 - 27 -

第七章 充液阀 - 29 -

7.1充液阀的工作原理 - 29 -

7.2充液阀的结构形式 - 29 -

第八章 模压机总装图设计 - 31 -

第九章 机体强度校核与计算 - 32 -

9.1工作台结构的强度与刚度计算条件 - 32 -

9.2 立柱的设计计算 - 34 -

9.3 横梁的强度与刚度计算 - 36 -

第十章:机身的紧固 - 38 -

10.1 立柱预紧部分的计算 - 39 -

10.2 立柱螺纹强度计算 - 39 -

总结 - 41 -

致谢 - 42 -

参考文献 - 43 -

温馨提示:

1、题目前面的备注【字母数字编号】为本站整理分类的编号,与课题内容无关,请选题时忽视;

2、若题目上备注三维,则表示文件里包含三维源文件,由于三维组成零件数量较多,为保证预览截图的简洁性,本站将三维文件夹进行了打包。三维及CAD预览截图,均为本站电脑打开软件进行截图的,保证能够打开,下载原件超高清,下载后解压即可;

3、本站所有资源如无特殊说明,都需要本地电脑安装Office2007。图纸软件为AutoCAD,PROE,UG,SolidWorks,CATIA等;

4、本站所有图文资料仅供用户学习参考,不作为任何商用或其他用途;
5、本站不保证下载资源的准确性、安全性和完整性, 不包修改,不支持退换,同时也不承担用户因使用这些下载资源对自己和他人造成任何形式的伤害或损失;

6、 下载文件中如有侵权或不适当内容,请与我们联系,我们立即纠正。


线