欢迎来到龙图网在线图文分享平台-CAD图纸,设计说明书,工业设计3D模型,三维软件下载!   客服QQ:2363701252
热搜:

工艺夹具 模具设计 数控编程 土木工程 3D模型

Z710-凸轮摆杆绕线机传动部分设计 下载积分:50 资料编号: Z710

1.打开支付宝或者微信扫描二维码。
2.填写金额:50 
3.添加备注,填写资料编号:
资料编号: Z710
4.支付成功后,请发资料编号到邮箱:jxsj168@qq.com
会有专人在15分钟内把资料发到您邮箱
备注:如果付款忘记填写资料编号,则发邮件时附带您的交易明细截图即可。
请耐心等待,如超过30分钟还没收到,请联系客服QQ:2363701252
点击分享:

作品描述

作品包括:

Word版设计说明书1份,共39页,约9200字

任务书一份

开题报告一份

PPT答辩一份

CAD版本图纸,共13张

6ISP5ECYC4{Y5L`]4QKRCD7.png

摘要

绕线机广泛应用于纺织、机械、电子等各个领域,可以说这几个领域当中绕线机都有进行着有效的工作。绕线机发展到现在,已经成为组织成批大量生产和机械化流水作业的基础,是现代化生产的重要标志之一。在我国四个现代化的发展和各个工业部门机械化水平、劳动生产率的提高中,绕线机必将发挥更大的作用。本课题主要对绕线机的凸轮摆杆传动部分进行设计,结构分别有一台电动机,一台减速器,一对交错轴斜齿轮,一套卷筒装置和凸轮摆杆机构组成。要求绕线设备运行平稳,, 安全可靠, 技术性能先进。

关键词:绕线机;  传动部分;  斜齿轮;  凸轮;  摆动

目  录

1 电动机的选择…………………………………………………………1

1.1 选择传动方案………………………………………………………1

1.2 选择电动机功率……………………………………………………1

1.3 确定电动机转速……………………………………………………3

2 确定传动装置的总动比和分配传动比………………………………4

2.1 各轴转速……………………………………………………………5

2.2 各轴输入功率………………………………………………………5

2.3 各轴输入转矩………………………………………………………6

3V 带的设计……………………………………………………… ……7

3.1 确定计算功率………………………………………………………7

3.2 选择“V”带的型号……………………………… ………………8

3.3 确定带轮基准直径…………………………………………………8

3.4 验算速度……………………………………………………………8

3.5 确定带的基准长度和实际中心距…………………………………9

3.6 校验小带轮包角……………………………………………………9

3.7 确定"V"带根数…………………………………… ………………9

3.8 求初拉力及带轮轴上的压力…………………… ………………10

3.9 带轮的结构设计…………………………………… ……………10

4  斜齿轮设计…………………………………………………………11

4.1 选择齿轮材料和精度等级………………………… ……………11

4.2 按齿根弯曲疲劳强度设计………………………… ……………11

4.3 按齿面接触疲劳强度设计………………………………………14

4.4 齿轮受力分析……………………………………………………18

5 凸轮设计……………………………………………………………19

5.1 计算力……………………………………………………………20

5.2 画凸轮图…………………………………………………………20

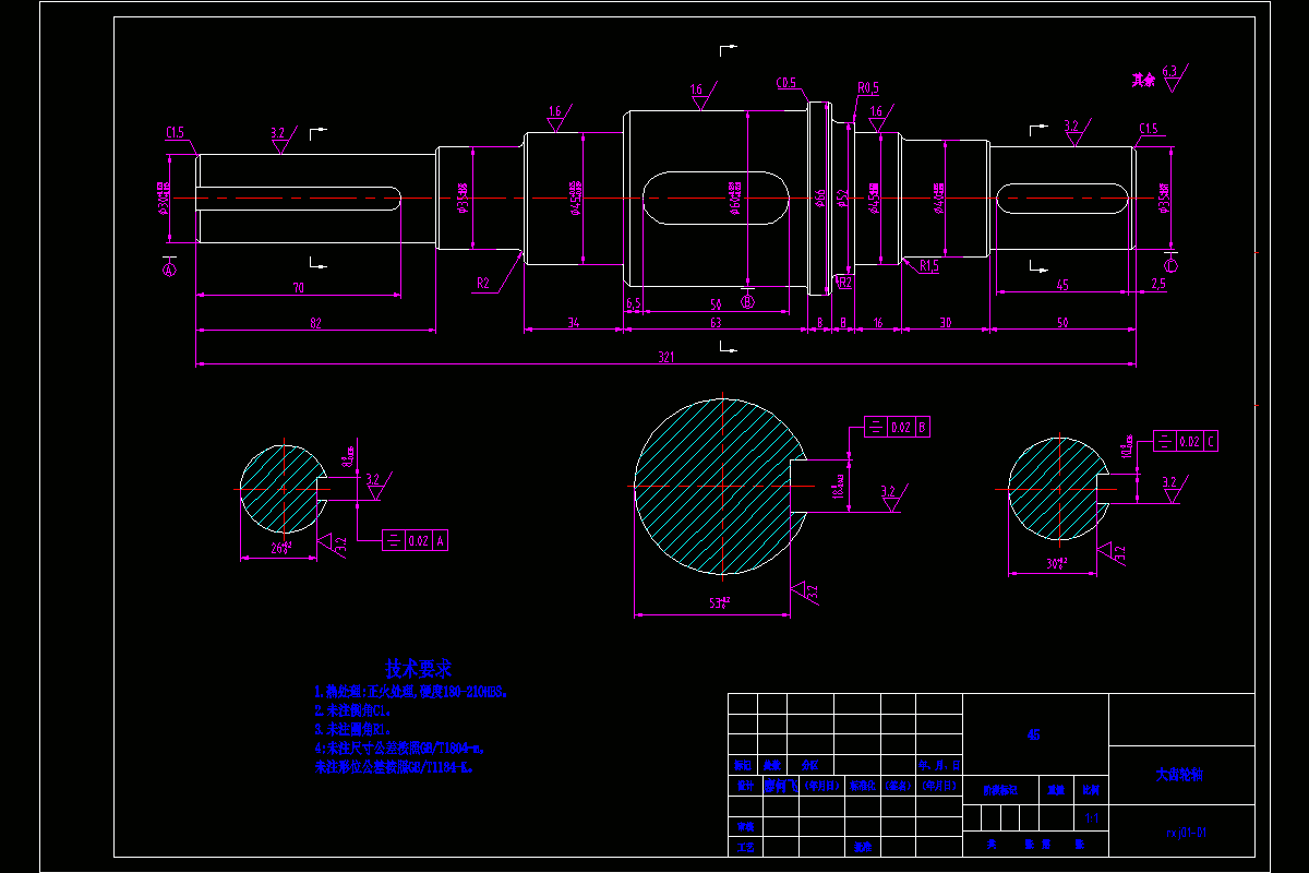
6 齿轮轴的设计与校核………………………………………………21

6.1 大齿轮轴的设计…………………………………………………21

6.2 小齿轮轴的设计…………………………………………………27

7  大齿轮轴普通键联接的设计…………………………… ………32

7.1 轴与大齿轮的联接键设计………………………………………32

7.2 联轴器与轴联接键的设计………………………………………32

7.3 凸轮与轴联接键的设计…………………………………………33

8 摆杆的设计…………………………………………………………33

8.1 选择摆杆材料……………………………………………………33

8.2 初定摆杆的尺寸…………………………………………………33

8.3 按弯扭合成校核摆杆的强度……………………………………34

参考文献………………………………………………………………36

温馨提示:

1、题目前面的备注【字母数字编号】为本站整理分类的编号,与课题内容无关,请选题时忽视;

2、若题目上备注三维,则表示文件里包含三维源文件,由于三维组成零件数量较多,为保证预览截图的简洁性,本站将三维文件夹进行了打包。三维及CAD预览截图,均为本站电脑打开软件进行截图的,保证能够打开,下载原件超高清,下载后解压即可;

3、本站所有资源如无特殊说明,都需要本地电脑安装Office2007。图纸软件为AutoCAD,PROE,UG,SolidWorks,CATIA等;

4、本站所有图文资料仅供用户学习参考,不作为任何商用或其他用途;
5、本站不保证下载资源的准确性、安全性和完整性, 不包修改,不支持退换,同时也不承担用户因使用这些下载资源对自己和他人造成任何形式的伤害或损失;

6、 下载文件中如有侵权或不适当内容,请与我们联系,我们立即纠正。


线