欢迎来到龙图网在线图文分享平台-CAD图纸,设计说明书,工业设计3D模型,三维软件下载!   客服QQ:2363701252
热搜:

工艺夹具 模具设计 数控编程 土木工程 3D模型

P745-乒乓球发球器的结构设计-动画仿真【含SW三维图】 下载积分:50 资料编号: P745

1.打开支付宝或者微信扫描二维码。
2.填写金额:50 
3.添加备注,填写资料编号:
资料编号: P745
4.支付成功后,请发资料编号到邮箱:jxsj168@qq.com
会有专人在15分钟内把资料发到您邮箱
备注:如果付款忘记填写资料编号,则发邮件时附带您的交易明细截图即可。
请耐心等待,如超过30分钟还没收到,请联系客服QQ:2363701252
点击分享:

作品描述

作品包括:

Word版说明书1份,共35页,约14000字 

开题报告一份

外文翻译一份

CAD版本图纸,共6张

SW三维图一套

仿真动画视频一份

3AUNK}M(UNEEX%[HP8}@S~P.png

摘要

乒乓球是一项集速度、耐力、反应力和力量为一体的运动,同时也是考验技术和战术的运动。乒乓球运动不仅适合小孩也适合老人的运动,对身体素质要求不高。随着科技生活的不断发展,人们的生活水平不断的提高,人们追求也不断提高。为了使广大练习者能达到学习乒乓球技术和健身的效果,本文设计了一种方便且好控制的乒乓球发球器。

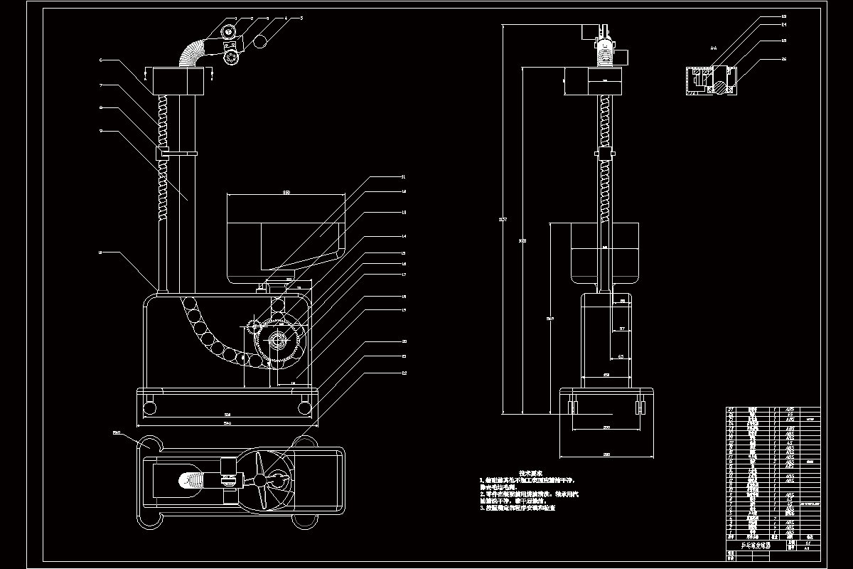
本文综述了普遍的乒乓球发球器的类型和优缺点。了解乒乓球发球的原理,设计一种以对转双摩擦轮的发球原理,能够发射上下旋球和不旋球;采用了丝杠与螺母的配合其工作的原理,设计出乒乓球发球器的升降装置。利用齿轮带动输球管上啮合的齿盘设计摇摆装置;采用六个收球槽的叶片轮输球。对乒乓球发球器的功能结构等设计分析。本文采用三维造型设计和功能设计相结合,利用SolidWorks软件绘制乒乓球发球器的零部件和总装三维图。用AutoCAD绘制工程图。

本文设计乒乓球发球器结构比较简单,体积适中,拆装比较简单,容易操控,老少皆宜,能发射不同角度、速度和旋转的球。

关键词:三维结构设计;功能结构设计;SolidWorks;AutoCAD。

目录

摘要I

Abstract: II

1引言5

1.1选题的根据和研究意义5

1.2常见的乒乓球发球器的种类5

1.3设计的主要内容7

1.4小结7

2乒乓球发球器的要求和准则8

2.1乒乓球发球器过程8

2.2乒乓球发球器的要求8

2.3整体方案8

2.4乒乓球发球器整体参数9

2.5小结9

3乒乓球发球器传动设计10

3.1乒乓球发球器原理10

3.2乒乓球发球器的升降装置和摇摆装置的设计11

3.3乒乓球发球器的电机选择12

3.4输球装置的设计14

3.5传动部分的设计14

3.6储球箱和拨球装置的设计19

3.7小结20

4乒乓球发球器部分零部件三维设计21

4.1乒乓球发球器箱体的设计21

4.2机头管道设计和摩擦轮的选择21

4.3电机造型22

4.4底座板设计22

4.5小结23

5乒乓球发球器的装配设计24

5.1重点部分零部件的装配设计24

5.2输球装置电机与叶片轮装配24

5.3.乒乓球发球器发射装置的装配设计25

5.4升降装置的装配27

5.5拨球装置和储球箱的装配28

5.6摇摆装置的装配29

5.7各大部分的装配30

5.8本章小结31

6乒乓球发球器的使用注意事项和保养32

7总结33

致谢34

参考文献35

温馨提示:

1、题目前面的备注【字母数字编号】为本站整理分类的编号,与课题内容无关,请选题时忽视;

2、若题目上备注三维,则表示文件里包含三维源文件,由于三维组成零件数量较多,为保证预览截图的简洁性,本站将三维文件夹进行了打包。三维及CAD预览截图,均为本站电脑打开软件进行截图的,保证能够打开,下载原件超高清,下载后解压即可;

3、本站所有资源如无特殊说明,都需要本地电脑安装Office2007。图纸软件为AutoCAD,PROE,UG,SolidWorks,CATIA等;

4、本站所有图文资料仅供用户学习参考,不作为任何商用或其他用途;
5、本站不保证下载资源的准确性、安全性和完整性, 不包修改,不支持退换,同时也不承担用户因使用这些下载资源对自己和他人造成任何形式的伤害或损失;

6、 下载文件中如有侵权或不适当内容,请与我们联系,我们立即纠正。


线