

作品包括:
Word版说明书1份,共39页,约12000字
外文翻译一份
CAD版本图纸,共11张
Proe三维图一套
仿真动画视频一份
![1710309752256587.png HT}18OV$OUD]C)5PV(E%[0G.png](/uploadfiles/20240313/1710309752256587.png)
摘 要
焊接在制造业中过程中起着重要的作用,与传统的手工焊相比,焊接机器人自动化程度高,减少人工成本,而且效率高,一般配有专门的除尘设备,对烟尘进行了很好的控制,比较环保,我国对于环保的重视迫使很多大型企业选择了焊接机器人。
使用机器人的外部设备的管理控制系统。随着科学技术,焊接加工业务的发展为第三大制造机械设备,仅次于加工和机械加工,其柔性制造机器人控制器PC及其相关技术,网络和焊接自动化的智能应用已成为必然发展的趋势。
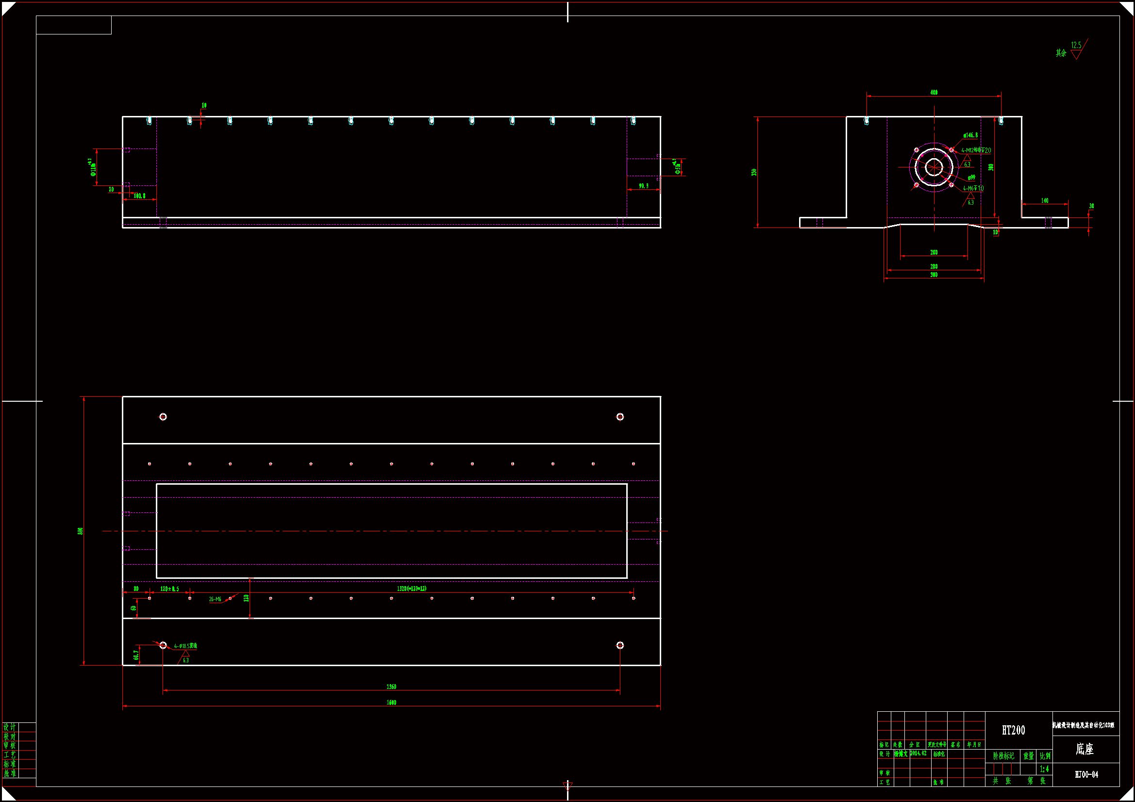
本文对三自由度机械手的运动经行了剖析,确定了机械手的外部结构,然后对其运动经行分析,确定传动形式为丝杆传动,然后分别对其各部件经行了尺寸设计,对底座、大臂、小臂经行了结构设计和优化,使得结构紧凑,利用步进电机对其提供动力,考虑成本问题暂不考虑伺服电机,然后在普通机械手的基础上增加了焊枪和送丝机构,焊枪利用专用夹具进行装夹,运用PROE三维软件对机械手进行了建模和装配,然后对三个工件进行了焊接仿真调试并完成了CAD的绘制。
关键字:焊接机械手;三自由度;结构设计;运动仿真
目录
绪论 1
1.1 CO2焊接发展概述 1
1.2国内外焊接机器人的现状及发展趋势 2
1.3焊接机器人的组成 2
1.4焊接机器人的结构与性能 3
第二章运动方案设计 4
2.1点焊总体设计技术要求 4
2.2坐标形式的选择 4
2.3拟定设计流程表 7
2.4传动方案的确定 8
第三章各传动件的设计计算 13
3.1底座组件的设计计算 13
3.1.1底座滚珠丝杆的设计计算 13
3.1.2最大转矩限制 13
3.1.3临界转矩的限制 14
3.1.4丝杆直径的选择 14
3.2滚珠丝杆副效率计算 15
3.2.1滚珠丝杆副刚度验算 15
3.3底座传动件的计算与选择 16
3.3.1等效负载转矩的计算 16
3.3.2计算等效转动惯量 16
3.3.3底座步进电机的选择 17
3.3.4联轴器的选择 17
3.3.5轴承的设计选择 17
3.4大臂传动件设计计算 20
3.4.1等效负载转矩的计算 20
3.4.2等效转动惯量 20
3.4.3大臂步进电机的选择 20
3.4.4联轴器的选择 21
3.4.5轴承的选择 22
3.5焊枪的设计 25
3.6送丝机构的选择 26
3.7 PROE三维建模 28
第四章滚珠丝杆的支撑 29
4.1轴端支承形式的选择 30
4.1.1滚珠丝杠轴端支承形式的选择 30
4.1.2 滚珠丝杠对轴承的要求 30
4.1轴承预紧力 31
第五章焊接机械手的运动仿真 32
5.1仿真要求 33
5.2. 各部分的仿真前定义 33
5.3 小臂和大臂的运动仿真 36
5.4整体运动仿真 36
第六章设计小结 37
参考文献 38
致谢 39
附录 40
温馨提示:
1、题目前面的备注【字母数字编号】为本站整理分类的编号,与课题内容无关,请选题时忽视;
2、若题目上备注三维,则表示文件里包含三维源文件,由于三维组成零件数量较多,为保证预览截图的简洁性,本站将三维文件夹进行了打包。三维及CAD预览截图,均为本站电脑打开软件进行截图的,保证能够打开,下载原件超高清,下载后解压即可;
3、本站所有资源如无特殊说明,都需要本地电脑安装Office2007。图纸软件为AutoCAD,PROE,UG,SolidWorks,CATIA等;
4、本站所有图文资料仅供用户学习参考,不作为任何商用或其他用途;
5、本站不保证下载资源的准确性、安全性和完整性, 不包修改,不支持退换,同时也不承担用户因使用这些下载资源对自己和他人造成任何形式的伤害或损失;
6、 下载文件中如有侵权或不适当内容,请与我们联系,我们立即纠正。