

作品包括:
Word版说明书1份,共34页,约14000字
工艺卡2张
CAD版本图纸,共3张
三维图纸一份
数控程序一份

摘 要
本文是通过利用回转体零件诸如曲轴零件的工艺规程及工装夹具设计为例子,完成回转体曲轴零件的数控加工工艺规程设计。
曲轴是柴油发动机的重要零件,它的作用是把活塞的往复直线运动变成旋转运动,将作用在活塞的气体压力变成扭矩,用来驱动工作机械和柴油发动机各辅助系统进行工作。曲轴在工作时承受着不断变化的压力、惯性力和它们的力矩作用,因此要求曲轴具有强度高、刚度大、耐磨性好,轴颈表面加工尺寸精确,且润滑可靠。
本设计是根据被加工曲轴的技术要求,进行数控加工工艺规程设计,然后运用夹具设计的基本原理和方法,拟定夹具设计方案,完成夹具结构设计。主要工作有:绘制产品零件图和三维建模,了解零件的结构特点和技术要求;根据生产类型和所在企业的生产条件,对零件进行结构分析和工艺分析;确定数控加工工艺过程;拟定零件的数控加工工艺,制定数控加工工艺过程卡,并利用MASTERCAM对工件进行数控编程及模拟,并对曲轴零件进行工装夹具设计并绘制夹具装配图和零件图。
关键词:回转体零件,曲轴,数控加工,夹具
目 录
1绪论 1
1.1毕业设计的背景及目的 1
1.2曲轴制造技术现状与趋势 1
1.2.1概述 1
1.2.2曲轴制造技术现状 2
1.3本设计应解决的主要问题 4
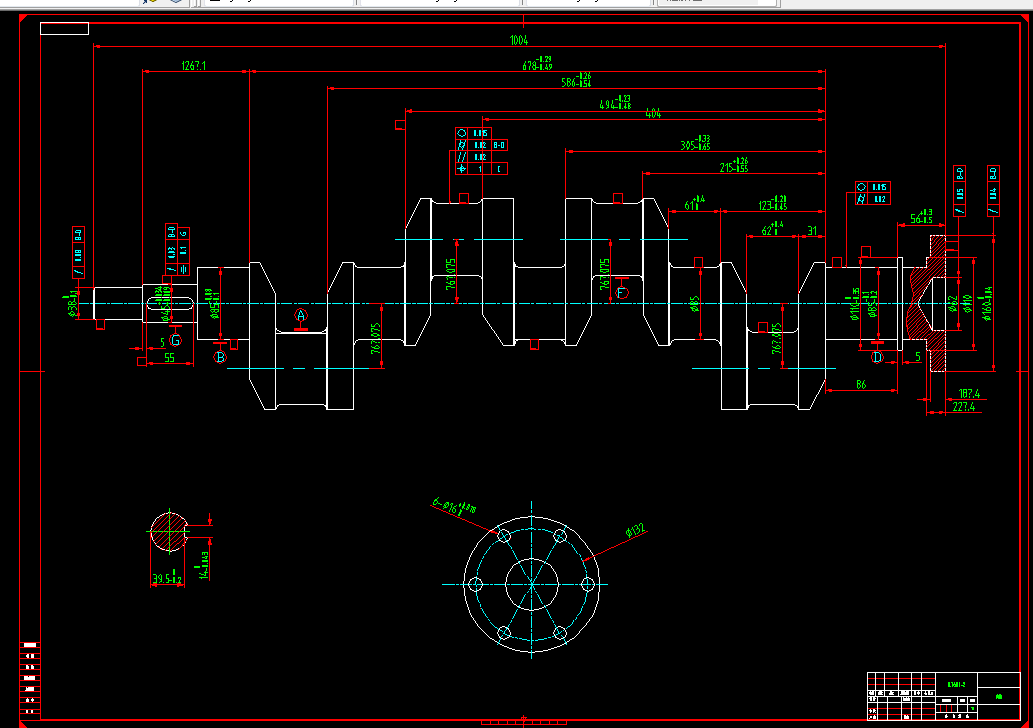
1.4零件图 5
2零件分析 6
2.1零件的作用 6
2.2曲轴工艺分析 6
3零件的三维建模 7
3.1 PROE三维软件介绍 6
3.2 曲轴零件的三维建模 6
4 工艺规程设计 7
4.1 确定毛坯的材料 7
4.2制定工艺路线 8
4.3零件的数控加工工艺分析 8
4.4数控加工工艺过程卡片 9
5 MASTERCAM数控加工与编程设计 7
5.1 MASTERCAM软件介绍 7
5.2 MASTERCAM数控车加工工艺过程设计 7
6 专用夹具设计 16
6.1 工序尺寸精度分析 16
6.2 定位方案确定 16
6.3 定位元件确定 16
6.4 定位误差分析计算 17
6.5 夹紧方案及元件确定 18
结 论 19
致 谢 20
参考文献 21
温馨提示:
1、题目前面的备注【字母数字编号】为本站整理分类的编号,与课题内容无关,请选题时忽视;
2、若题目上备注三维,则表示文件里包含三维源文件,由于三维组成零件数量较多,为保证预览截图的简洁性,本站将三维文件夹进行了打包。三维及CAD预览截图,均为本站电脑打开软件进行截图的,保证能够打开,下载原件超高清,下载后解压即可;
3、本站所有资源如无特殊说明,都需要本地电脑安装Office2007。图纸软件为AutoCAD,PROE,UG,SolidWorks,CATIA等;
4、本站所有图文资料仅供用户学习参考,不作为任何商用或其他用途;
5、本站不保证下载资源的准确性、安全性和完整性, 不包修改,不支持退换,同时也不承担用户因使用这些下载资源对自己和他人造成任何形式的伤害或损失;
6、 下载文件中如有侵权或不适当内容,请与我们联系,我们立即纠正。